← Northumberland County Council

Status

Registered New housing
Received
06 Nov 2025
New homes
2

Summary

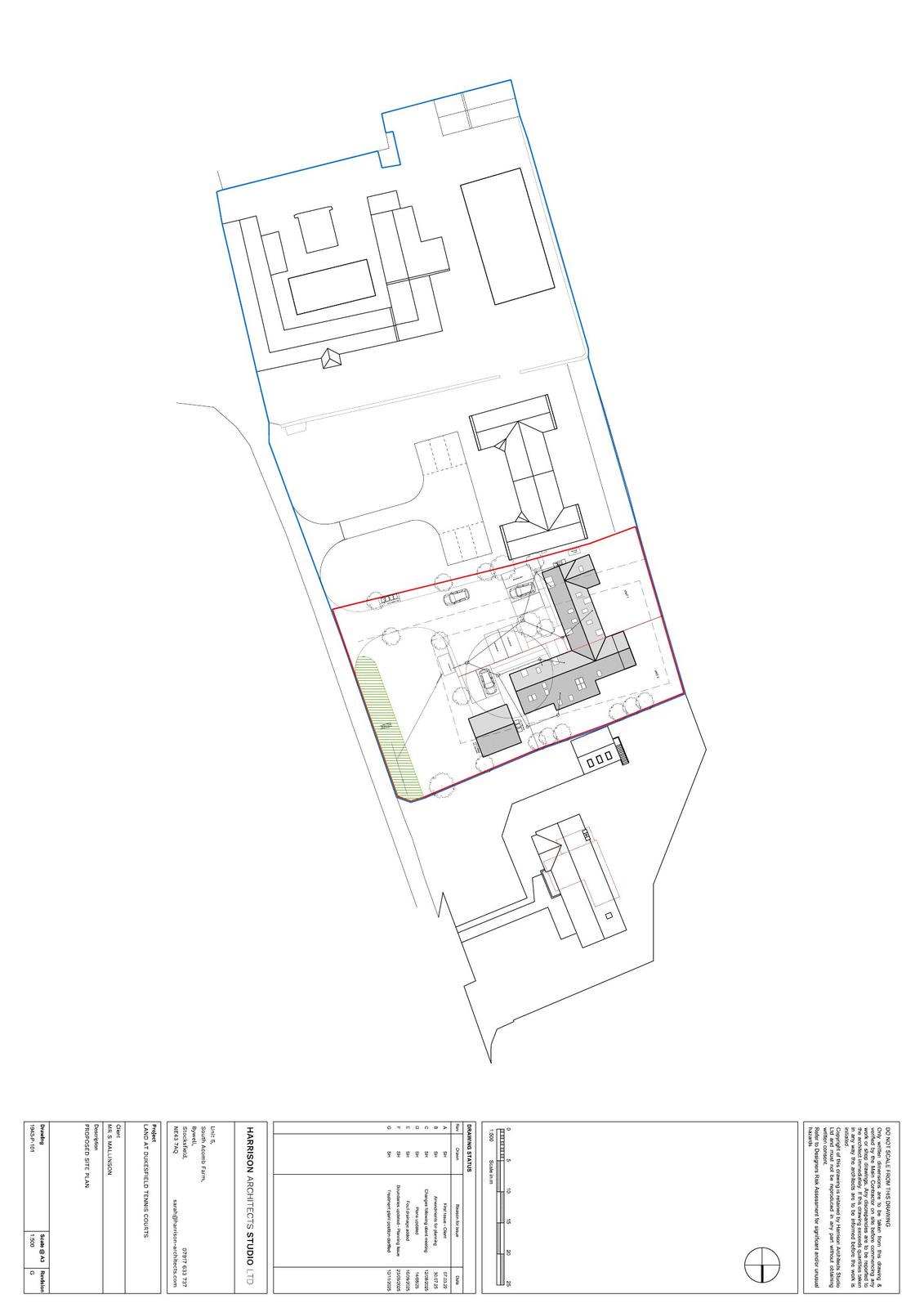
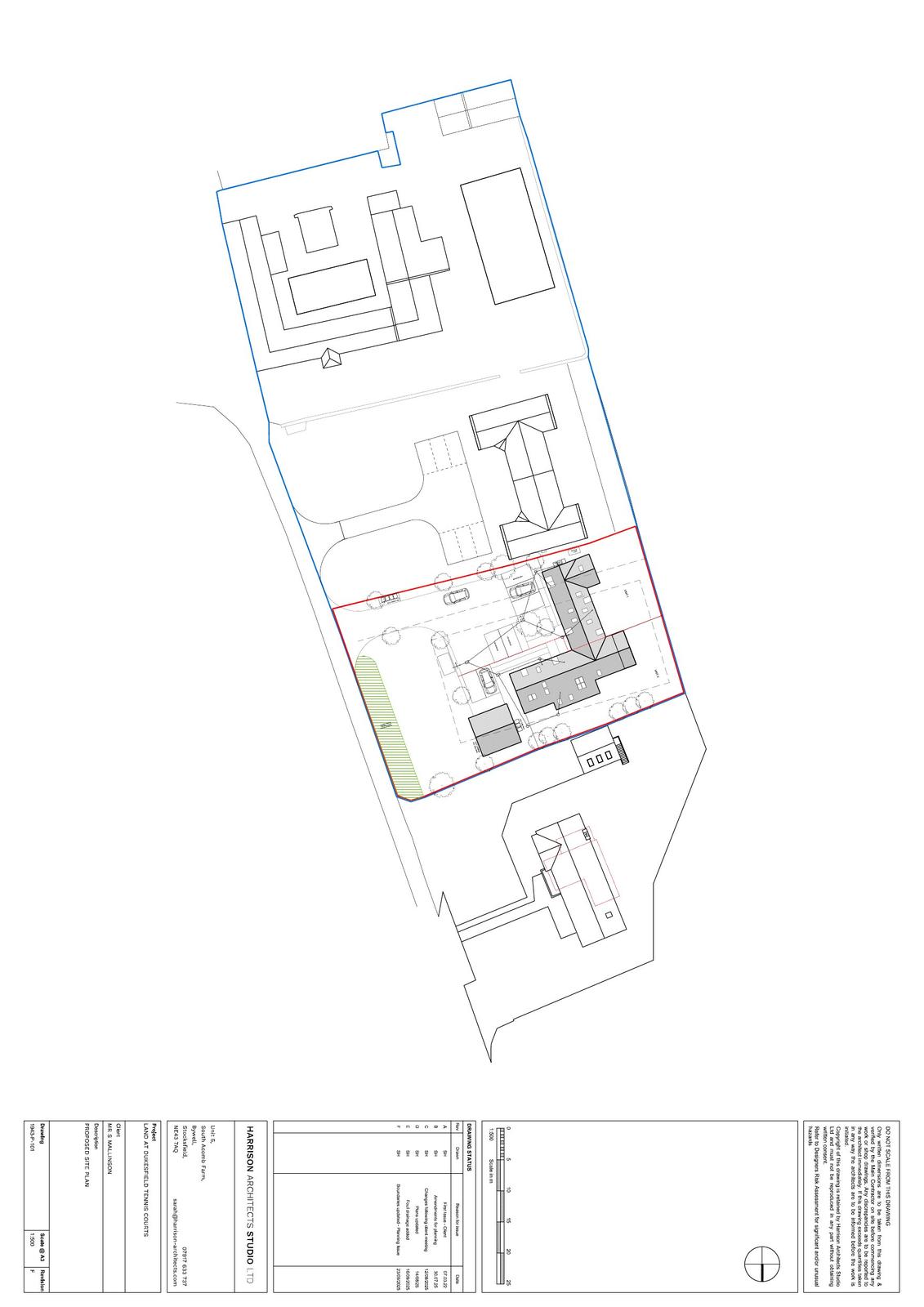
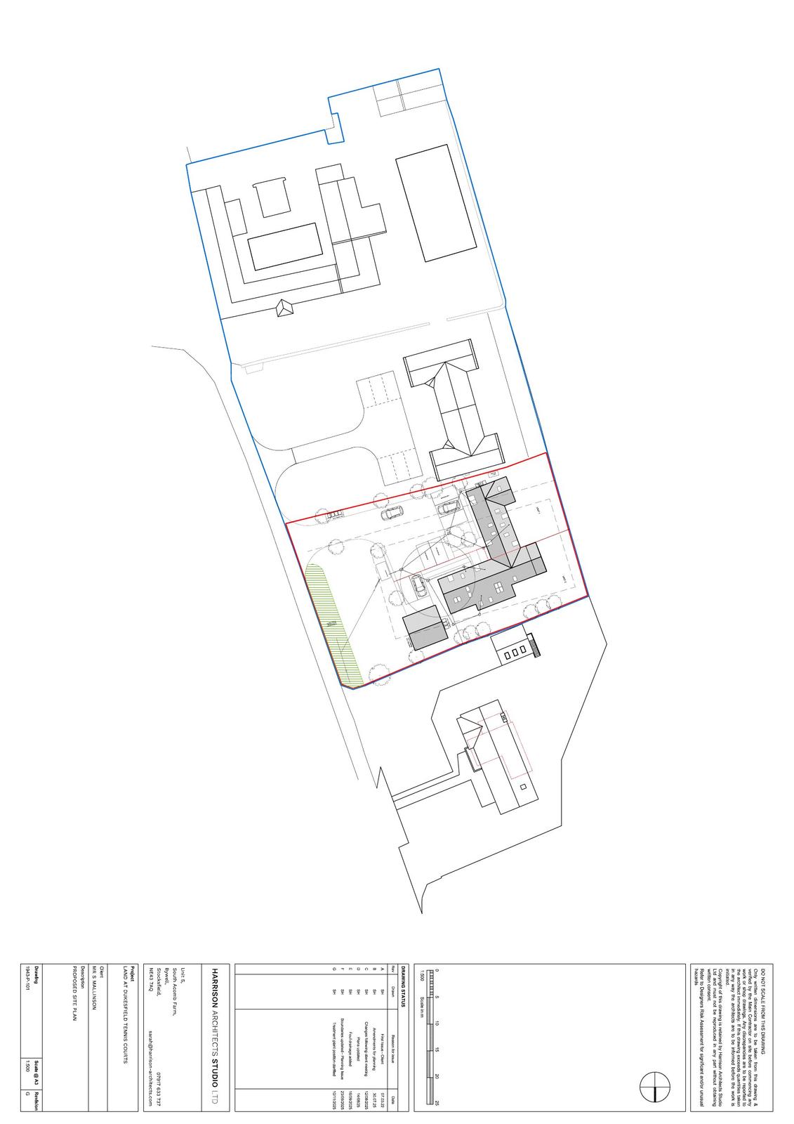
Construct 2 dwellings on former tennis court site.

Full proposal

Proposed construction of 2No. dwellings on existing tennis court site

Documents

APPLICATIONFORMREDACTED
Application Form
Not yet archived · Original link
BIODIVERSITY NET GAIN ASSESSMENT
Report/ Statement
Not yet archived · Original link
COAL MINING REPORT
Report/ Statement
Not yet archived · Original link
CONDITION ASSESSMENT SHEETS
Report/ Statement
Not yet archived · Original link
CONSULTEE COMMENT SUBMITTED ONLINE
Consultee Comment
Not yet archived · Original link
CONSULTEE COMMENT SUBMITTED ONLINE
Consultee Comment
Not yet archived · Original link
CONSULTEE COMMENT SUBMITTED ONLINE
Consultee Comment
Not yet archived · Original link
CONSULTEE COMMENT SUBMITTED ONLINE
Consultee Comment
Not yet archived · Original link
DESIGN AND ACCESS STATEMENT
Report/ Statement
Not yet archived · Original link
DRAINAGE ASSESSMENT FORM
Report/ Statement
Not yet archived · Original link
DRAINAGE ASSESSMENT FORM
Plan
Not yet archived · Original link
Location Plan
Location Plan
Not yet archived · Original link
NATURAL ENGLAND
Consultee Response
Not yet archived · Original link
PLANNING STATEMENT
Report/ Statement
Not yet archived · Original link
PROPOSED FF PLAN
Plan
Not yet archived · Original link
PROPOSED FRONT AND REAR ELEVATIONS
Plan
Not yet archived · Original link
PROPOSED GARAGE
Plan
Not yet archived · Original link
PROPOSED GARAGE PLANS AND ELEVATIONS A
Plan
Not yet archived · Original link
PROPOSED GF PLAN
Plan
Not yet archived · Original link
PROPOSED SIDE ELEVATIONS
Plan
Not yet archived · Original link
STATUTORY BIODIVERSITY METRIC
Report/ Statement
Not yet archived · Original link
YALPAG SCREENING ASSESSMENT
Report/ Statement
Not yet archived · Original link

Have your say

Your comment matters. Councils must consider every representation that raises material planning considerations.

Write a comment