← Northumberland County Council

Status

Permitted House extension
Received
17 Nov 2025
New homes
0

Full proposal

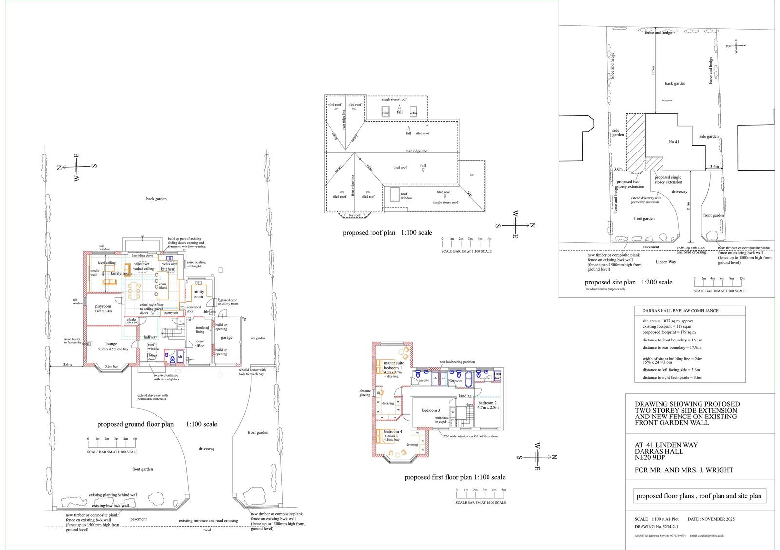
Proposed two storey side extension, single storey front extension and alterations to front entrance hallway. To install a new fence on top of existing garden wall and change the materials of the existing dwelling from brick to render (as amended)

Documents

APPLICATIONFORMREDACTED
Application Form
Not yet archived · Original link
BAT REPORT-41 LINDEN WAY-SS-V1.0 (1)
Report/ Statement
Not yet archived · Original link
BHD RESPONSE
Consultee Comment
Not yet archived · Original link
Decision Notice
Decision Notice
Not yet archived · Original link
Ecology Checklist
Ecology Checklist
Not yet archived · Original link
ECOLOGY COMMENTS
Consultee Comment
Not yet archived · Original link
EXISTING ELEVATIONS AND FLOOR PLANS
Amended Plan
Not yet archived · Original link
FLOOD RISK ASSESSMENT
Report/ Statement
Not yet archived · Original link
HIGHWAYS COMMENTS
Consultee Comment
Not yet archived · Original link
Location Plan
Location Plan
Not yet archived · Original link
Officer Report
Officer Report
Not yet archived · Original link
PROPOSED ELEVATIONS
Amended Plan
Not yet archived · Original link
PROPOSED ELEVATIONS/BOUNDARY DETAIL
Superseded
Not yet archived · Original link
Amended Plan
Archived · Original link
TOWN COUNCIL RESPONSE
Consultee Comment
Not yet archived · Original link

Have your say

Your comment matters. Councils must consider every representation that raises material planning considerations.

Write a comment