← Northumberland County Council

Status

Registered Change of use
Received
25 Nov 2025
New homes
0

Full proposal

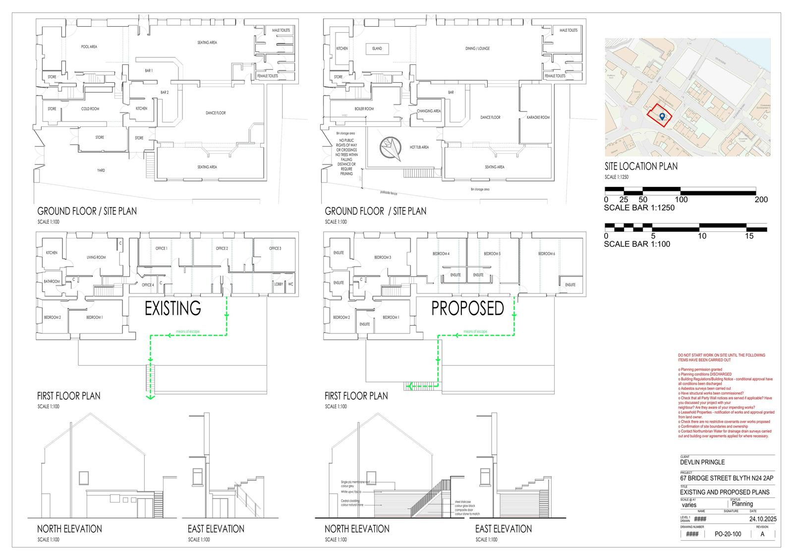
Conversion of existing public house including first floor offices and bedroom accommodation into Airbnb type short term let with small flat roofed, timber framed extension to rear

Documents

25/00676/PREAPP
Correspondence
Not yet archived · Original link
Application Form
Application Form
Not yet archived · Original link
ARCHAEOLOGY
Consultee Comment
Not yet archived · Original link
BLYTH TOWN COUNCIL
Consultee Comment
Not yet archived · Original link
BUILT HERITAGE & DESIGN
Consultee Comment
Not yet archived · Original link
COAL AUTHORITY
Consultee Response
Not yet archived · Original link
COAL MINING RISK ASSESSMENT
Report/ Statement
Not yet archived · Original link
CONSULTEE COMMENT SUBMITTED ONLINE
Consultee Comment
Not yet archived · Original link
DESIGN AND ACCESS STATEMENT
Report/ Statement
Not yet archived · Original link
ECOLOGY
Consultee Comment
Not yet archived · Original link
ENVIRONMENTAL PROTECTION
Consultee Comment
Not yet archived · Original link
EXISTING AND PROPOSED ELEVATIONS
Amended Plan
Not yet archived · Original link
Amended Plan
Archived · Original link
HERITAGE STATEMENT
Superseded
Not yet archived · Original link
HERITAGE STATEMENT
Report/ Statement
Not yet archived · Original link
HIGHWAYS DM
Consultee Comment
Not yet archived · Original link
NATURAL ENGLAND RESPONSE PART 1
Consultee Response
Not yet archived · Original link
NATURAL ENGLAND RESPONSE PART 2
Consultee Response
Not yet archived · Original link
POLICE
Consultee Comment
Not yet archived · Original link
TRAFFIC AND PARKING STRATEGY
Report/ Statement
Not yet archived · Original link

Have your say

Your comment matters. Councils must consider every representation that raises material planning considerations.

Write a comment