← Northumberland County Council

Status

Registered Change of use
Received
15 Dec 2025
New homes
0

Full proposal

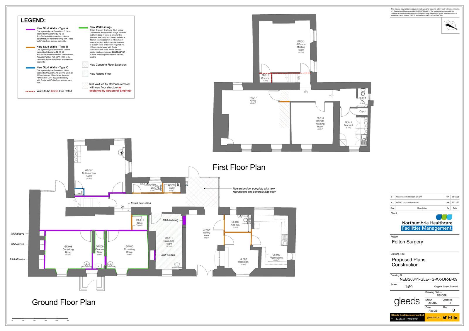
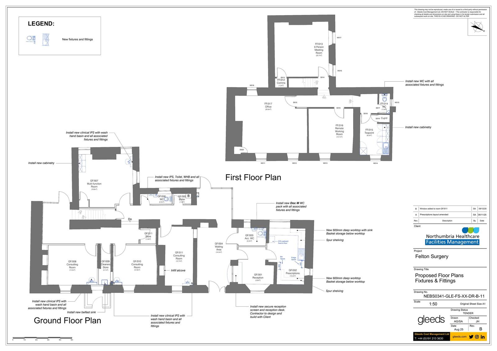
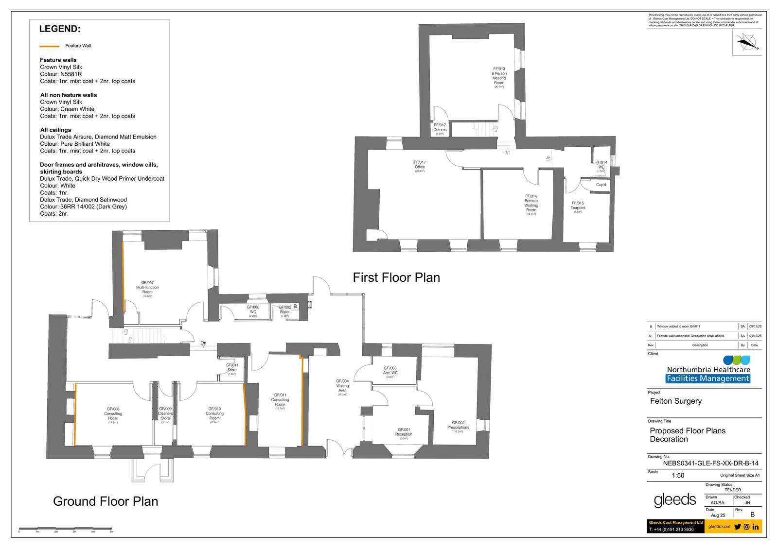
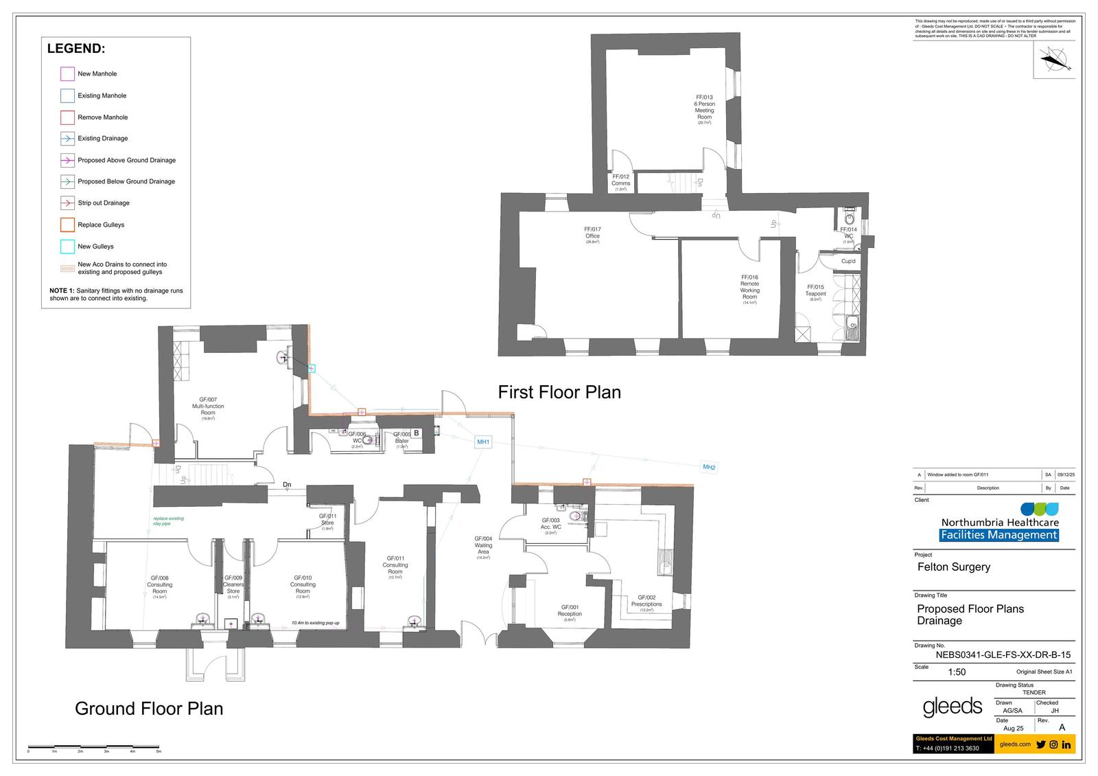
Refurbishment of the existing surgery and change of use of the attached former dwelling from Class C3 (Residential) to Class E(e) (Medical or Health Services), including internal refurbishment and external repair works. Demolition of the rear porch and erection of a single-storey glazed link extension to the rear to connect the two buildings. Formation of a two-bay car parking area with associated hard and soft landscaping.

Documents

27 PARK VIEW
Objection
Not yet archived · Original link
27 PARK VIEW
Objection
Not yet archived · Original link
27 PARK VIEW
Objection
Not yet archived · Original link
27 PARK VIEW
Objection
Not yet archived · Original link
27 PARK VIEW COMMENT (OBJECTION) SUBMITTED ONLINE
Objection Comment
Not yet archived · Original link
27 PARK VIEW COMMENT (OBJECTION) SUBMITTED ONLINE
Objection Comment
Not yet archived · Original link
APPLICATIONFORMREDACTED
Application Form
Not yet archived · Original link
BIODIVERSITY NET GAIN ASSESSMENT
Report/ Statement
Not yet archived · Original link
BNG Metric Calculation Tool
BNG Metric Calculation Tool
Not yet archived · Original link
COMMENT (OBJECTION) SUBMITTED ONLINE
Objection Comment
Not yet archived · Original link
CONSULTEE COMMENT SUBMITTED ONLINE
Consultee Comment
Not yet archived · Original link
CONSULTEE COMMENT SUBMITTED ONLINE
Consultee Comment
Not yet archived · Original link
CONSULTEE COMMENT SUBMITTED ONLINE
Consultee Comment
Not yet archived · Original link
CONSULTEE COMMENT SUBMITTED ONLINE
Consultee Comment
Not yet archived · Original link
CONSULTEE COMMENT SUBMITTED ONLINE
Consultee Comment
Not yet archived · Original link
DESIGN AND ACCESS STATEMENT REV A
Report/ Statement
Not yet archived · Original link
DRAWING REGISTER
Report/ Statement
Not yet archived · Original link
EXISTING EAST AND NORTH ELEVATIONS
Plan
Not yet archived · Original link
EXISTING FLOOR PLANS WALL TYPES
Plan
Not yet archived · Original link
EXISTING WEST AND SOUTH ELEVATIONS
Plan
Not yet archived · Original link
FELTON PARISH COUNCIL
Consultee Comment
Not yet archived · Original link
HERITAGE STATEMENT
Report/ Statement
Not yet archived · Original link
LARGE ESTATE CAR SWEPT PATH ANALYSIS
Plan
Not yet archived · Original link
Location Plan
Location Plan
Not yet archived · Original link
PROPOSED EAST AND NORTH ELEVATIONS
Plan
Not yet archived · Original link
PROPOSED EXTENSION
Plan
Not yet archived · Original link
PROPOSED FIRST FLOOR PLAN DEMOLITION
Plan
Not yet archived · Original link
PROPOSED GROUND FLOOR PLAN DEMOLITION
Plan
Not yet archived · Original link
PROPOSED INTERNAL ELEVATIONS
Plan
Not yet archived · Original link
PROPOSED WEST AND SOUTH ELEVATIONS
Plan
Not yet archived · Original link
SUPERSEDED APPLICATION FORM
Application Form
Not yet archived · Original link
SUPERSEDED DESIGN AND ACCESS STATEMENT
Superseded
Not yet archived · Original link
THE CROFT
Representation
Not yet archived · Original link

Have your say

Your comment matters. Councils must consider every representation that raises material planning considerations.

Write a comment