← Northumberland County Council

Status

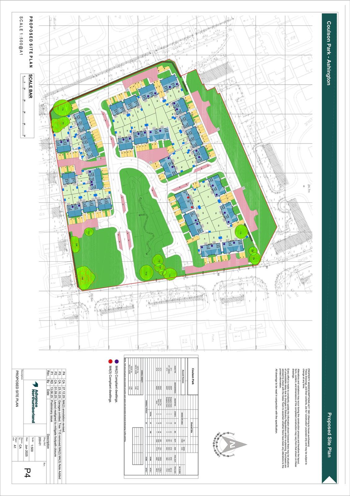
Registered New housing
Received
19 Dec 2025
New homes
57

Full proposal

Construction of 57no affordable dwellings with access, car parking, landscaping, and associated infrastructure.

Documents

AFFORDABLE HOUSING STATEMENT
Report/ Statement
Not yet archived · Original link
ARBORICULTURAL IMPACT ASSESSMENT
Report/ Statement
Not yet archived · Original link
ARCHAEOLOGICAL SERVICES
Report/ Statement
Not yet archived · Original link
ARCHAEOLOGY
Consultee Comment
Not yet archived · Original link
ASHINGTON TOWN COUNCIL
Consultee Comment
Not yet archived · Original link
BNG Metric Calculation Tool
BNG Metric Calculation Tool
Not yet archived · Original link
COMMENT (NEUTRAL) SUBMITTED ONLINE
General Comment
Not yet archived · Original link
COMMENT (SUPPORT) SUBMITTED ONLINE
Support Comment
Not yet archived · Original link
CONDITION ASSESSMENT 0
Report/ Statement
Not yet archived · Original link
CONDITION ASSESSMENT 1
Report/ Statement
Not yet archived · Original link
CONDITION ASSESSMENT 2
Report/ Statement
Not yet archived · Original link
CONSTRUCTION METHOD STATEMENT
Report/ Statement
Not yet archived · Original link
CONSULTEE COMMENT SUBMITTED ONLINE
Consultee Comment
Not yet archived · Original link
COVER LETTER
Report/ Statement
Not yet archived · Original link
DESIGN AND ACCESS STATEMENT
Report/ Statement
Not yet archived · Original link
DRAINAGE MAINTENANCE AND MANAGEMENT SCHEDULE
Report/ Statement
Not yet archived · Original link
DUST MANAGEMENT PLAN
Report/ Statement
Not yet archived · Original link
ECIA AND BNG REPORT
Superseded
Not yet archived · Original link
ECIA AND BNG STATEMENT
Report/ Statement
Not yet archived · Original link
ECOLOGY
Consultee Comment
Not yet archived · Original link
ECOLOGY
Consultee Comment
Not yet archived · Original link
EDUCATION
Consultee Comment
Not yet archived · Original link
ENVIRONMENTAL PROTECTION
Consultee Comment
Not yet archived · Original link
FIRE SAFETY
Consultee Comment
Not yet archived · Original link
FLOOD RISK ASSESSMENT
Report/ Statement
Not yet archived · Original link
HEALTHY PLANNING CHECKLIST
Report/ Statement
Not yet archived · Original link
HIGHWAYS DM
Consultee Comment
Not yet archived · Original link
LLFA
Consultee Comment
Not yet archived · Original link
Location Plan
Location Plan
Not yet archived · Original link
NATURAL ENGLAND
Consultee Response
Not yet archived · Original link
NHS NORTH EAST
Consultee Response
Not yet archived · Original link
NWL
General Comment
Not yet archived · Original link
OPEN SPACE ASSESSMENT
Report/ Statement
Not yet archived · Original link
PHASE I AND II SITE ASSESSMENT INCLUDING MINERAL SAFEGARDING
Superseded
Not yet archived · Original link
PHASE I AND PHASE II GEO ENVIRONMENTAL SITE ASSESSMENT
Report/ Statement
Not yet archived · Original link
PLANNING STATEMENT
Report/ Statement
Not yet archived · Original link
PLANTING PROPOSALS
Plan
Not yet archived · Original link
POLICE
Consultee Comment
Not yet archived · Original link
PROPOSED BAT AND BIRD BOX LOCATION PLAN
Superseded
Not yet archived · Original link
PROPOSED BAT AND BIRD BOX PLAN
Amended Plan
Not yet archived · Original link
PROPOSED FIRE APPLICANCE ACCESS PLAN
Plan
Not yet archived · Original link
PROPOSED FLOOR, ROOF AND ELEVATIONS
Plan
Not yet archived · Original link
PROPOSED FLOOR, ROOF AND ELEVATIONS
Plan
Not yet archived · Original link
PROPOSED FLOOR, ROOF AND ELEVATIONS
Plan
Not yet archived · Original link
PROPOSED FLOOR, ROOF AND ELEVATIONS
Plan
Not yet archived · Original link
PROPOSED FLOOR, ROOF AND ELEVATIONS
Plan
Not yet archived · Original link
PROPOSED FLOOR, ROOF AND ELEVATIONS
Plan
Not yet archived · Original link
PROPOSED FLOOR, ROOF AND ELEVATIONS
Plan
Not yet archived · Original link
PROPOSED FLOOR, ROOF AND ELEVATIONS
Plan
Not yet archived · Original link
PROPOSED FLOOR, ROOF AND ELEVATIONS
Plan
Not yet archived · Original link
PROPOSED MATERIALS AND ENCLOSURES PLAN
Plan
Not yet archived · Original link
PROPOSED REFUSE ROUTES PLAN
Plan
Not yet archived · Original link
PROPOSED SITE SECTIONS
Plan
Not yet archived · Original link
PUBLIC HEALTH
Consultee Comment
Not yet archived · Original link
REDACTED
Application Form
Not yet archived · Original link
REMEDIATION AND ENABLING WORKS STRATEGY
Report/ Statement
Not yet archived · Original link
SITE SET UP AND BUILD ROUTE PLAN
Plan
Not yet archived · Original link
SPECIFICATION- LANDSCAPE MAINTENANCE
Superseded
Not yet archived · Original link
STATEMENT OF COMMUNITY INVOLVEMENT
Report/ Statement
Not yet archived · Original link
SUDS HEALTH AND SAFETY RISK ASSESSMENT
Report/ Statement
Not yet archived · Original link
SUPPORTING FIRE STATEMENT
Correspondence
Not yet archived · Original link
SURFACE WATER DISPOSAL PLAN
Report/ Statement
Not yet archived · Original link
SURFACE WATER MANAGEMENT PLAN
Plan
Not yet archived · Original link
SWEPT PATH ANALYSIS
Plan
Not yet archived · Original link
SWEPT PATH ANALYSIS FOR 11.22M REFUSE VEHICLE
Plan
Not yet archived · Original link
THE COAL AUTHORITY
Consultee Response
Not yet archived · Original link
TRANSPORT STATEMENT
Report/ Statement
Not yet archived · Original link
TREE LAYERS
Plan
Not yet archived · Original link
UNADOPTED HIGHWAY MAINTENANCE PLAN
Report/ Statement
Not yet archived · Original link
VEGETATION CLEARANCE ECOLOGY METHOD STATEMENT
Report/ Statement
Not yet archived · Original link

Have your say

Your comment matters. Councils must consider every representation that raises material planning considerations.

Write a comment