← Northumberland County Council

Status

Registered House extension
Received
Last month
New homes
0

Full proposal

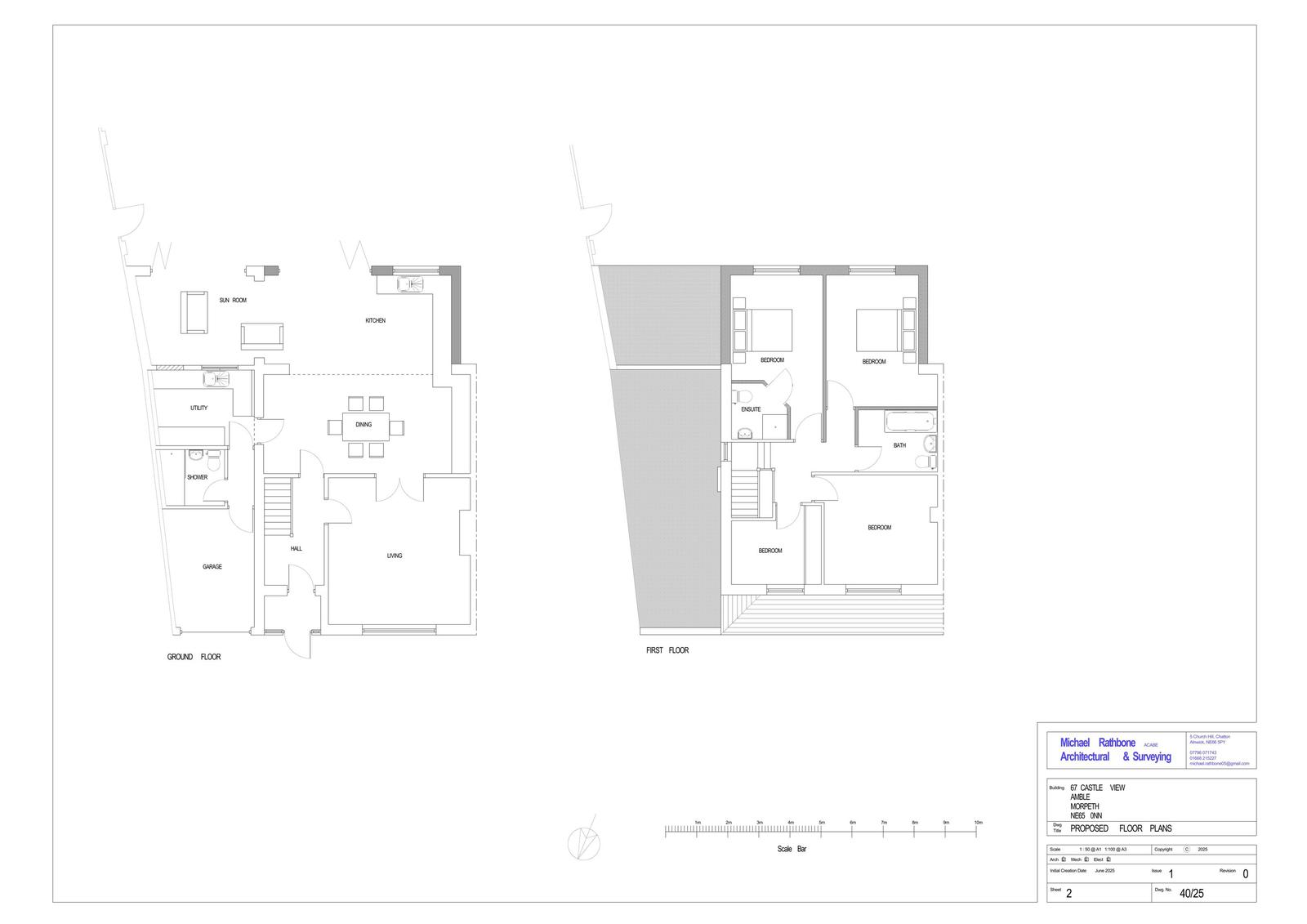
Proposed rear two storey extension, replacement flat roof coverings with new dark grey fibreglass roofing system

Documents

Application Form
Application Form
Not yet archived · Original link
CONSULTEE COMMENT SUBMITTED ONLINE
Consultee Comment
Not yet archived · Original link
ECOLOGY CHECKLIST
Ecology Checklist
Not yet archived · Original link
EXISTING AND PROPOSED ROOF PLAN
Plan
Not yet archived · Original link
EXISTING NORTH ELEVATION
Plan
Not yet archived · Original link
EXISTING PLANS AND ELEVATIONS
Plan
Not yet archived · Original link
Location Plan
Location Plan
Not yet archived · Original link
PROPOSED ELEVATIONS
Plan
Not yet archived · Original link

Have your say

Your comment matters. Councils must consider every representation that raises material planning considerations.

Write a comment