← Northumberland County Council

Status

Registered Change of use
Received
Last month
New homes
6

Full proposal

Conversion of agricultural buildings to form 6 no single storey dwellinghouses (Use Class C3), including internal alterations, insertion of openings, associated parking and residential curtilage.

Documents

CONSULTEE COMMENT SUBMITTED ONLINE
Consultee Comment
Not yet archived · Original link
CONTAMINATION ASSESSMENT
Report/ Statement
Not yet archived · Original link
ECOLOGY IMPACT ASSESSMENT
Report/ Statement
Not yet archived · Original link
EXISTING ELEVATIONS
Plan
Not yet archived · Original link
EXISTING FLOOR PLAN
Plan
Not yet archived · Original link
EXISTING ROOF PLANS
Plan
Not yet archived · Original link
Location Plan
Location Plan
Not yet archived · Original link
PROPOSED ELEVATIONS
Plan
Not yet archived · Original link
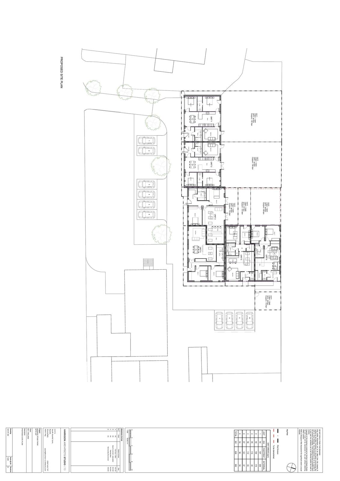
PROPOSED FLOOR PLAN
Plan
Not yet archived · Original link
PROPOSED ROOF PLAN
Plan
Not yet archived · Original link
REDACTED
Application Form
Not yet archived · Original link
STRUCTURAL ASSESSMENT A
Report/ Statement
Not yet archived · Original link
STRUCTURAL ASSESSMENT B
Report/ Statement
Not yet archived · Original link
STRUCTURAL ASSESSMENT C
Report/ Statement
Not yet archived · Original link
SUPPORTING STATEMENT
Report/ Statement
Not yet archived · Original link

Have your say

Your comment matters. Councils must consider every representation that raises material planning considerations.

Write a comment