← Northumberland County Council

Status

Registered House extension
Received
Last month
New homes
0

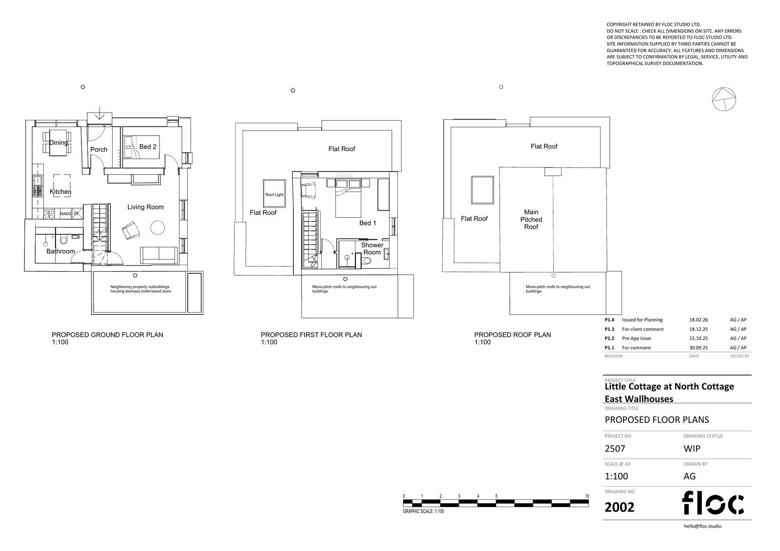
Full proposal

Erect a single-storey, flat-roofed side and rear infill extension; relocate principal entrance and internal alterations.

Documents

APPLICATION FORM REDACTED
Application Form
Not yet archived · Original link
CONSULTEE COMMENT SUBMITTED ONLINE
Consultee Comment
Not yet archived · Original link
DESIGN AND ACCESS/PLANNING STATEMENT_
Report/ Statement
Not yet archived · Original link
ECOLOGY CHECKLIST
Ecology Checklist
Not yet archived · Original link
EXISTING BUILDING 3D VIEWS
Plan
Not yet archived · Original link
EXISTING ELEVATIONS
Plan
Not yet archived · Original link
EXISTING FLOOR PLANS
Plan
Not yet archived · Original link
Location Plan
Location Plan
Not yet archived · Original link
PROPOSED 3D VIEWS
Plan
Not yet archived · Original link
PROPOSED ELEVATIONS
Plan
Not yet archived · Original link
SITE PHOTOS
Photo
Not yet archived · Original link

Have your say

Your comment matters. Councils must consider every representation that raises material planning considerations.

Write a comment