← Northumberland County Council
26/00814/FUL
Northumberland County Council
Status
Registered
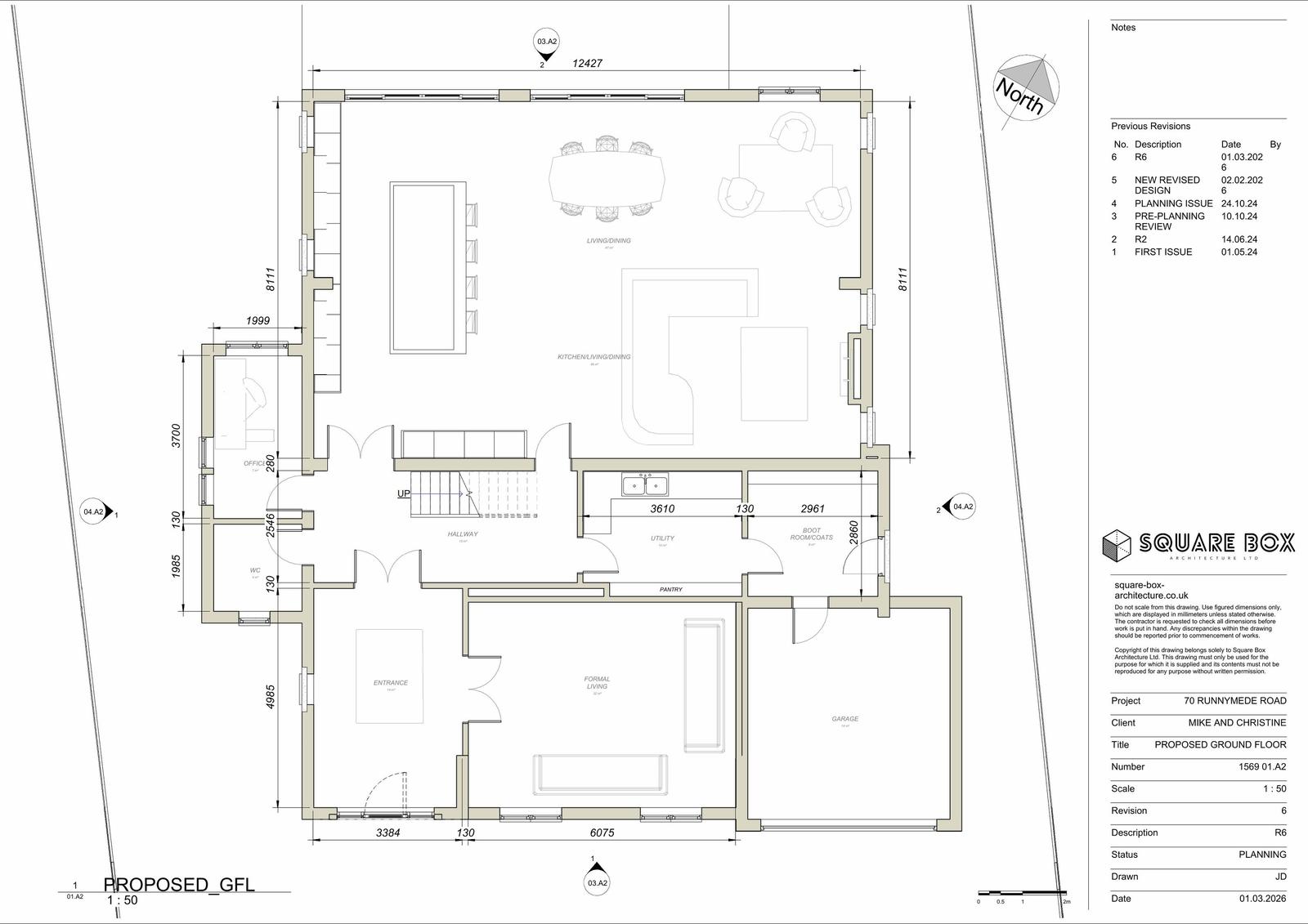
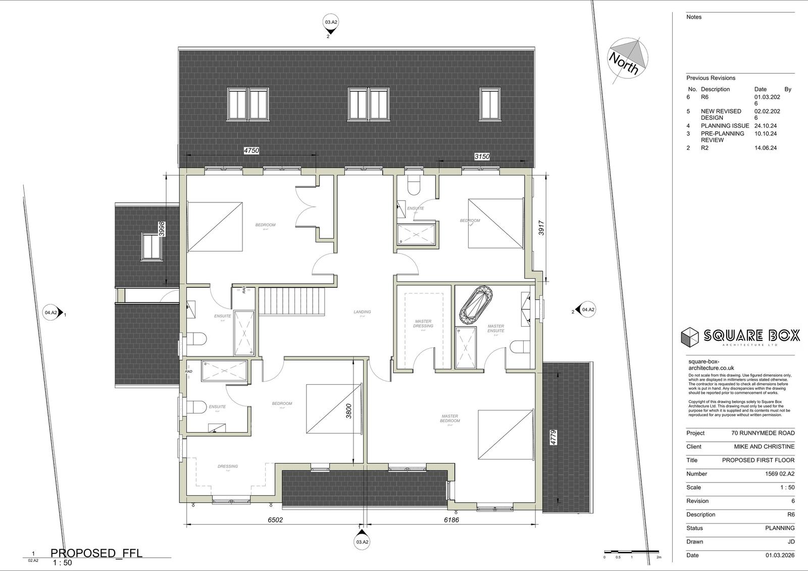
House extension
Received
Last month
New homes
0
Full proposal
Proposed rear extension, infill extension to the front squaring off the bay window and garage, partial demolition of the side garage to increase the distance to the side boundary
Documents
Have your say
Your comment matters. Councils must consider every representation that raises material planning considerations.