← Northumberland County Council
26/00831/AGTRES
Northumberland County Council
Status
Registered
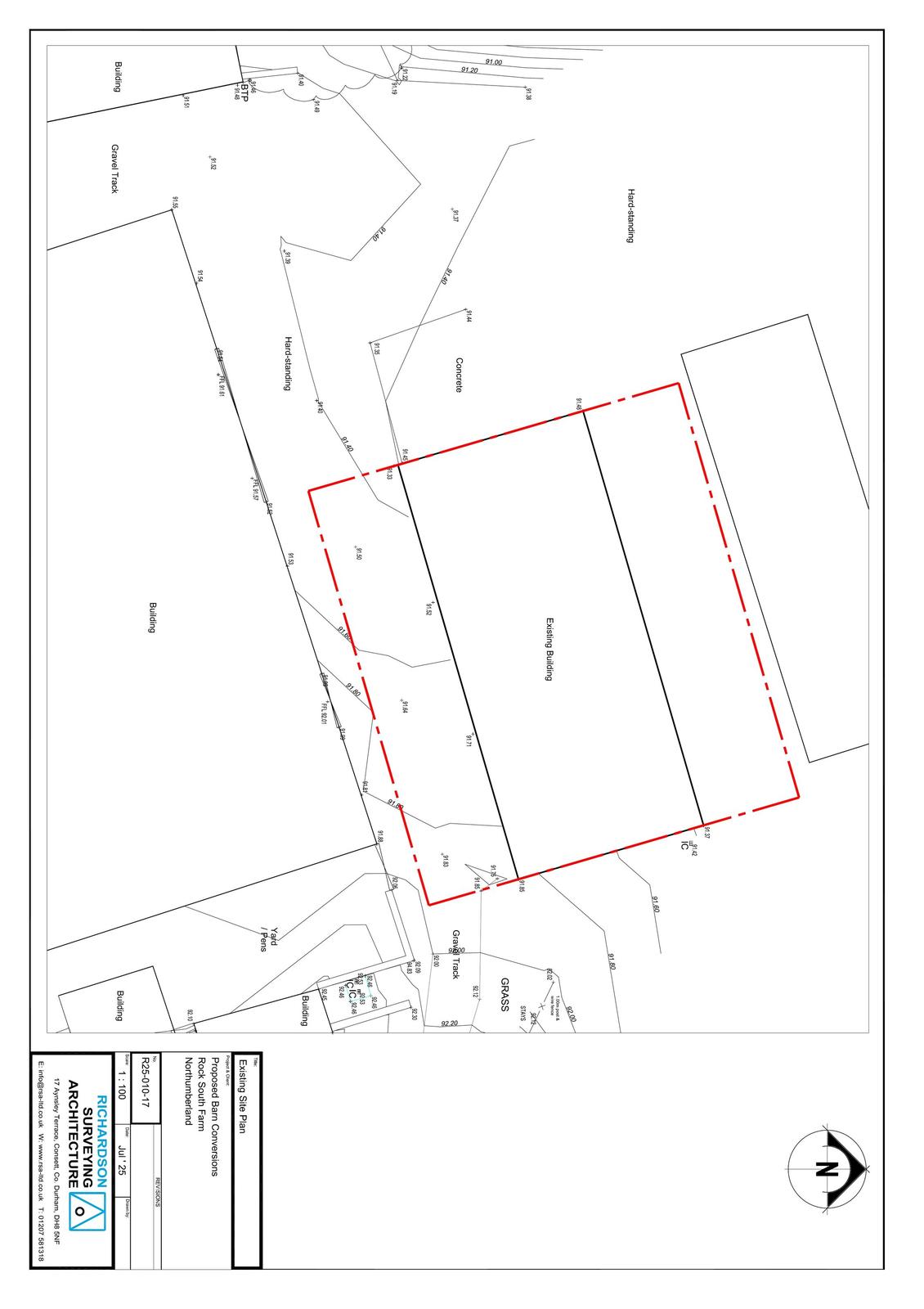
Change of use
Received
Last month
New homes
3
Full proposal
Notification of Prior Approval for change of use from agricultural building to residential, 3no. dwellinghouses.
Documents
Have your say
Your comment matters. Councils must consider every representation that raises material planning considerations.