← Northumberland County Council

Status

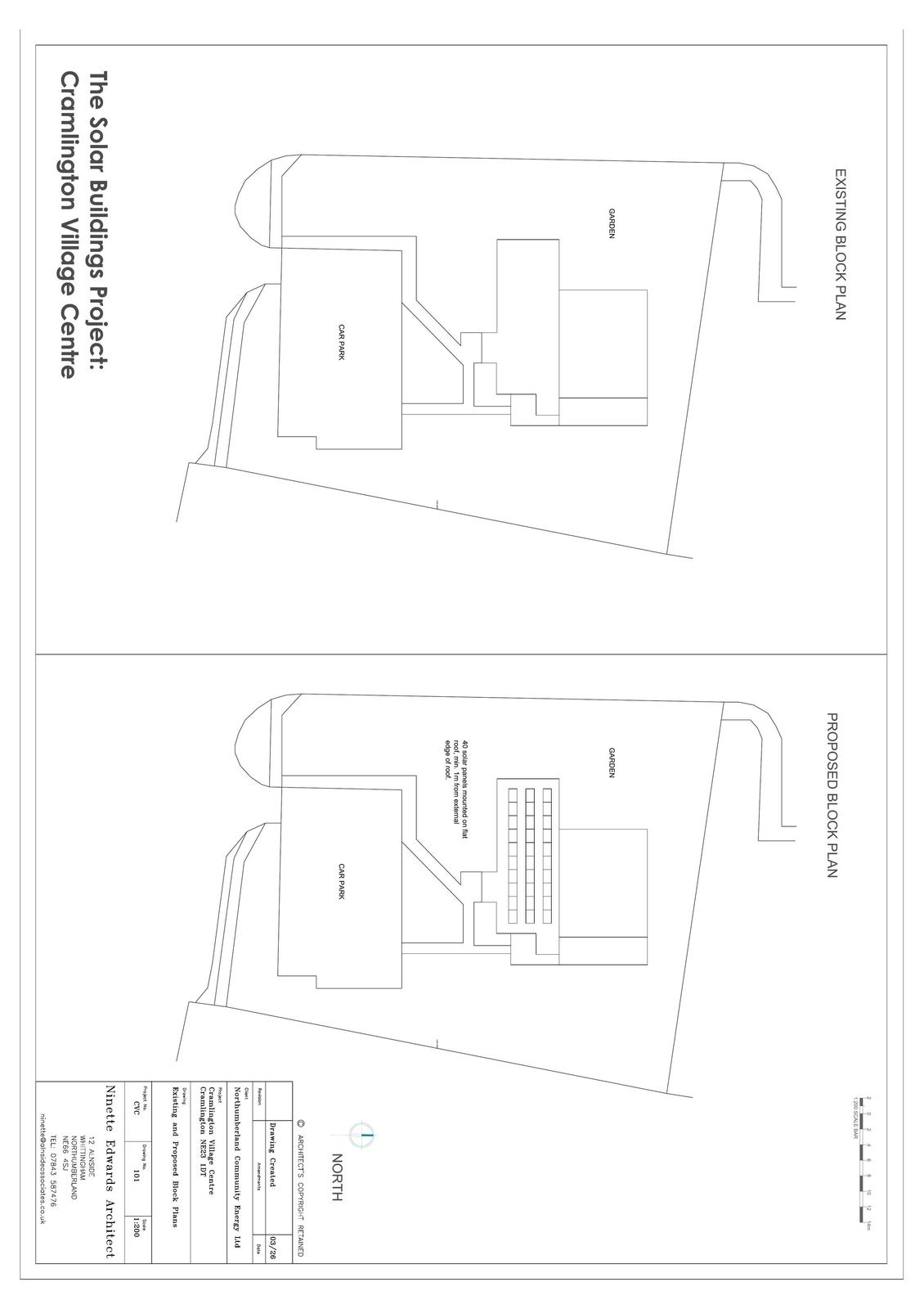
Registered Renewable energy
Received
29 days ago
New homes
0

Full proposal

Notification of Prior Approval to install 40 solar panels mounted on flat roof.

Documents

Application Form
Archived · Original link

Have your say

Your comment matters. Councils must consider every representation that raises material planning considerations.

Write a comment