← Northumberland County Council

Status

Registered Change of use
Received
28 days ago
New homes
1

Full proposal

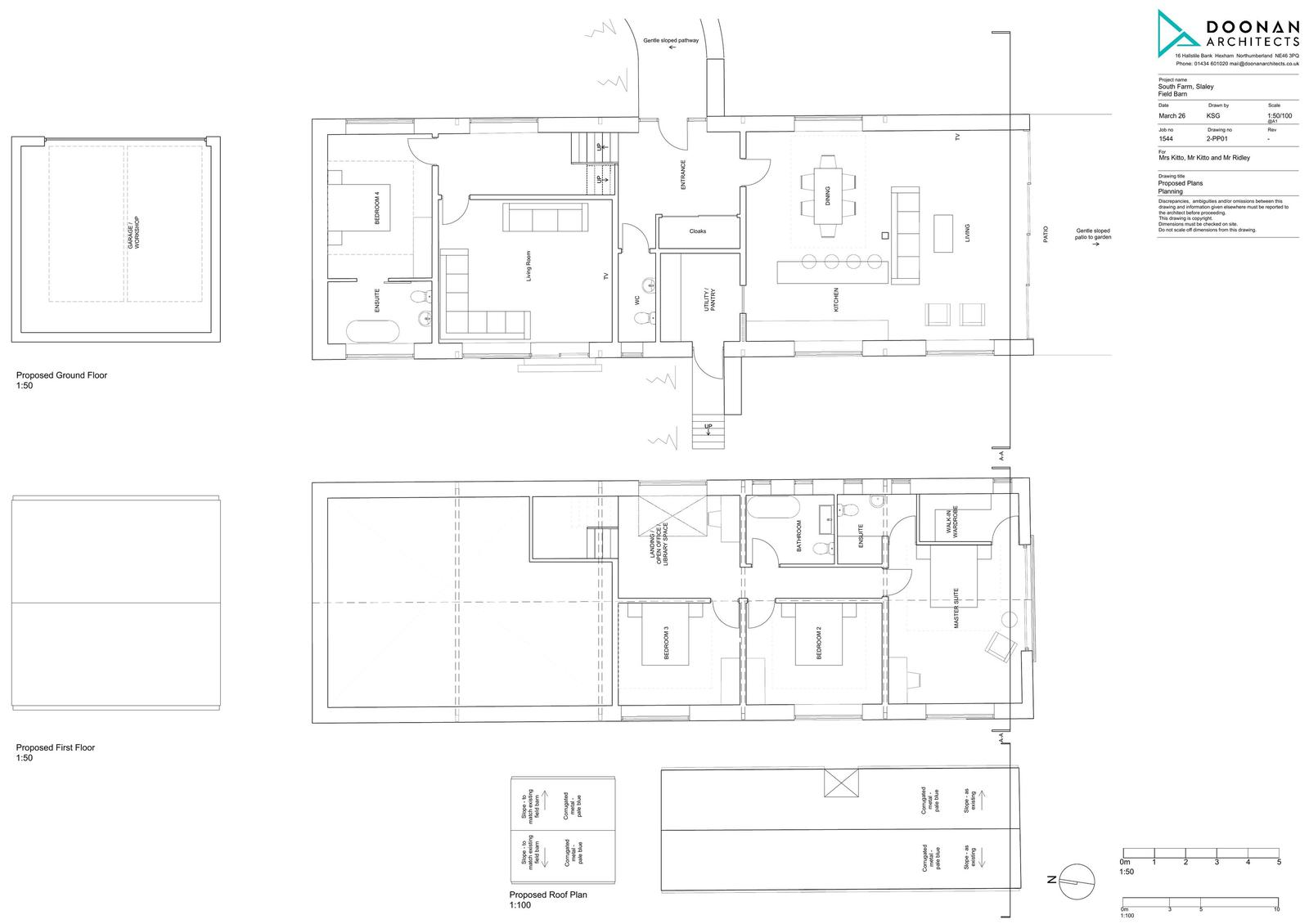
Conversion of barn into residential use.

Documents

Report/ Statement
Archived · Original link
BNG Metric Calculation Tool
BNG Metric Calculation Tool
Not yet archived · Original link
Consultee Comment
Archived · Original link
Consultee Comment
Archived · Original link
Report/ Statement
Archived · Original link
Report/ Statement
Archived · Original link
Report/ Statement
Archived · Original link
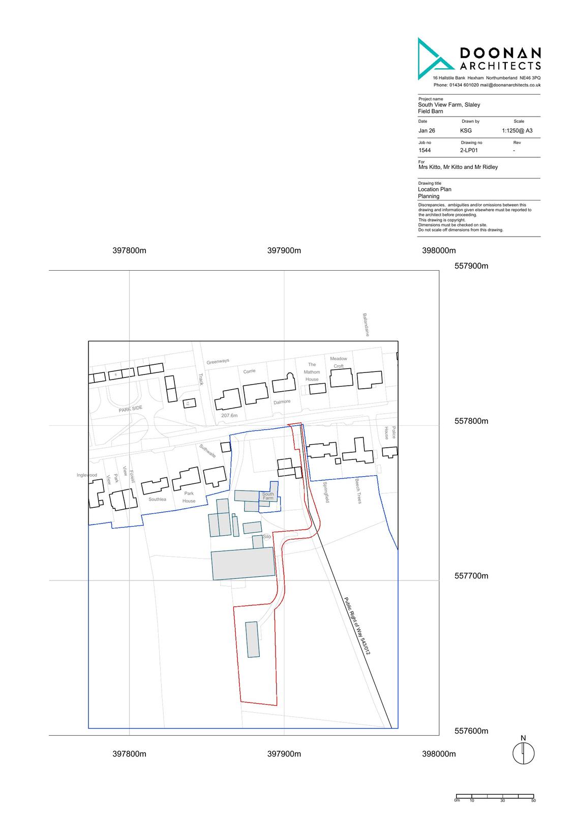
Location Plan
Archived · Original link
Application Form
Archived · Original link
THE STATUTORY METRIC
BNG Metric Calculation Tool
Not yet archived · Original link

Have your say

Your comment matters. Councils must consider every representation that raises material planning considerations.

Write a comment