← Nottingham City Council

Status

Pending Consideration Change of use
Received
06 Jan 2025
New homes
0

Full proposal

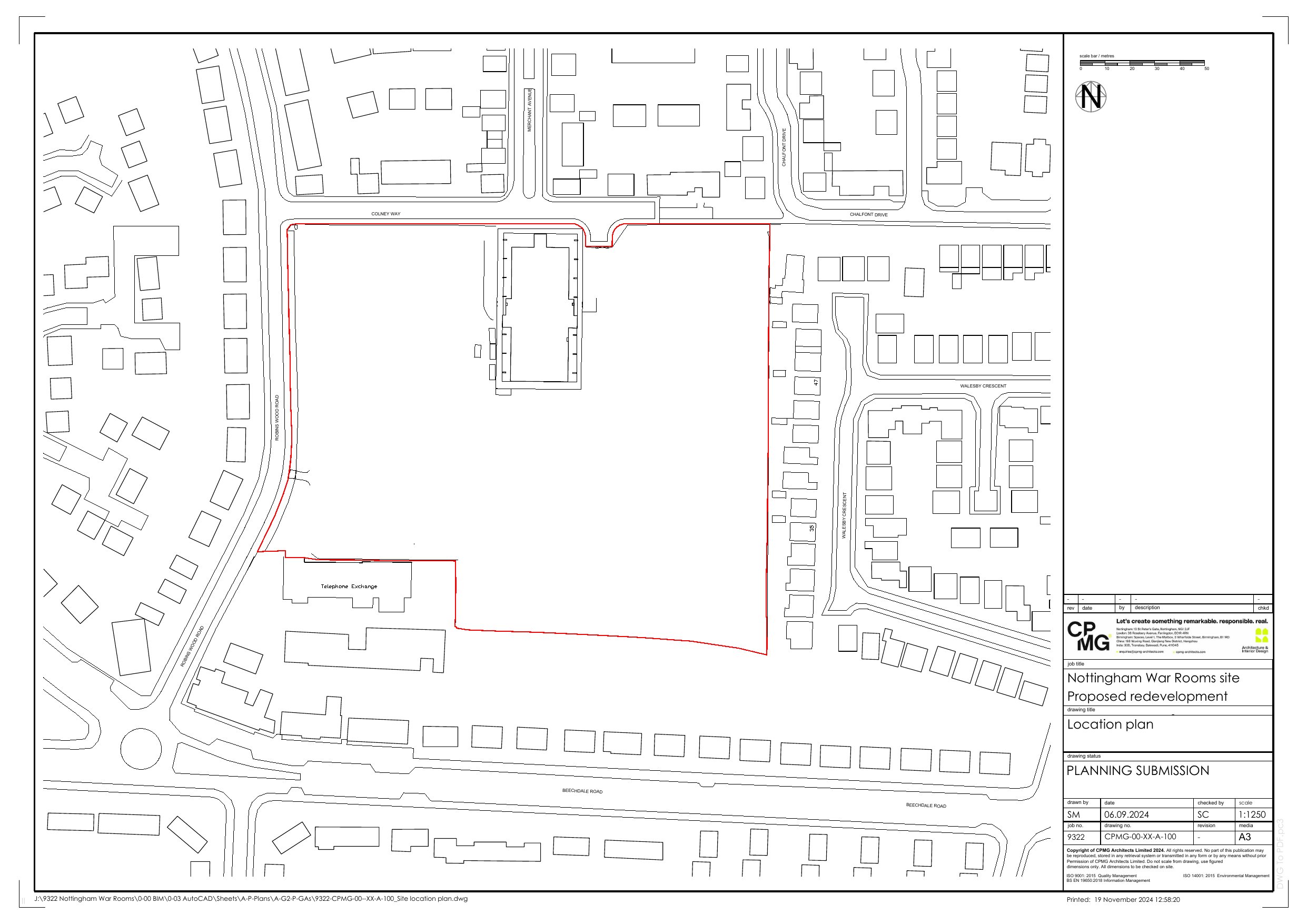
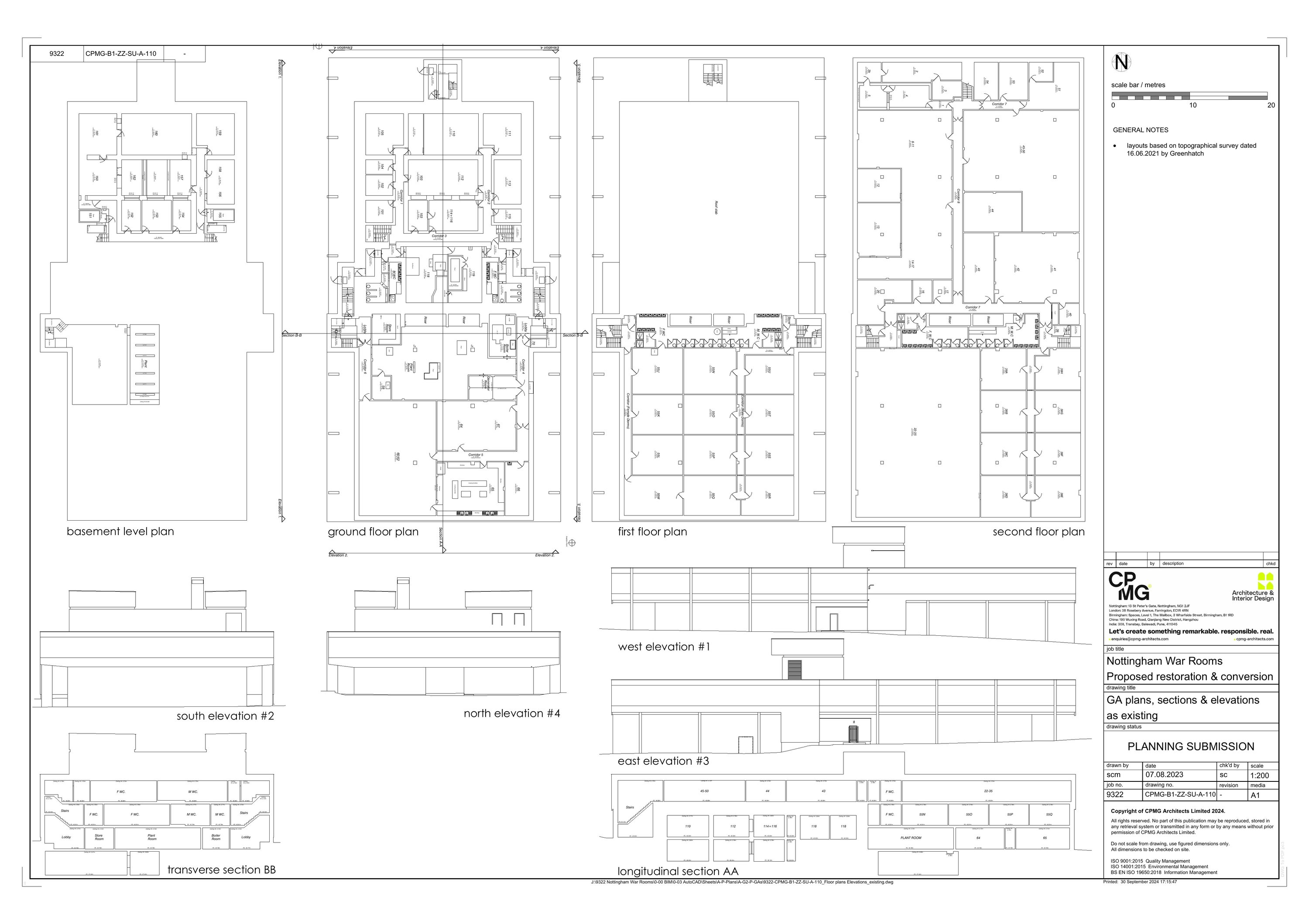
Alterations and extension to the existing War Rooms building to facilitate a change of use to a range of uses as detailed on the accompanying plans.

Documents

Layout Plans & Elevations
Archived · Original link
Layout Plans & Elevations
Archived · Original link
Layout Plans & Elevations
Archived · Original link
Layout Plans & Elevations
Archived · Original link
Layout Plans & Elevations
Archived · Original link
Layout Plans & Elevations
Archived · Original link
Layout Plans & Elevations
Archived · Original link
Layout Plans & Elevations
Archived · Original link
Layout Plans & Elevations
Archived · Original link
Layout Plans & Elevations
Archived · Original link
Site Location Plan
Archived · Original link
STATUS OF AREAS AND ARTEFACTS OF SPECIAL SIGNIFICANCE PART 1
Reports
Not yet archived · Original link

Have your say

Your comment matters. Councils must consider every representation that raises material planning considerations.

Write a comment