← Nottingham City Council

Status

Pending Consideration Commercial
Received
28 May 2025
New homes
0

Full proposal

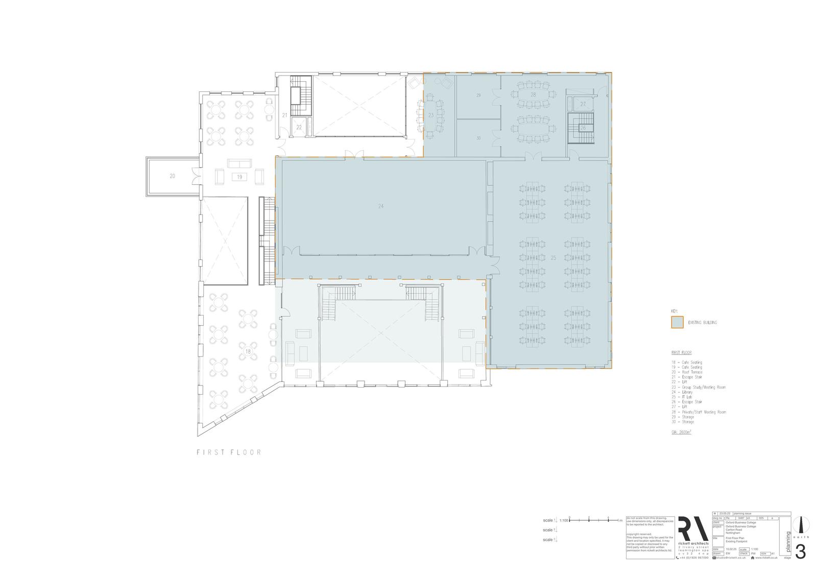
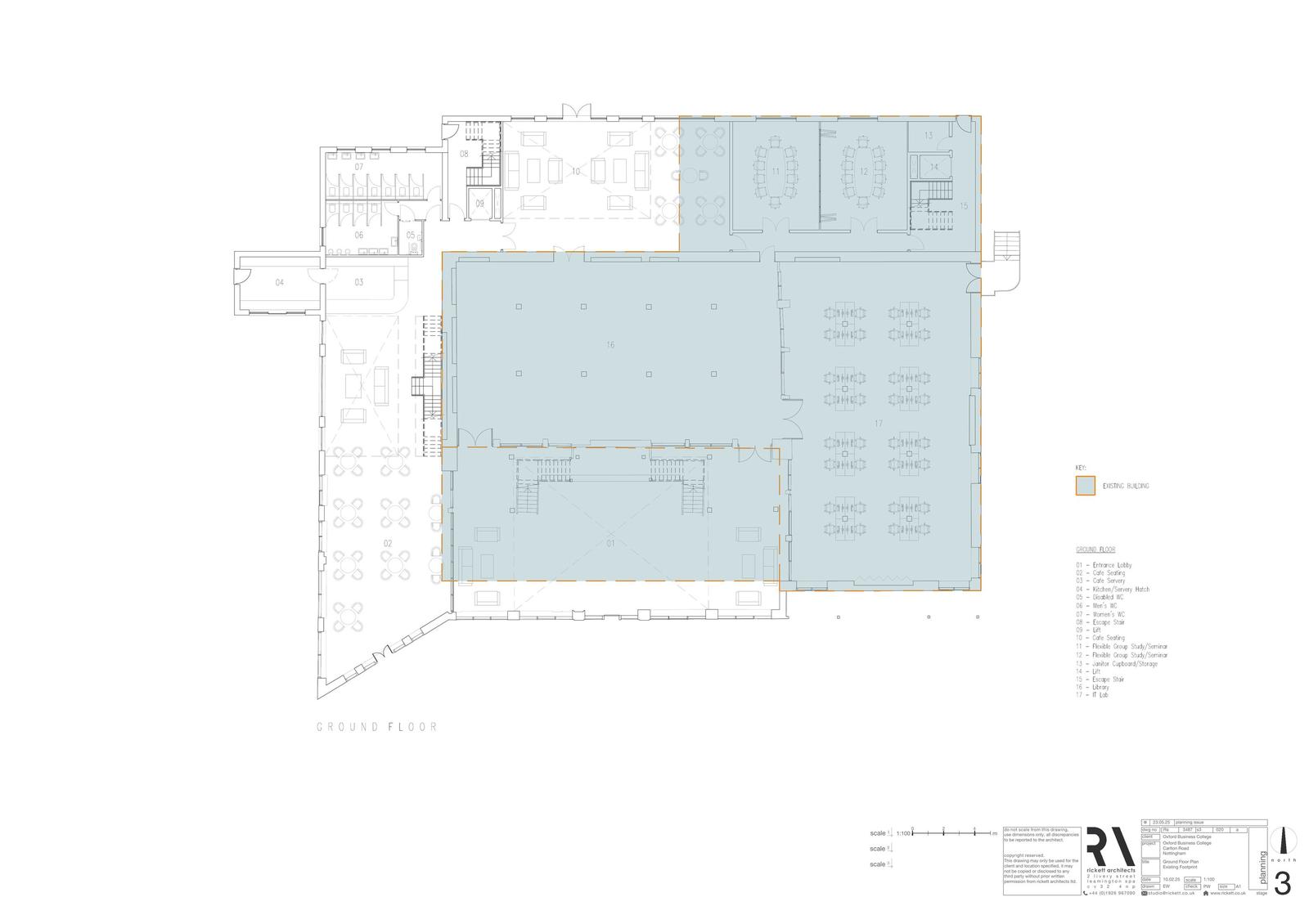
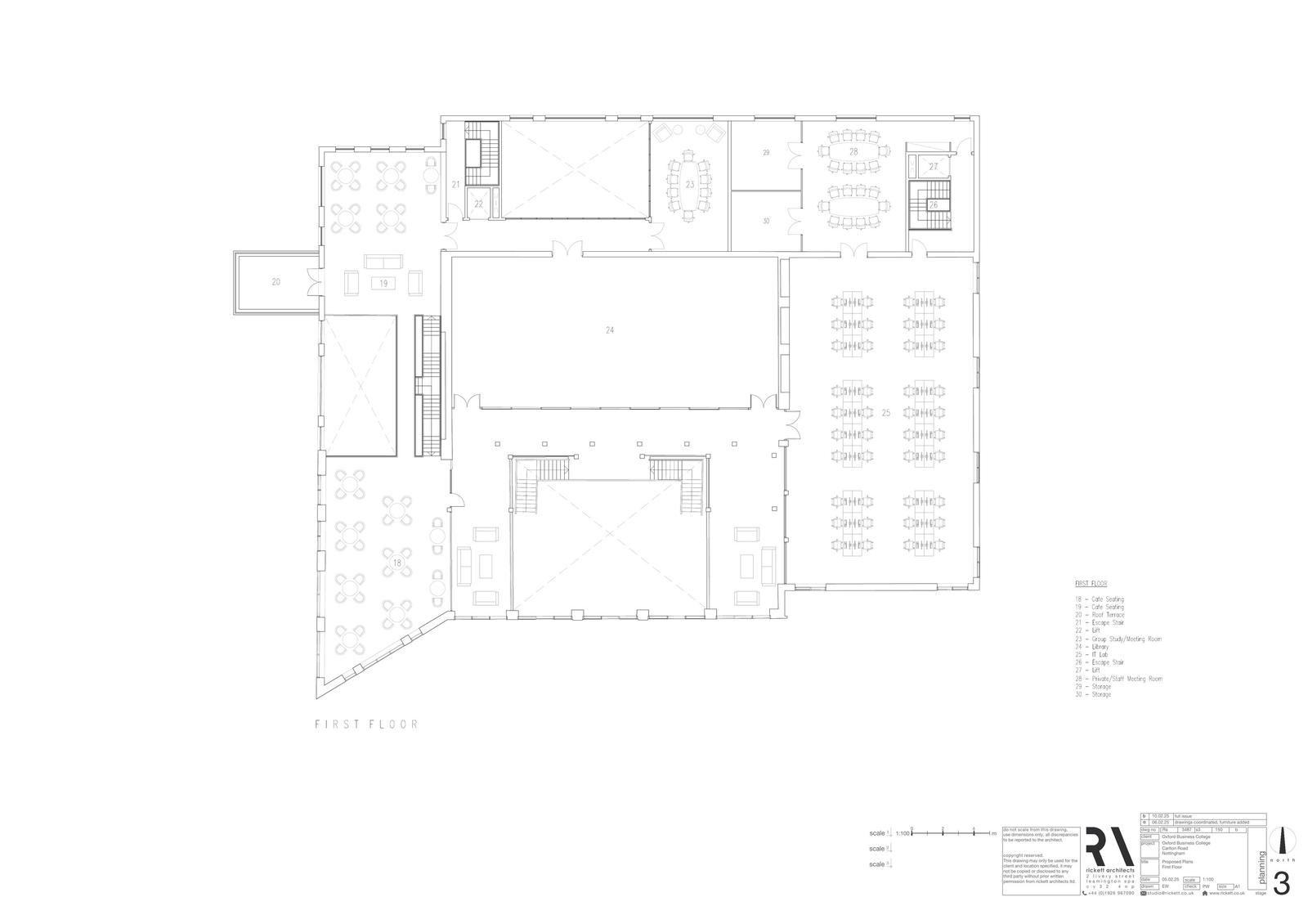
The conversion, partial demolition, and extension of the existing sports and leisure facility to form a new cafe/library building and provision of carpark to support the operations of Oxford Business College (part retrospective)

Documents

BIODIVERSITY_METRIC
Superceded Plans
Not yet archived · Original link
Reports
Archived · Original link
Reports
Archived · Original link
Layout Plans & Elevations
Archived · Original link
Layout Plans & Elevations
Archived · Original link
Layout Plans & Elevations
Archived · Original link
Layout Plans & Elevations
Archived · Original link
Layout Plans & Elevations
Archived · Original link
Reports
Archived · Original link
Reports
Archived · Original link
Layout Plans & Elevations
Archived · Original link
Layout Plans & Elevations
Archived · Original link
Layout Plans & Elevations
Archived · Original link
Layout Plans & Elevations
Archived · Original link
Layout Plans & Elevations
Archived · Original link
Layout Plans & Elevations
Archived · Original link
Layout Plans & Elevations
Archived · Original link
Site Location Plan
Archived · Original link
Layout Plans & Elevations
Archived · Original link
Reports
Archived · Original link

Have your say

Your comment matters. Councils must consider every representation that raises material planning considerations.

Write a comment