← Back to Nottingham City Council
Application
26/00066/LLIS1
Nottingham City Council · IDOX
Status
Pending Consideration
Received
23 days ago
New dwellings
n/a
What you can do
Take Action
Make your voice heard. Authorities need to hear from people who support new homes.
Full Proposal
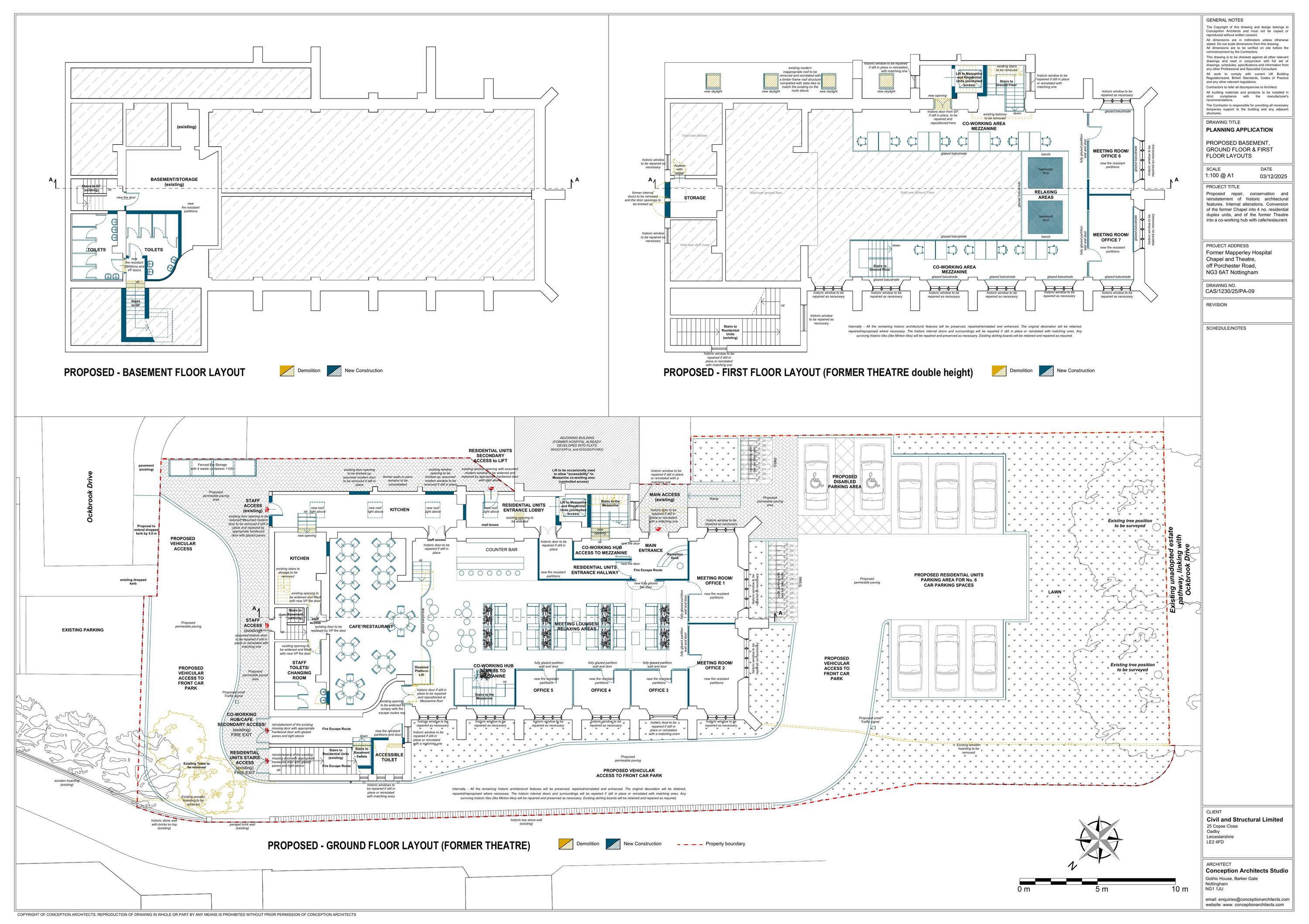
Proposed internal and external alterations and conversion of the former Chapel into 4 no. residential units, and of the former Theatre into a co-working space and cafe/restaurant, at the Mapperley Hospital Theatre and Chapel, off Porchester Road, Nottingham.
Detail pages
- View live detail on council site
- No archived detail page available.
Documents
APPLICATION FORM - WITHOUT PERSONAL DATA
Application Form
Not downloaded
· Council link
DESIGN AND ACCESS STATEMENT
Reports
Not downloaded
· Council link
EXISTING FLOOR PLANS
Layout Plans & Elevations
Not downloaded
· Council link
EXISTING FLOOR PLANS 2
Layout Plans & Elevations
Not downloaded
· Council link
EXISTING NE & SE ELEVATIONS
Layout Plans & Elevations
Not downloaded
· Council link
EXISTING ROOF PLAN LAYOUT
Layout Plans & Elevations
Not downloaded
· Council link
EXISTING SECTION AA
Layout Plans & Elevations
Not downloaded
· Council link
EXISTING SW & NW ELEVATIONS
Layout Plans & Elevations
Not downloaded
· Council link
FIRE STRATEGY
Reports
Not downloaded
· Council link
PROPOSED FLOOR PLANS
Layout Plans & Elevations
Archived copy
· Council link
PROPOSED FLOOR PLANS 2
Layout Plans & Elevations
Archived copy
· Council link
PROPOSED NE & SE ELEVATIONS
Layout Plans & Elevations
Not downloaded
· Council link
PROPOSED ROOF LAYOUT PLAN
Layout Plans & Elevations
Not downloaded
· Council link
PROPOSED SECTION AA
Layout Plans & Elevations
Not downloaded
· Council link
PROPOSED SW & NW ELEVATIONS
Layout Plans & Elevations
Not downloaded
· Council link
PROPOSED VEHICULAR ACCESS TO CAR PARK
Layout Plans & Elevations
Not downloaded
· Council link
PROTECTED SPECIES SURVEY
Reports
Not downloaded
· Council link
STATEMENT OF HERITAGE SIGNIFICANCE AND HERITAGE IMPACT ASSESSMENT
Reports
Not downloaded
· Council link
THE LOCATION PLAN
Site Location Plan
Not downloaded
· Council link