← Nottingham City Council

Status

Pending Consideration House extension
Received
Last month
New homes
0

Full proposal

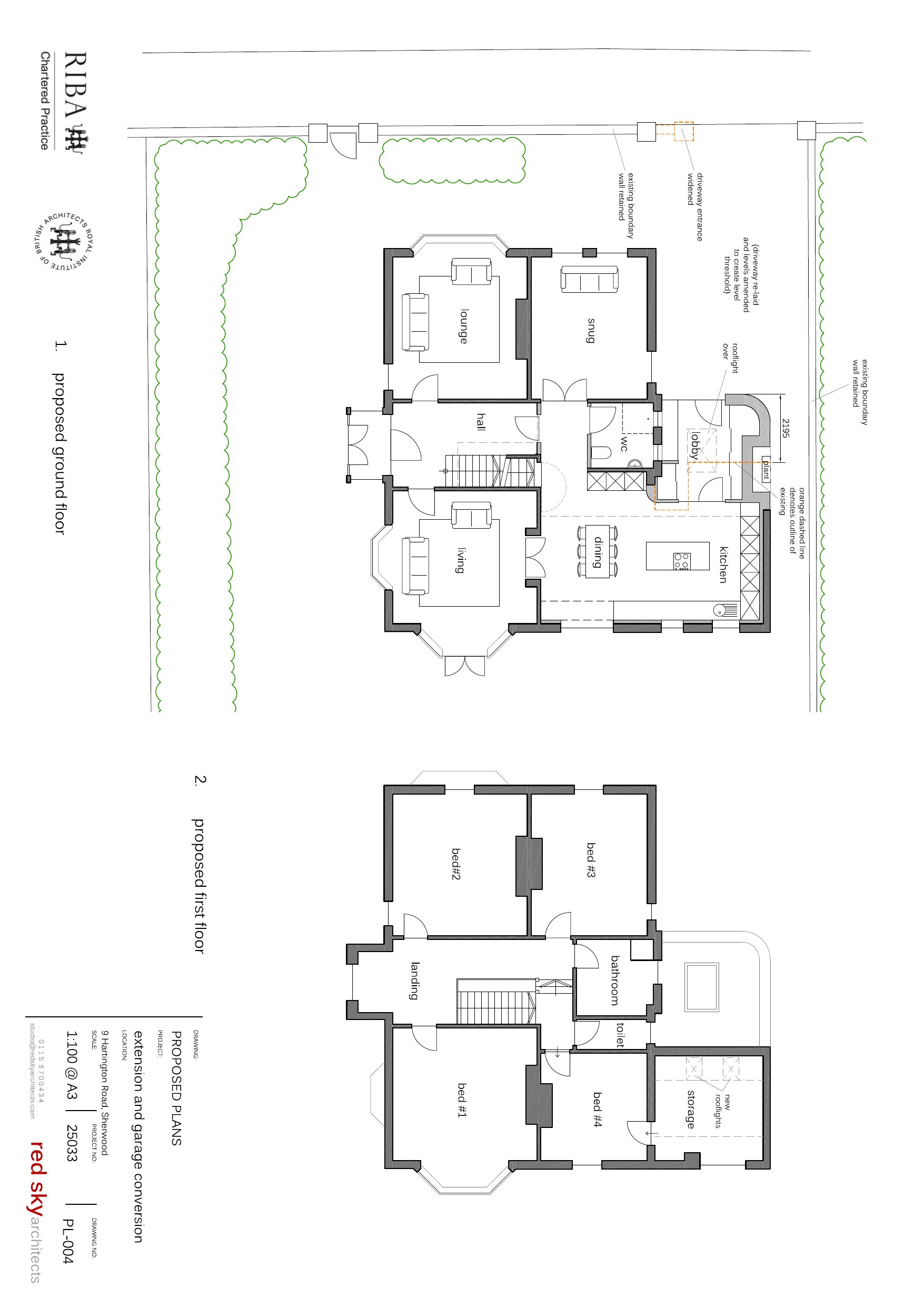
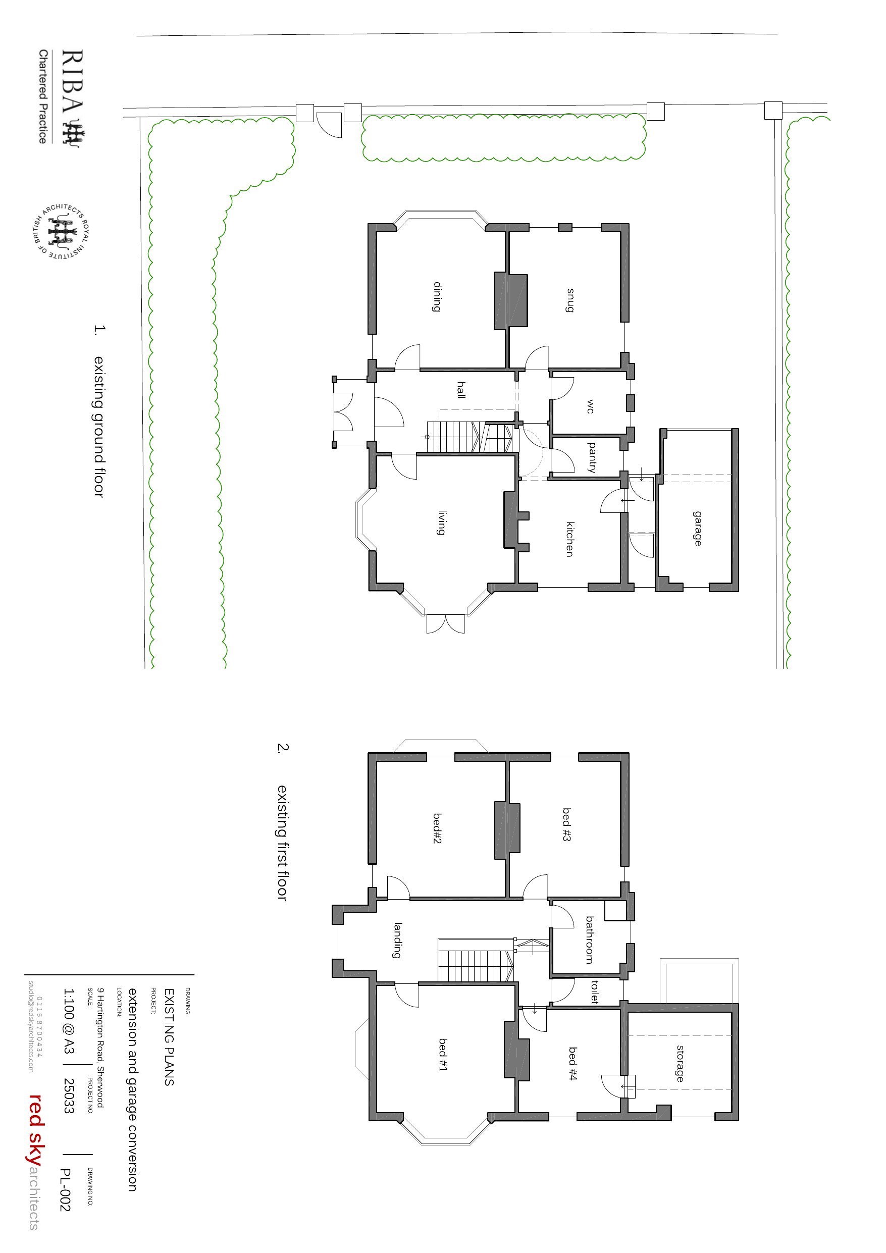
Garage conversion and single storey side extension, re-laying of driveway and widening of entrance.

Documents

Layout Plans & Elevations
Archived · Original link
Layout Plans & Elevations
Archived · Original link
Layout Plans & Elevations
Archived · Original link
Layout Plans & Elevations
Archived · Original link
Layout Plans & Elevations
Archived · Original link
Site Location Plan
Archived · Original link

Have your say

Your comment matters. Councils must consider every representation that raises material planning considerations.

Write a comment