← Oadby & Wigston Borough Council

Status

Unknown Change of use
Received
05 May 2025
New homes
1

Full proposal

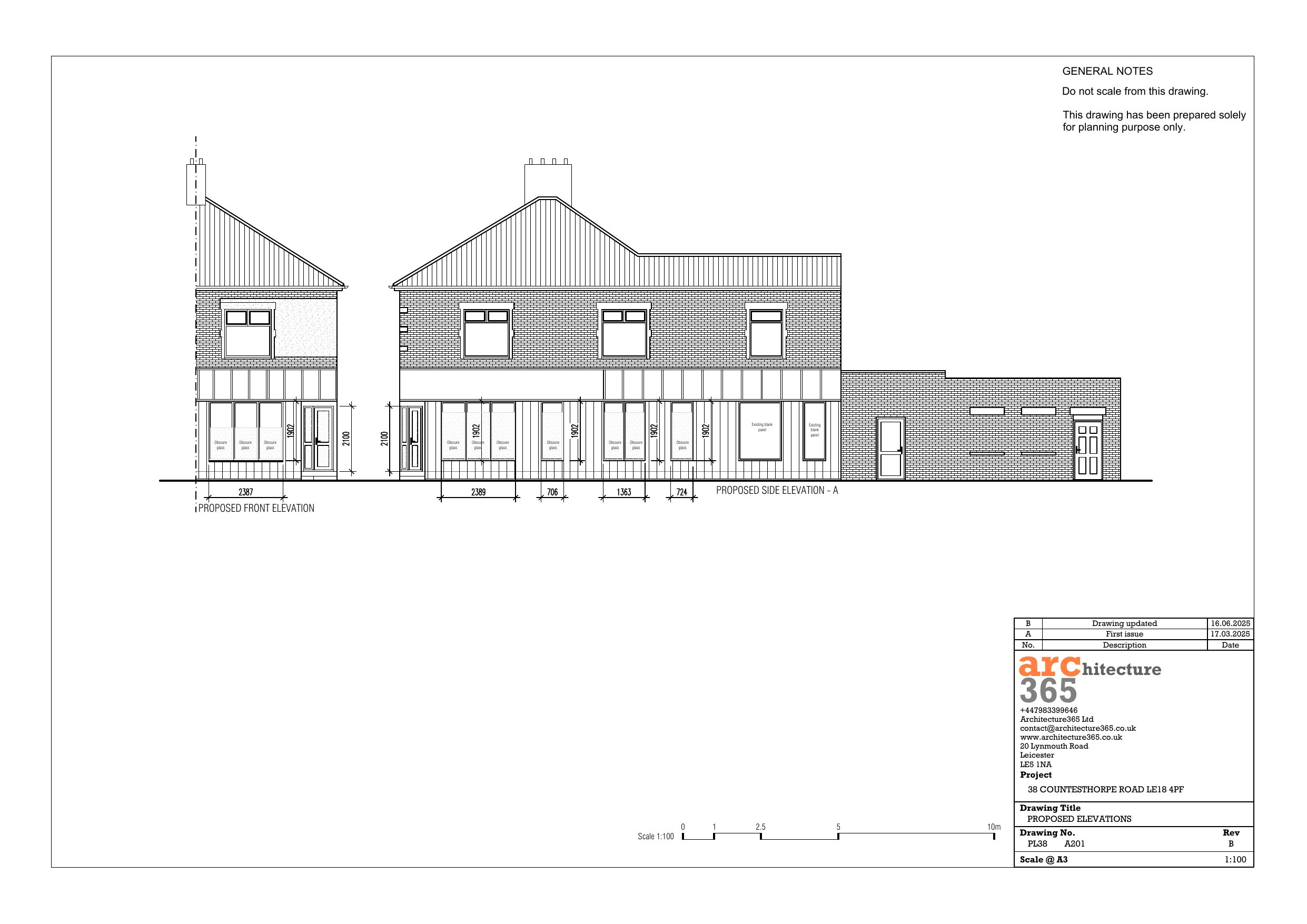
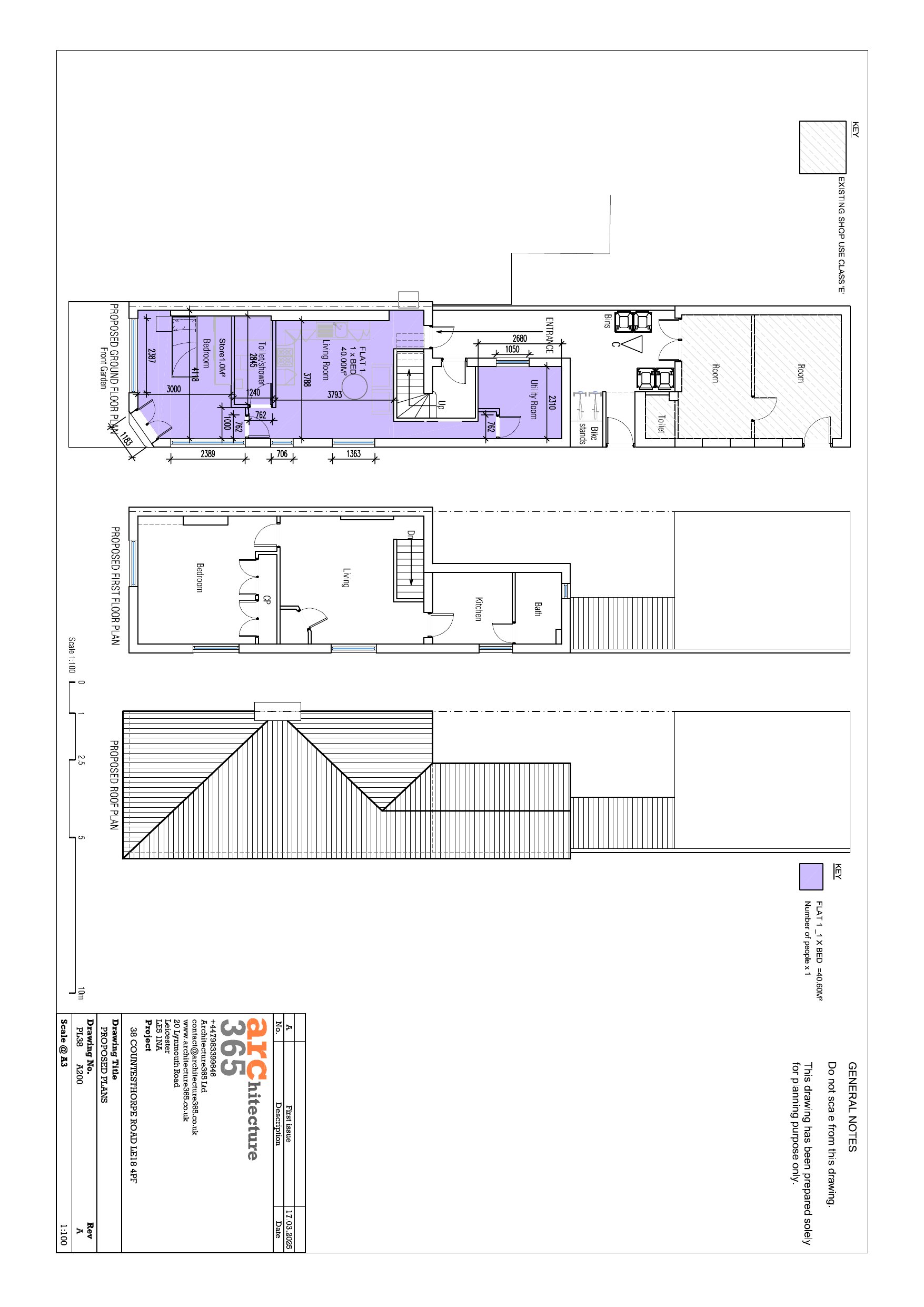
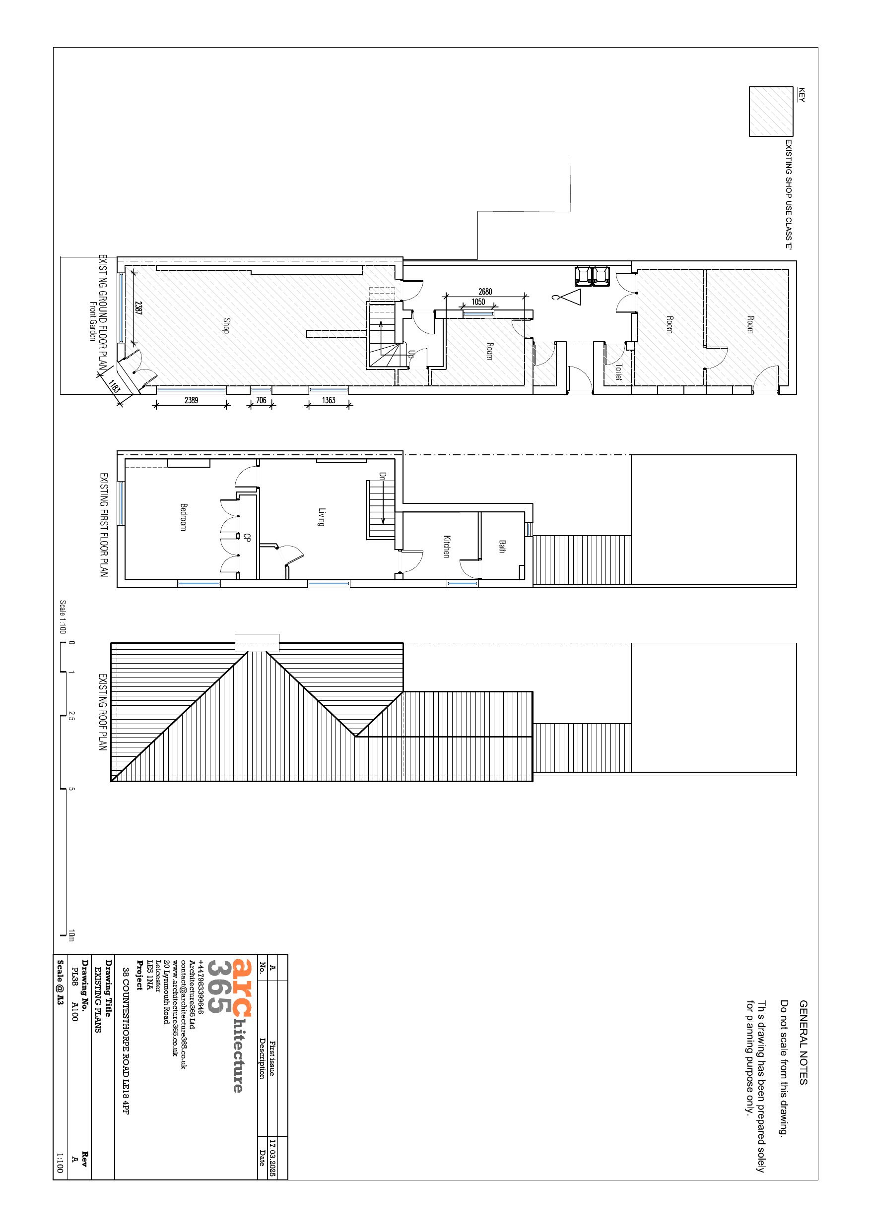
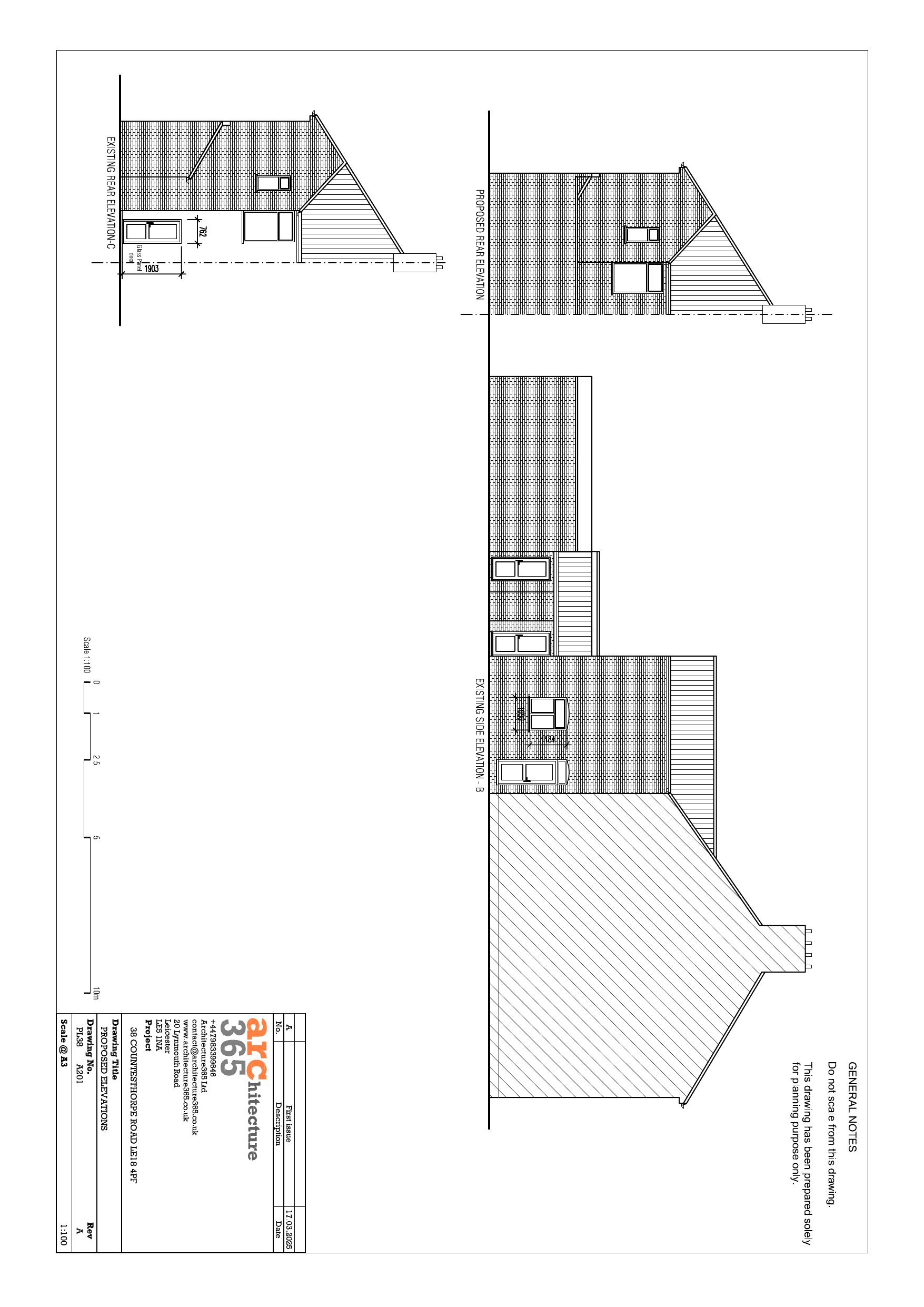
Change of use of the ground floor from shop (Class E) to 1 flat (Class C3)

Documents

Application Form - 1App
Archived · Original link
Decision
Archived · Original link
Drawing - Approved
Archived · Original link
Drawing - Superseded
Archived · Original link
Drawing - Approved
Archived · Original link
Drawing - Superseded
Archived · Original link
Drawing - Approved
Archived · Original link
Drawing - Approved
Archived · Original link
Application Supporting Docs
Archived · Original link
Drawing - Superseded
Archived · Original link
Drawing - Approved
Archived · Original link
Drawing - Approved
Archived · Original link
Drawing - Superseded
Archived · Original link
Drawing - Superseded
Archived · Original link
Drawing - Approved
Archived · Original link
Drawing - Approved
Archived · Original link
Drawing - Approved
Archived · Original link

Have your say

Your comment matters. Councils must consider every representation that raises material planning considerations.

Write a comment