← Oadby & Wigston Borough Council

Status

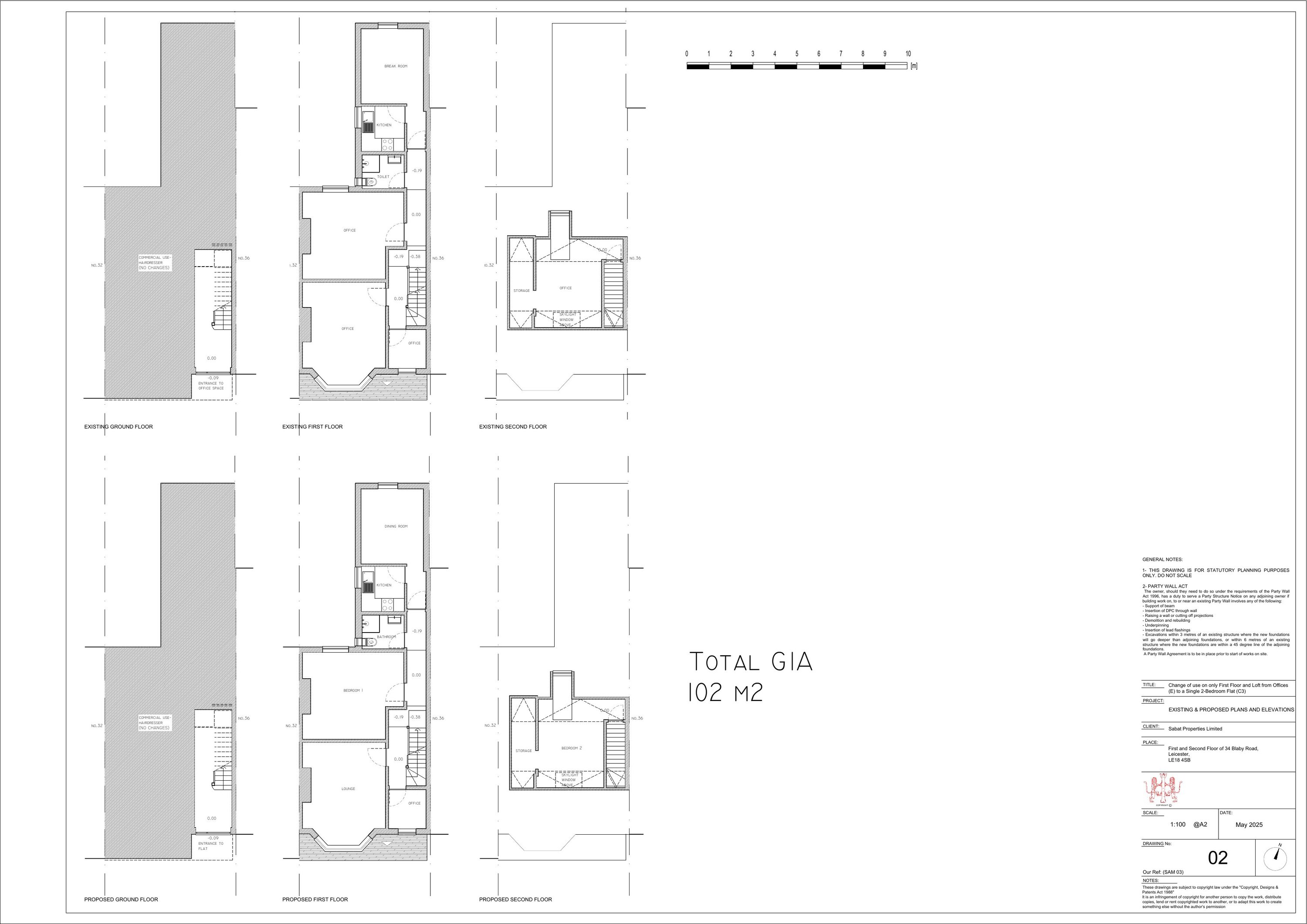
Unknown Change of use
Received
21 May 2025
New homes
1

Full proposal

Change of use from office space to 1 no. two-bedroom flat located on the first and second floor

Documents

Application Form - 1App
Archived · Original link
Decision
Archived · Original link
Application Supporting Docs
Archived · Original link
Drawing - Superseded
Archived · Original link
Drawing - Approved
Archived · Original link

Have your say

Your comment matters. Councils must consider every representation that raises material planning considerations.

Write a comment