← Back to Oldham Council

Status

Awaiting decision New housing
Received 14 Jan 2025
New dwellings 2

What you can do

Take Action

Make your voice heard. Authorities need to hear from people who support new homes.

Summary

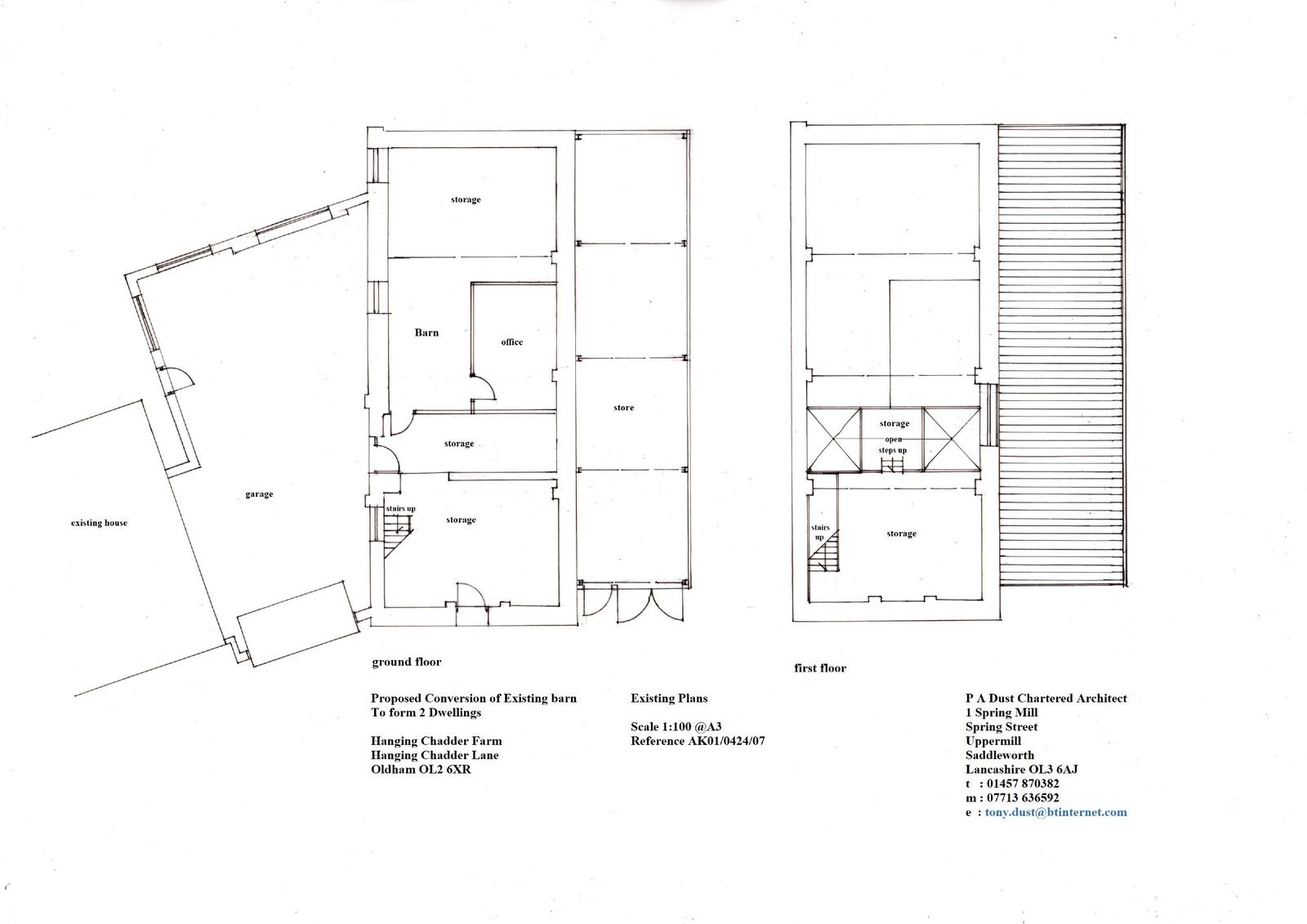
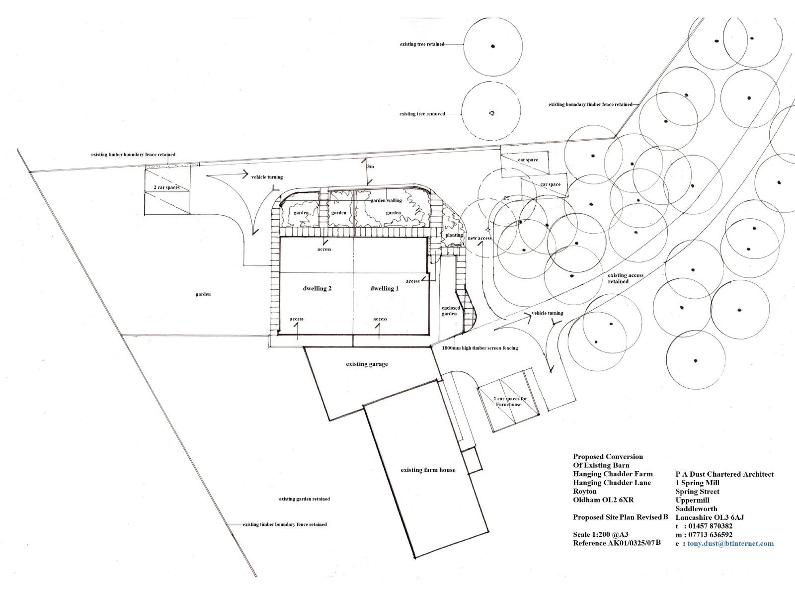
Conversion of barn and store to create two dwellings with associated works.

Full Proposal

Conversion of barn and store to create 2 no. dwellings including demolition and rebuilding of existing garage wall and associated access arrangements for new and existing dwellings.

Detail pages

Documents

APPLICATIONFORMREDACTED
Application Form
Not downloaded · Council link
ARBORICULTURAL IMPACT ASSESSMENT_2128.01
Tree survey
Not downloaded · Council link
ARBORICULTURAL METHOD STATEMENT_2128.01
Tree survey
Not downloaded · Council link
BARN ELEVATIONS REVISED C
Plans
Not downloaded · Council link
BARN SITE PLAN PROPOSED
Plans
Archived copy · Council link
BNG METRIC
Biodiversity survey & report
Not downloaded · Council link
EXISTING ELEVATIONS
Plans
Not downloaded · Council link
EXISTING PLANS
Plans
Not downloaded · Council link
EXISTING SITE PLAN
Plans
Archived copy · Council link
HANGING CHADDER BAT REPORT
Biodiversity survey & report
Not downloaded · Council link
LOCATIONPLAN
Plans
Not downloaded · Council link
PROPOSED ELEVATIONS REV B
Amended Plans
Not downloaded · Council link
PROPOSED PLANS REV B
Amended Plans
Archived copy · Council link
PROPOSED PLANS REVISED B
Plans
Archived copy · Council link
SITE LAYOUT REV B
Amended Plans
Not downloaded · Council link