← Oldham Council

Status

Awaiting decision Change of use
Received
02 Apr 2025
New homes
4

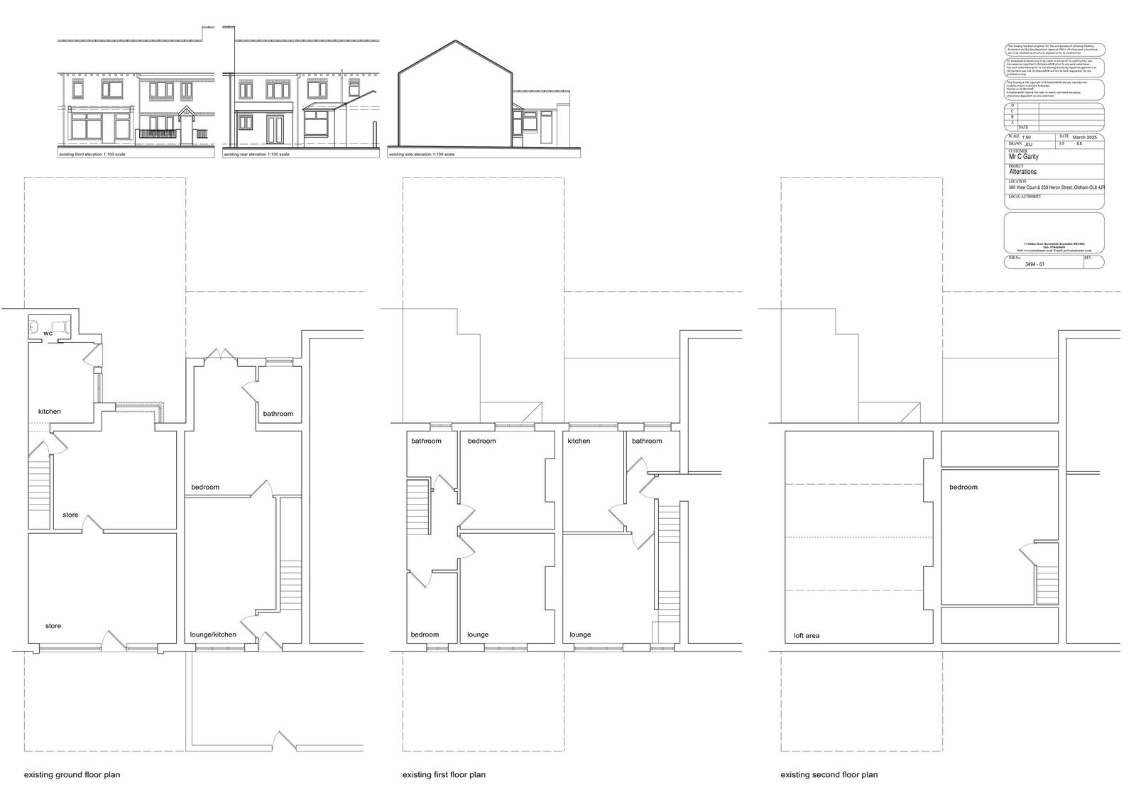
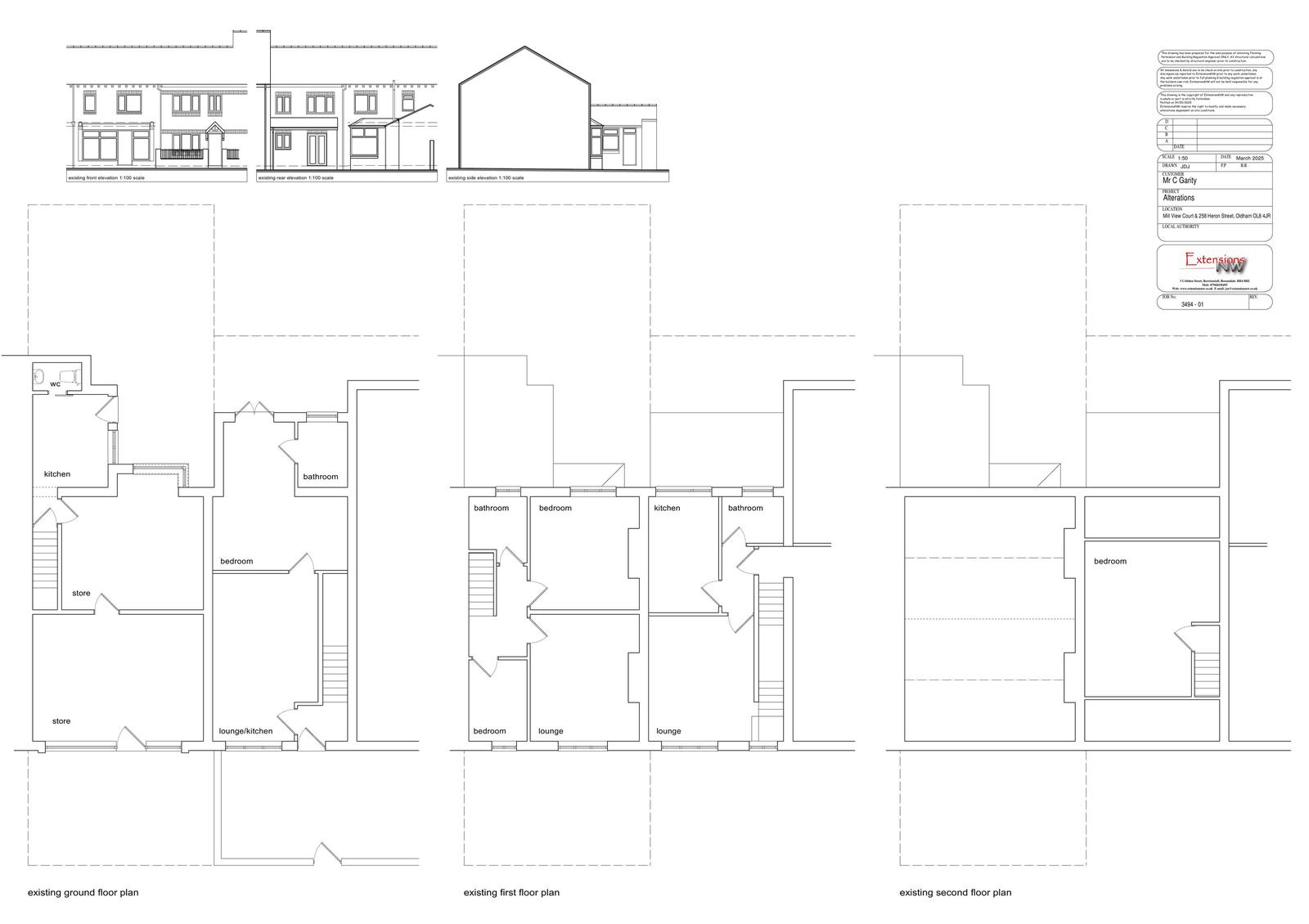
Full proposal

1. Conversion of ground floor commercial unit and first floor flat into 3 no. 1 bedroom flats and 1 no. 2 bedroom flat 2. Two storey extensions to No.258 and Flat No. 4 and 3 Mill View court 3. Single storey extension to the rear of No. 258.

Have your say

Your comment matters. Councils must consider every representation that raises material planning considerations.

Write a comment