← Oldham Council

Status

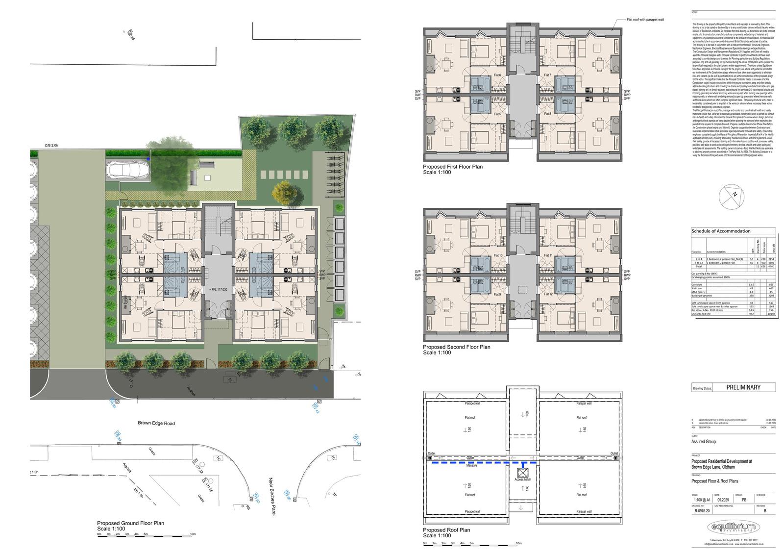
Awaiting decision New housing
Received
30 Oct 2025
New homes
12

Full proposal

Residential development comprising of 12 No flats.

Have your say

Your comment matters. Councils must consider every representation that raises material planning considerations.

Write a comment