← Oldham Council

Status

Awaiting decision Change of use
Received
19 Jan 2026
New homes
4

Full proposal

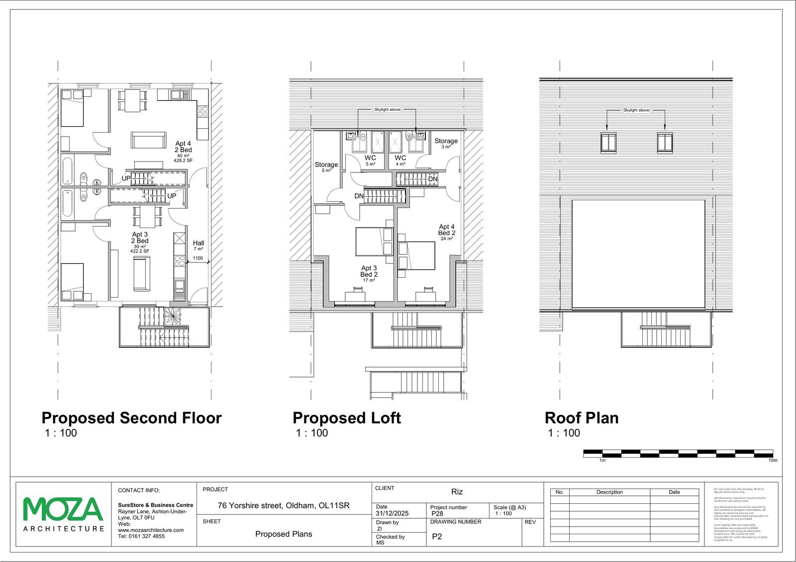
Part change of use from Class E to Class C3 to provide 4 self-contained flats at first floor, second floor and loft level, including loft conversion with rear dormer and all flats with separate rear access and associated bin storage and cycle storage.

Documents

APPLICATIONFORMREDACTED
Application Form
Not yet archived · Original link
DESIGN AND ACCESS STATEMENT P28
Design and Access Statement
Not yet archived · Original link
The location plan
Archived · Original link
P28 - E1-EXISTING FLOOR PLANS
Plans
Not yet archived · Original link
P28 - E2-EXISTING ELEVATIONS
Plans
Not yet archived · Original link
P28 - E3-EXISTING ELEVATIONS
Plans
Not yet archived · Original link
P28 - P3-PROPOSED ELEVATIONS
Plans
Not yet archived · Original link
P28 - P4-PROPOSED ELEVATIONS
Plans
Not yet archived · Original link
Site & other plans
Archived · Original link

Have your say

Your comment matters. Councils must consider every representation that raises material planning considerations.

Write a comment