← Oldham Council

Status

Awaiting decision Change of use
Received
28 Jan 2026
New homes
0

Full proposal

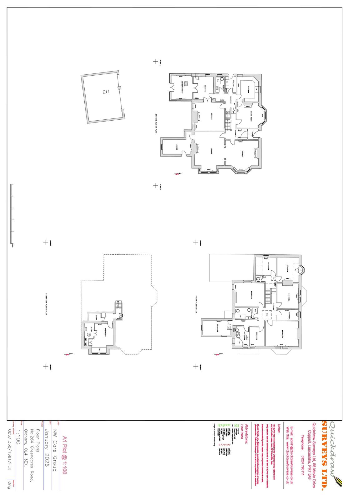
Change of use of dwelling (Class C3), to respite care providing 7 overnight places and 10 day places for children with additional needs (Class C2)

Documents

074 01-LOCATION PLAN
The location plan
Not yet archived · Original link
Site & other plans
Archived · Original link
264 GREENACRES ROAD OLDHAM EXISTING AND PROPOSED ELEVATIONS
Plans
Not yet archived · Original link
264 GREENACRES ROAD OLDHAM TOPOGRAPHICAL SURVEY
Other relevant information
Not yet archived · Original link
APPLICATIONFORMREDACTED
Application Form
Not yet archived · Original link
NWCE GREENACRES TRAFFIC PARKING NARRATIVE AND PTMP
Case Documents
Not yet archived · Original link
PLANNING STATEMENT 264 GREENACRES RD
Additional Information
Not yet archived · Original link

Have your say

Your comment matters. Councils must consider every representation that raises material planning considerations.

Write a comment