← Oldham Council

Status

Awaiting decision House extension
Received
Last month
New homes
0

Full proposal

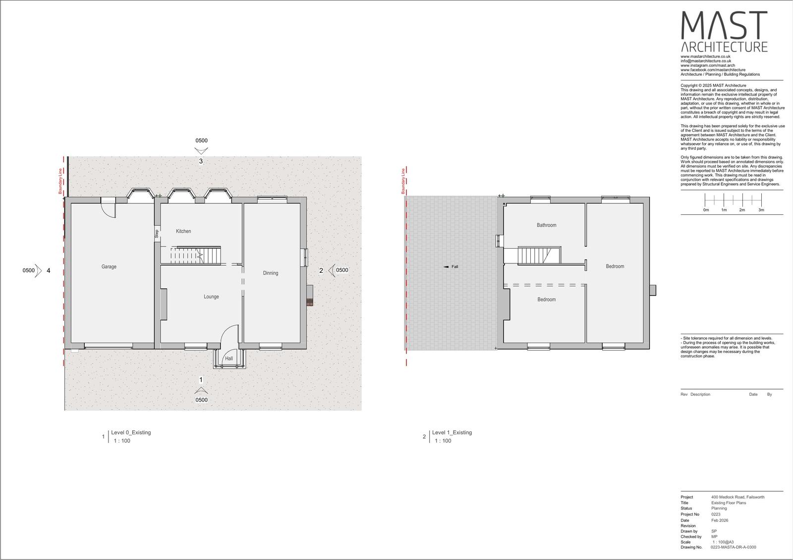
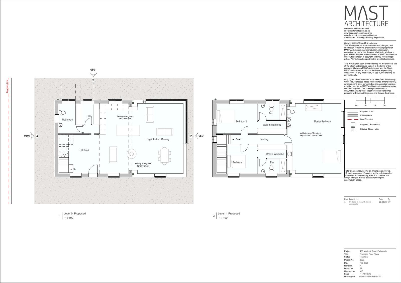
1) Erection of a two storey side extension 2) Demolition of garage

Have your say

Your comment matters. Councils must consider every representation that raises material planning considerations.

Write a comment