← Oldham Council

Status

Awaiting decision House extension
Received
Last month
New homes
0

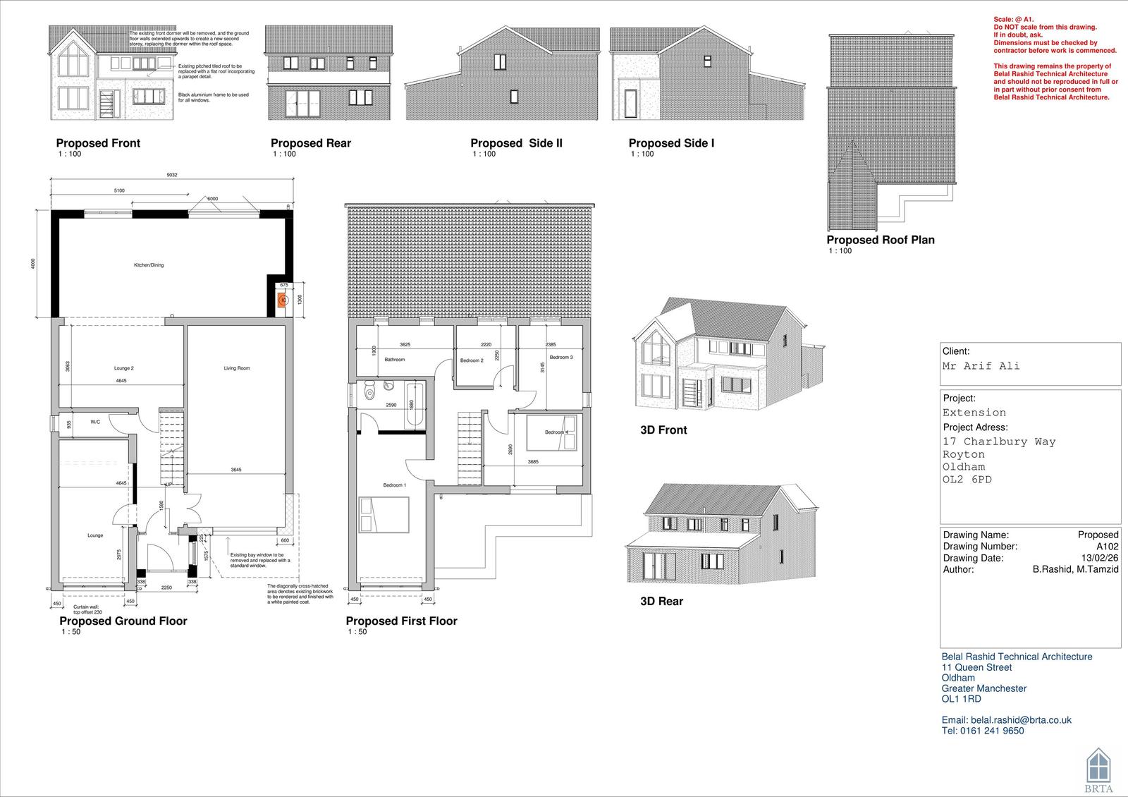
Full proposal

1) Erection of first floor front extension 2) Removal of existing bay window and erection of a porch 3) Single storey rear extension 4) Render to front elevation

Have your say

Your comment matters. Councils must consider every representation that raises material planning considerations.

Write a comment