← Oldham Council

Status

Awaiting decision House extension
Received
Last month
New homes
0

Full proposal

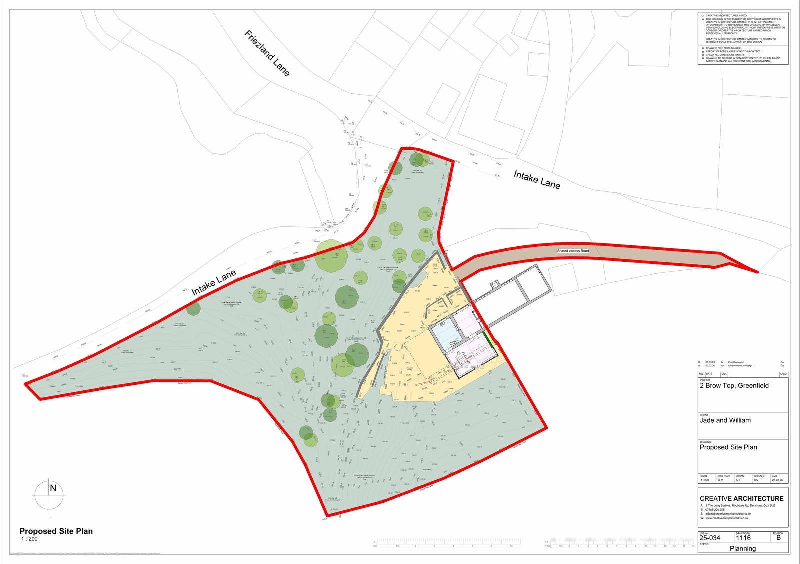
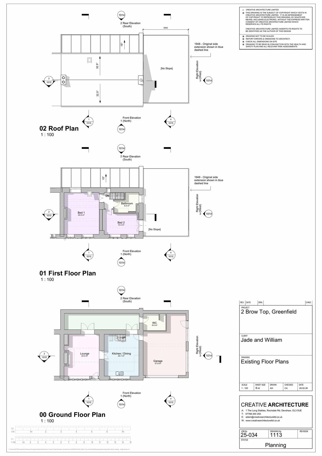
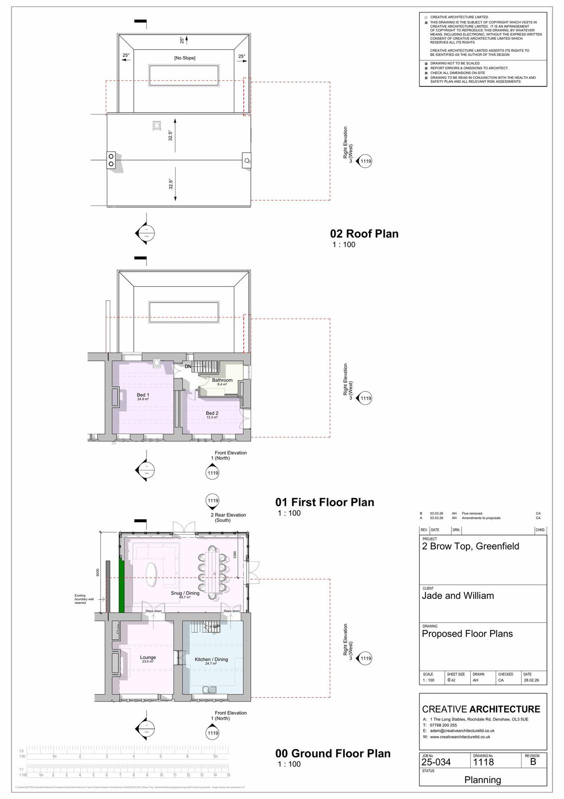
1) Demolition of existing side/rear garage and rear extension 2) Erection of single storey rear extension. Length - 6m. Maximum Height - 3m. Height to Eaves - 2.30m

Have your say

Your comment matters. Councils must consider every representation that raises material planning considerations.

Write a comment