26/00160/FUL
Oxford City Council
Status
Registered
House extension
Received
22 Jan 2026
New homes
0
Full proposal
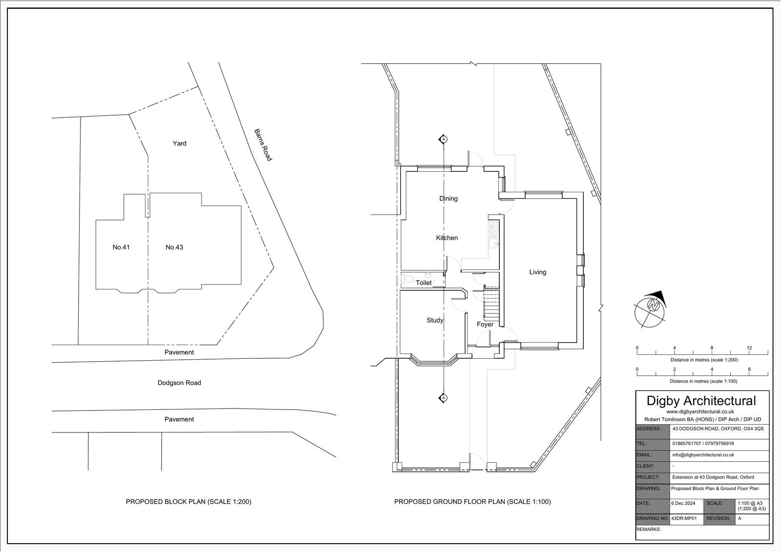
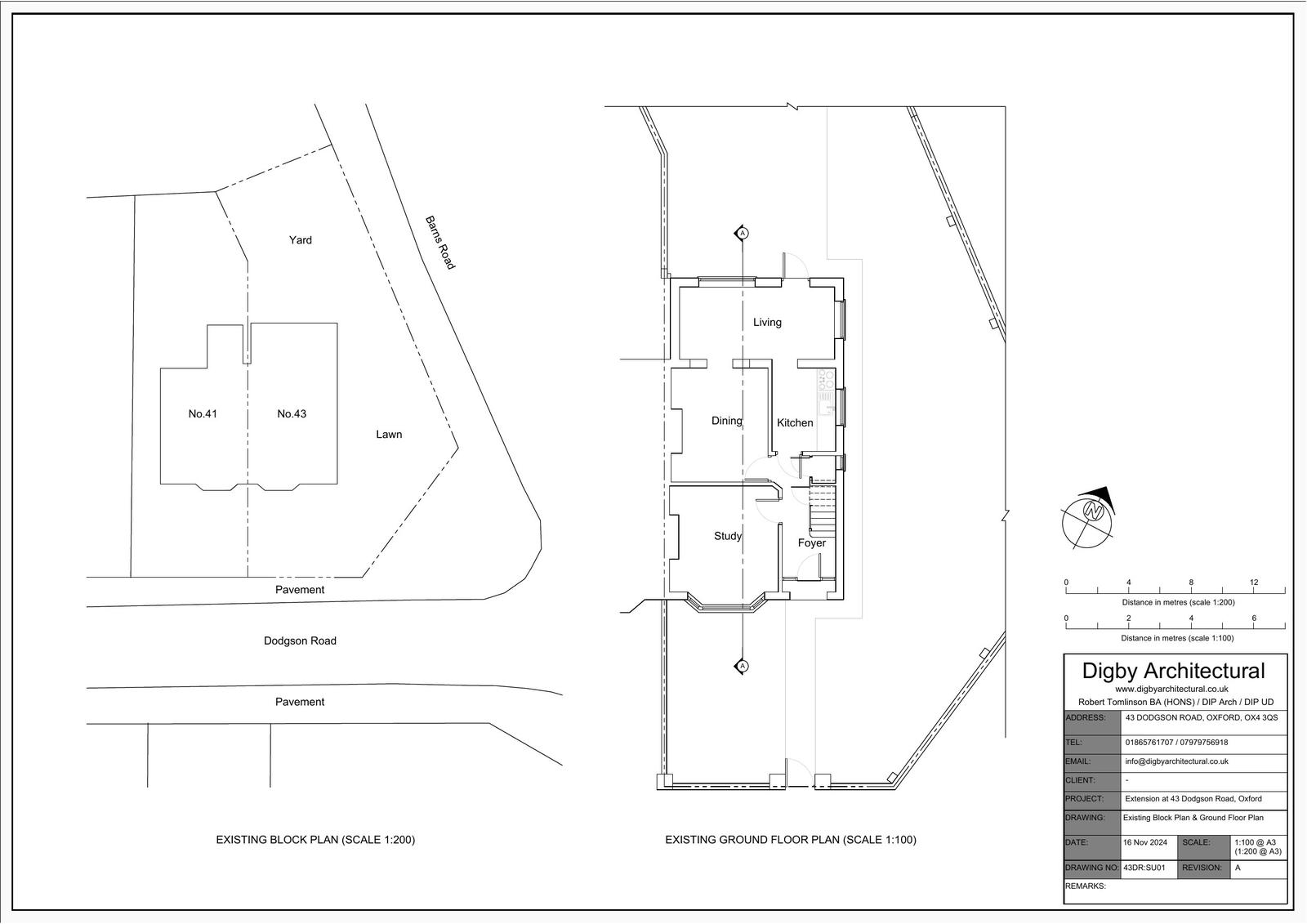
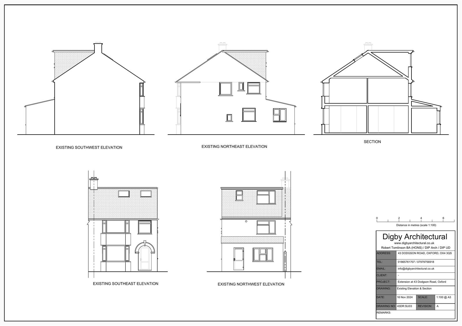
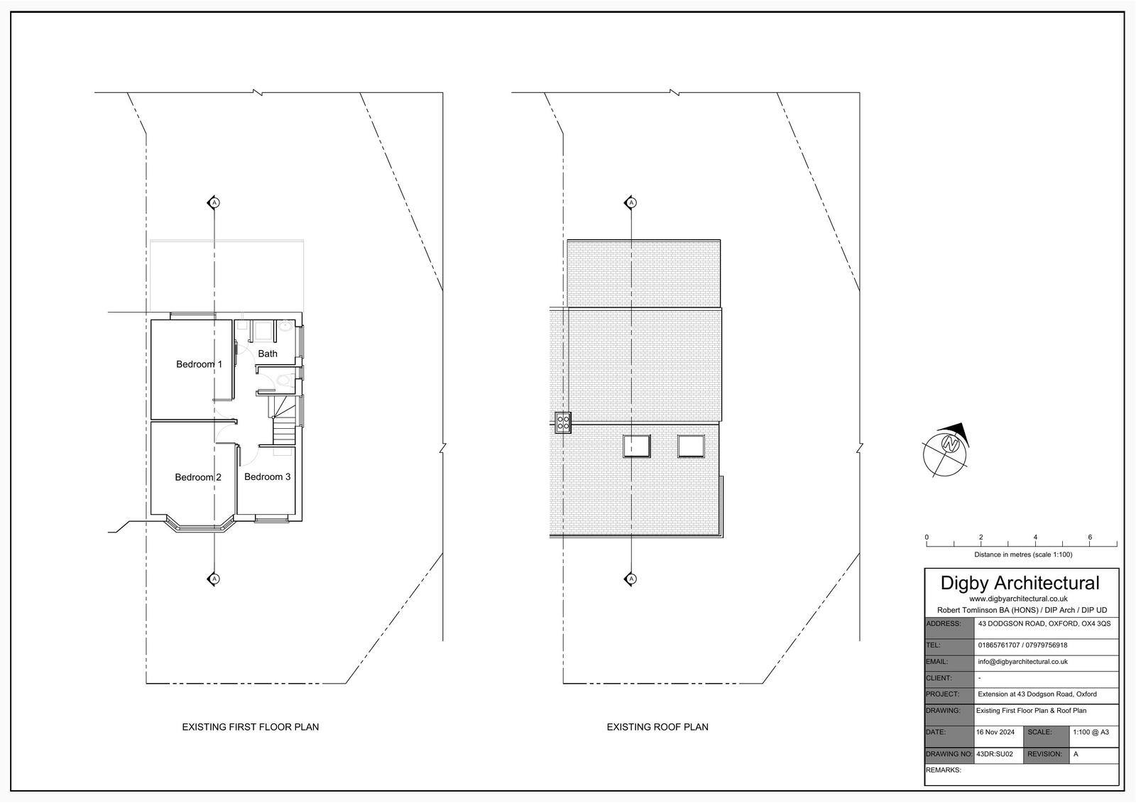
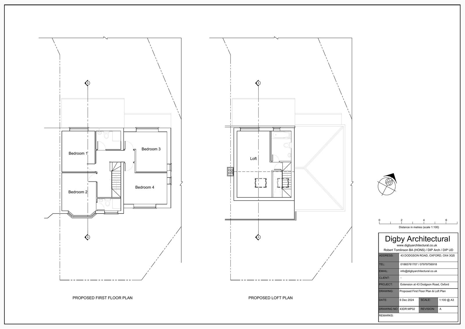
Erection of a part single, part two storey side extension.
Documents
Have your say
Your comment matters. Councils must consider every representation that raises material planning considerations.