26/00162/FUL
Oxford City Council
Status
Registered
Demolition
Received
22 Jan 2026
New homes
0
Full proposal
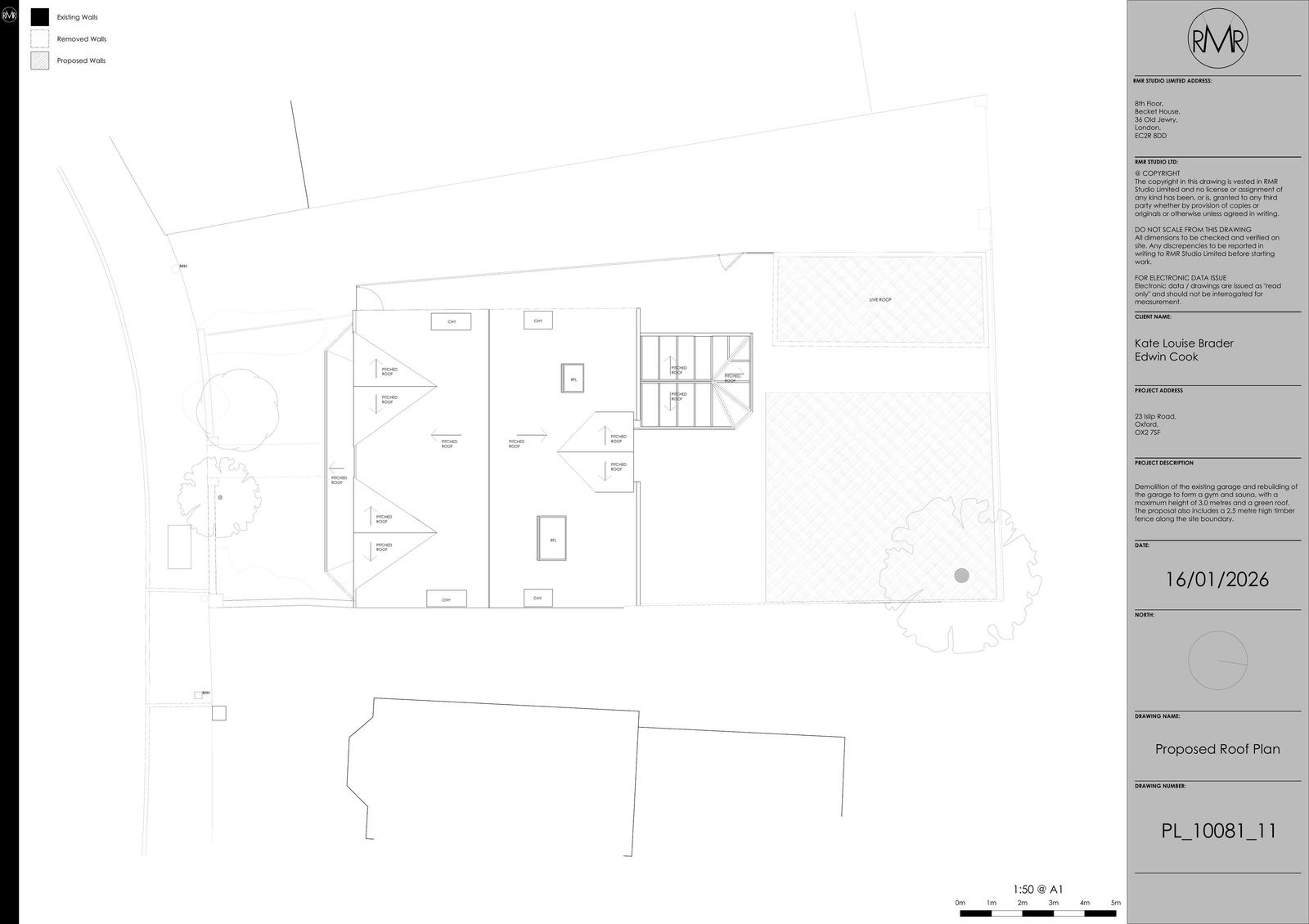
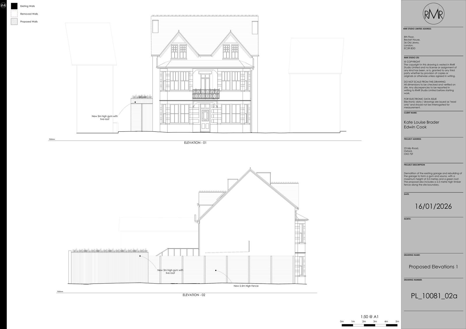
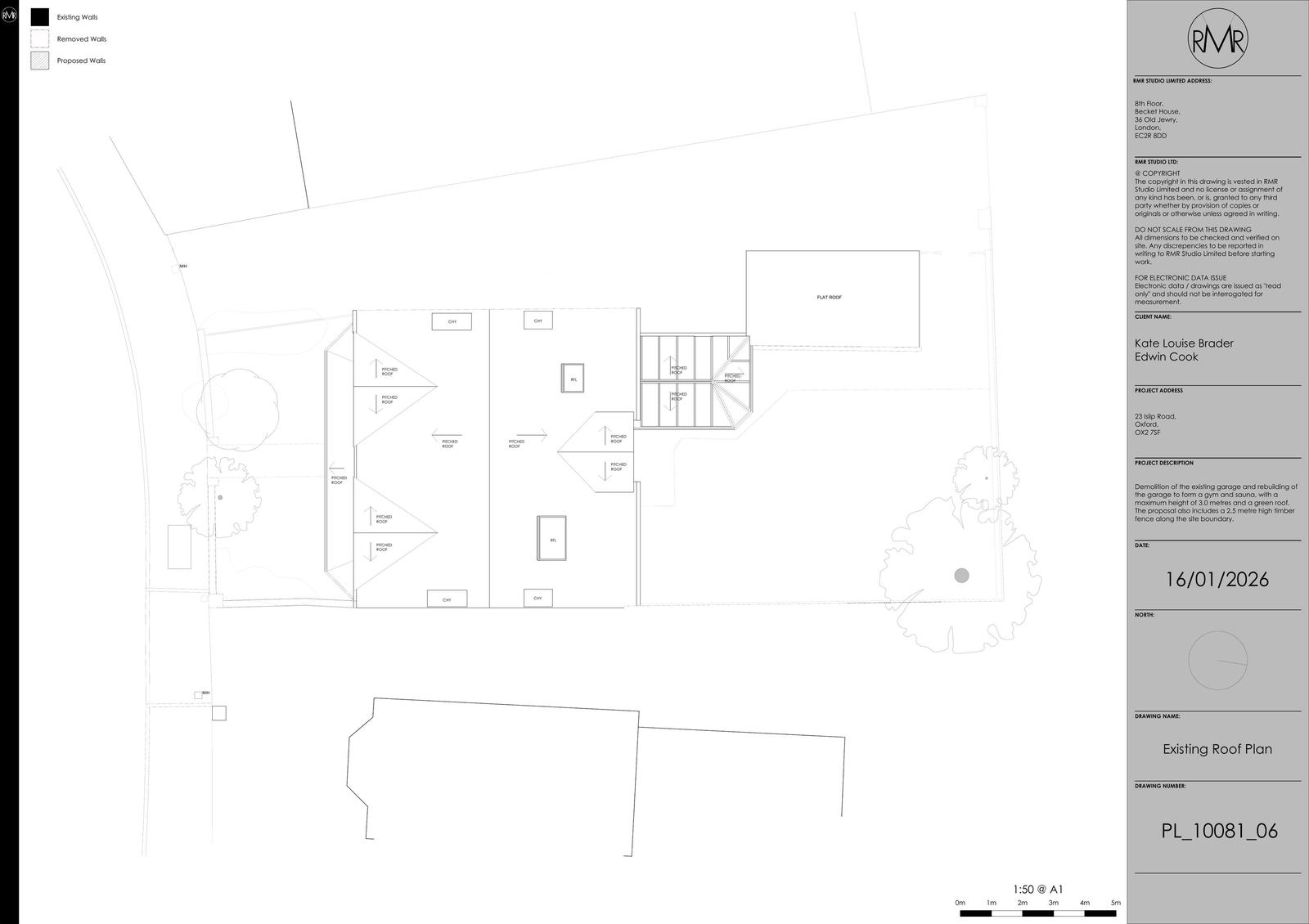
Demolition of existing detached garage, erection of an outbuiding to be used a gym/sauna and formation of a new fence on boundary line.
Documents
Have your say
Your comment matters. Councils must consider every representation that raises material planning considerations.