← Oxford City Council

Status

Registered House extension
Received
29 Jan 2026
New homes
0

Full proposal

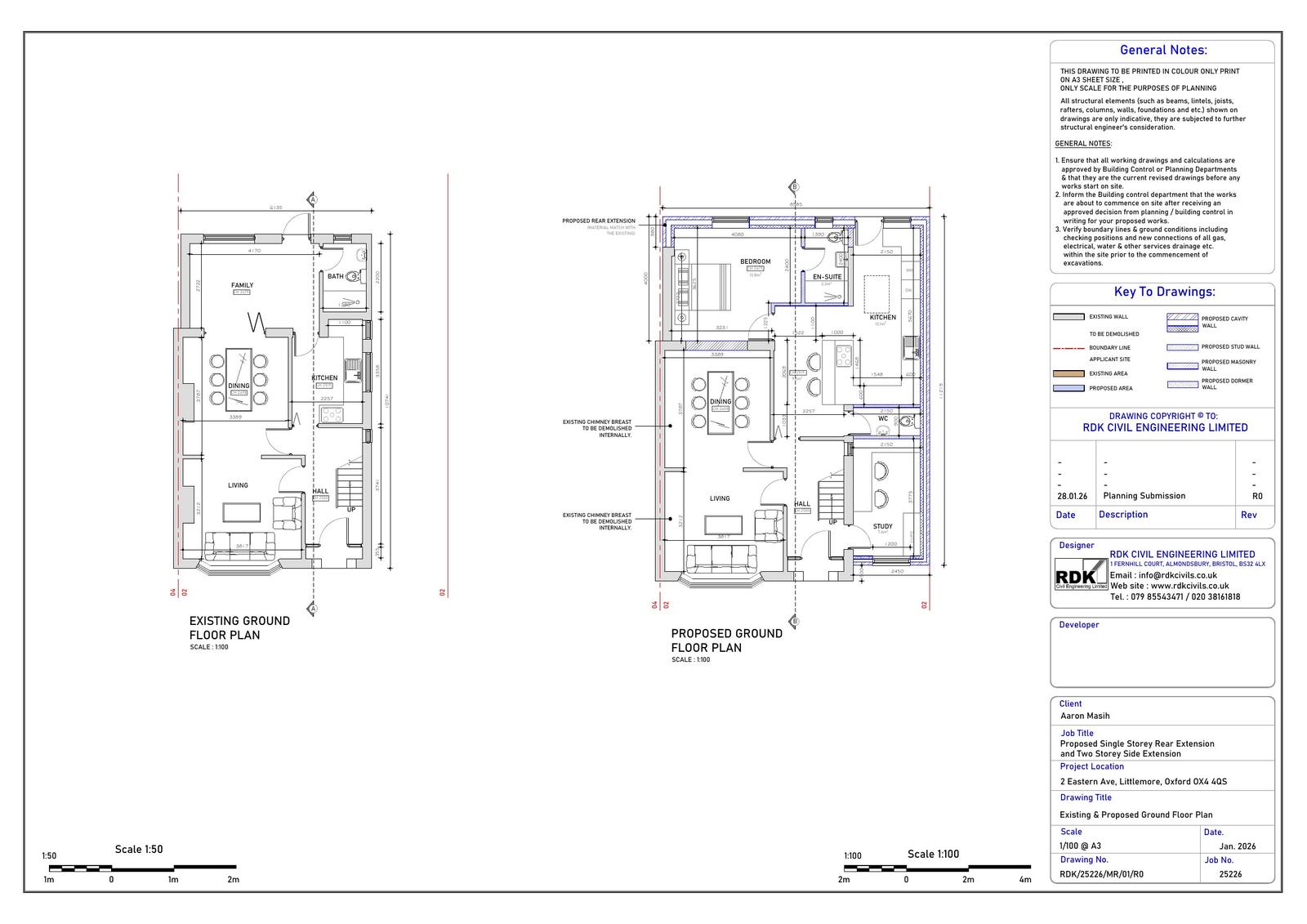
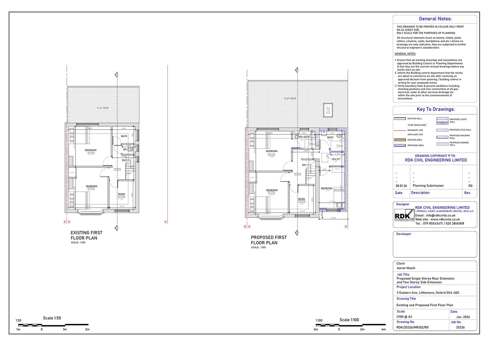
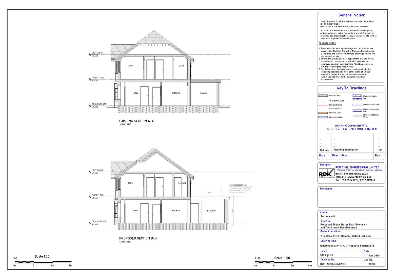
Demolition of existing rear extension, erection of a two storey side and a single storey rear extension.

Have your say

Your comment matters. Councils must consider every representation that raises material planning considerations.

Write a comment