26/00524/FUL
Oxford City Council
Status
Registered
House extension
Received
Last month
New homes
0
Full proposal
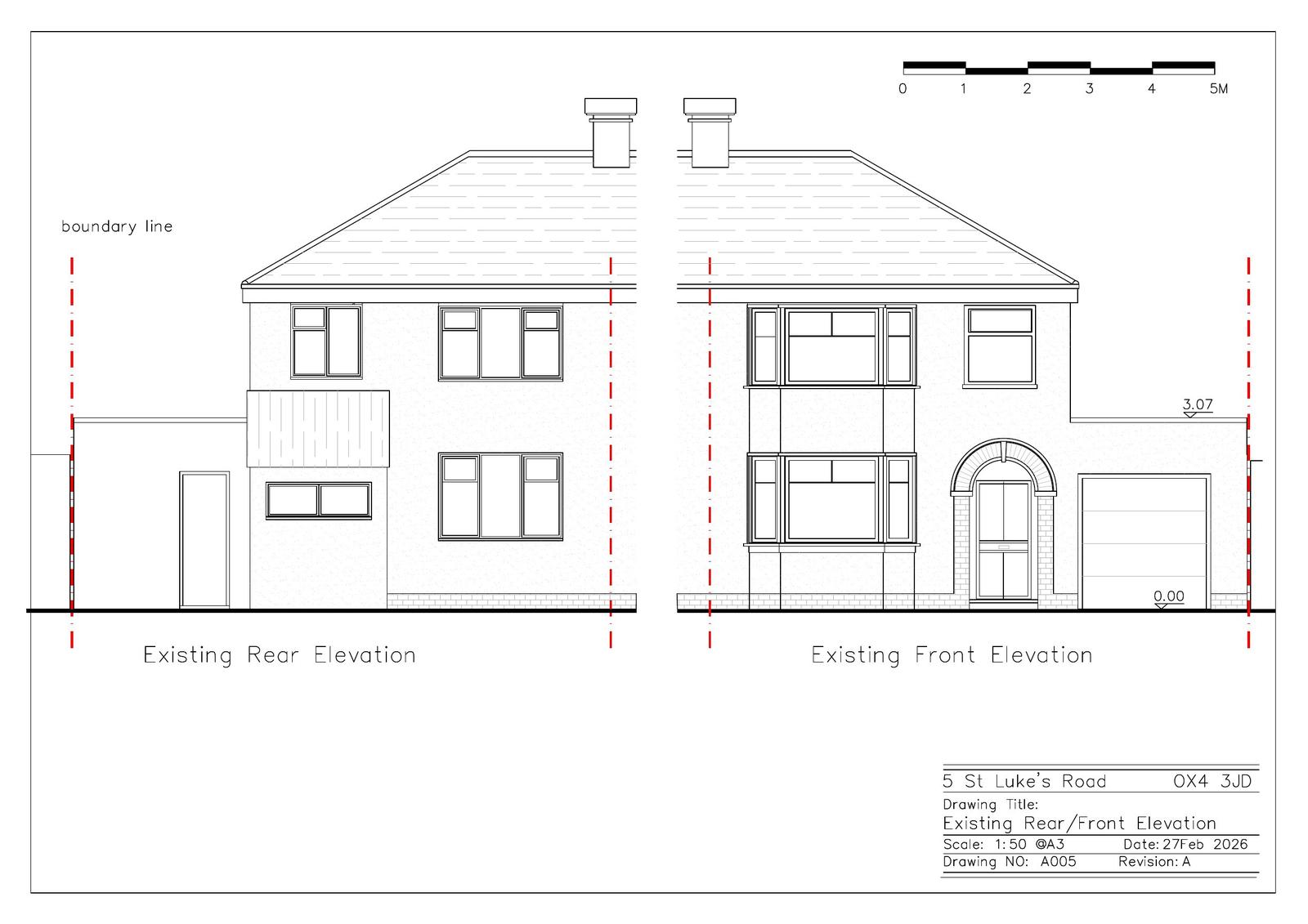
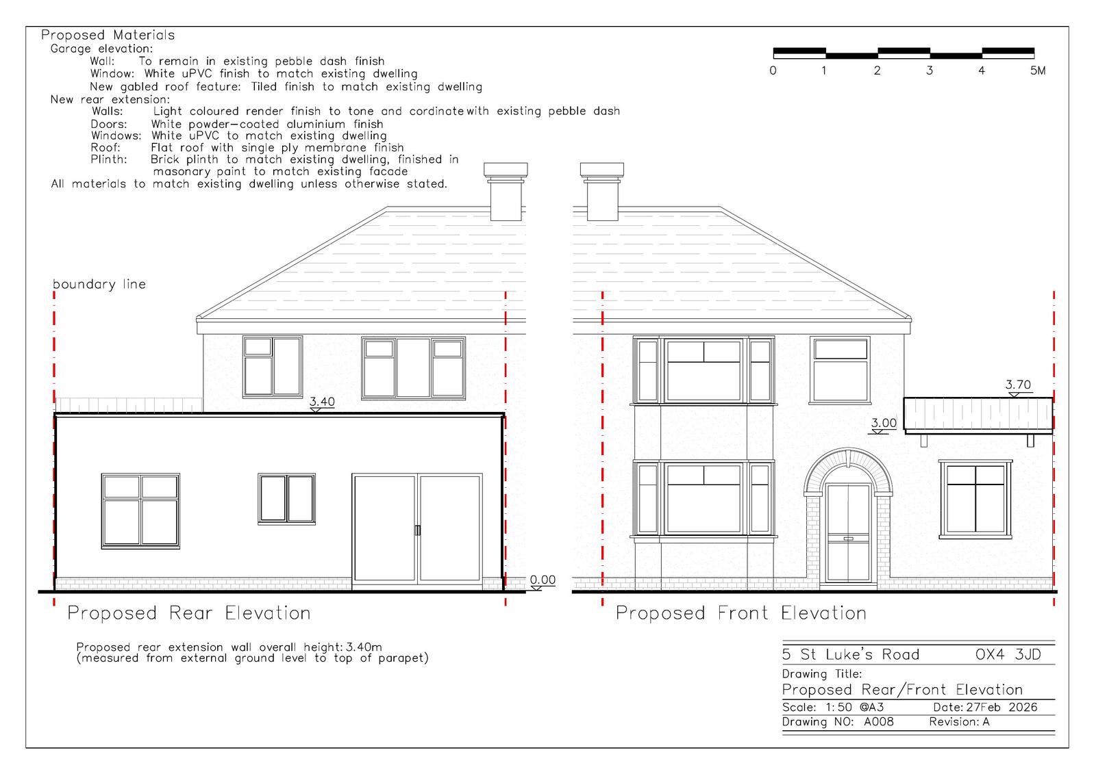
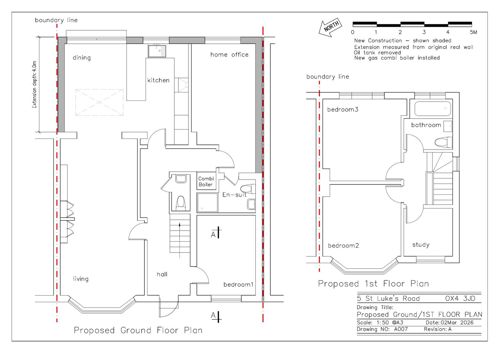
Erection of a single storey rear extension. Conversion of garage into a habitable space including replacement of garage door with 1no. window to front elevation and formation of pitched roof above.
Documents
Have your say
Your comment matters. Councils must consider every representation that raises material planning considerations.