← Oxford City Council

Status

Registered House extension
Received
Last month
New homes
0

Full proposal

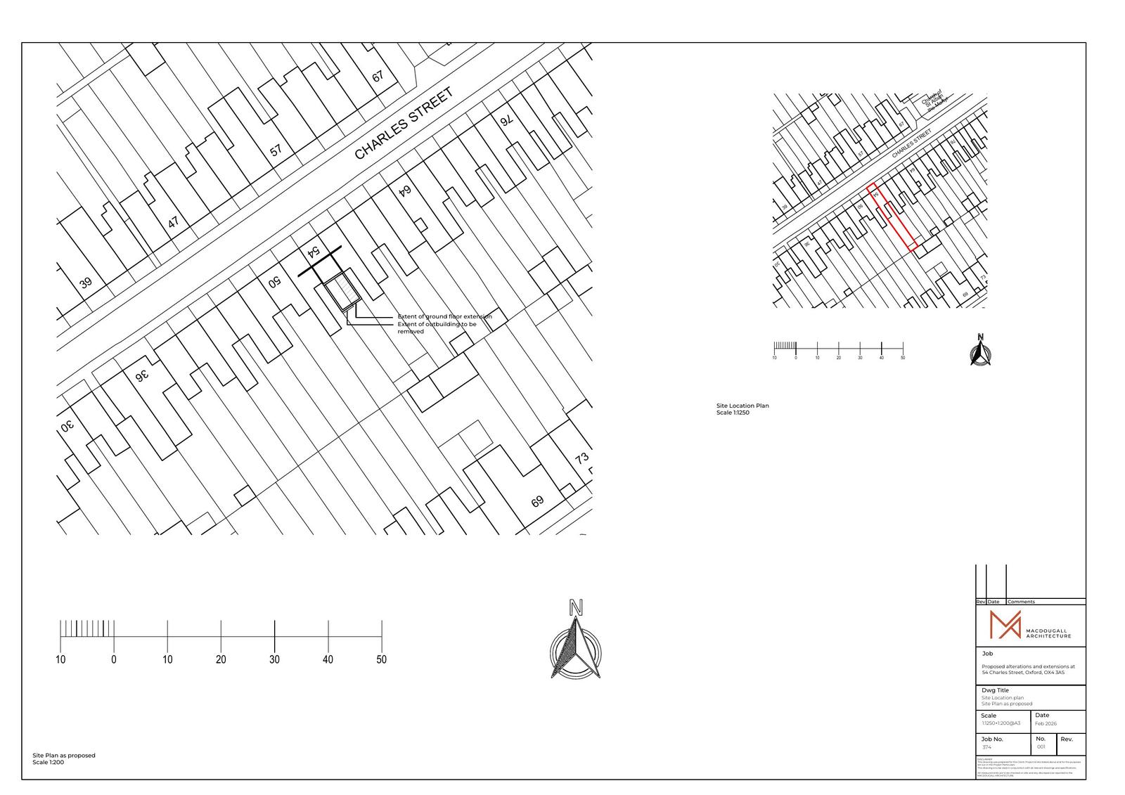
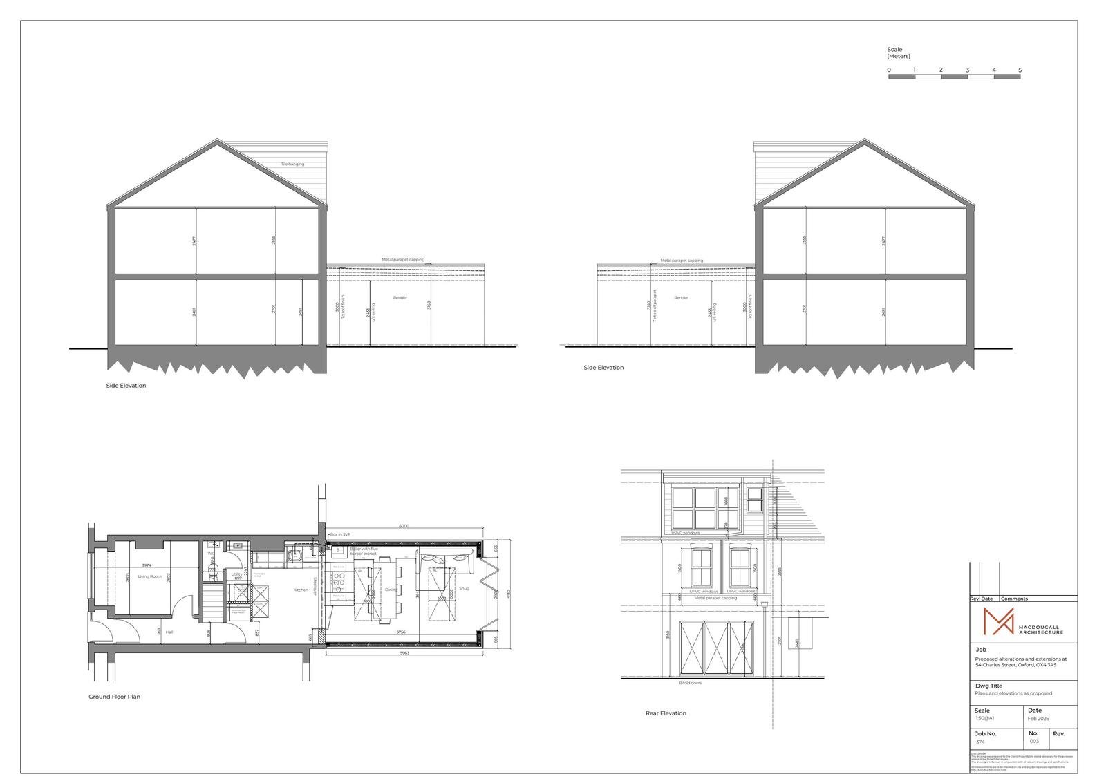
Application for prior approval for the erection of a single storey rear extension, which would extend beyond the rear wall of the original house by 6m, for which the maximum height would be 3m, and for which the height of the eaves would be 3m.

Have your say

Your comment matters. Councils must consider every representation that raises material planning considerations.

Write a comment