26/00563/FUL
Oxford City Council
Status
Registered
Change of use
Received
Last month
New homes
0
Full proposal
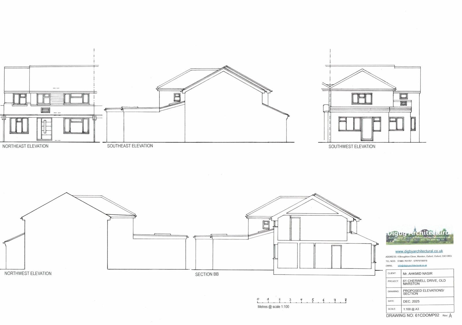
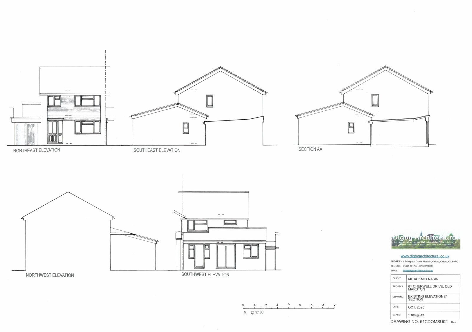
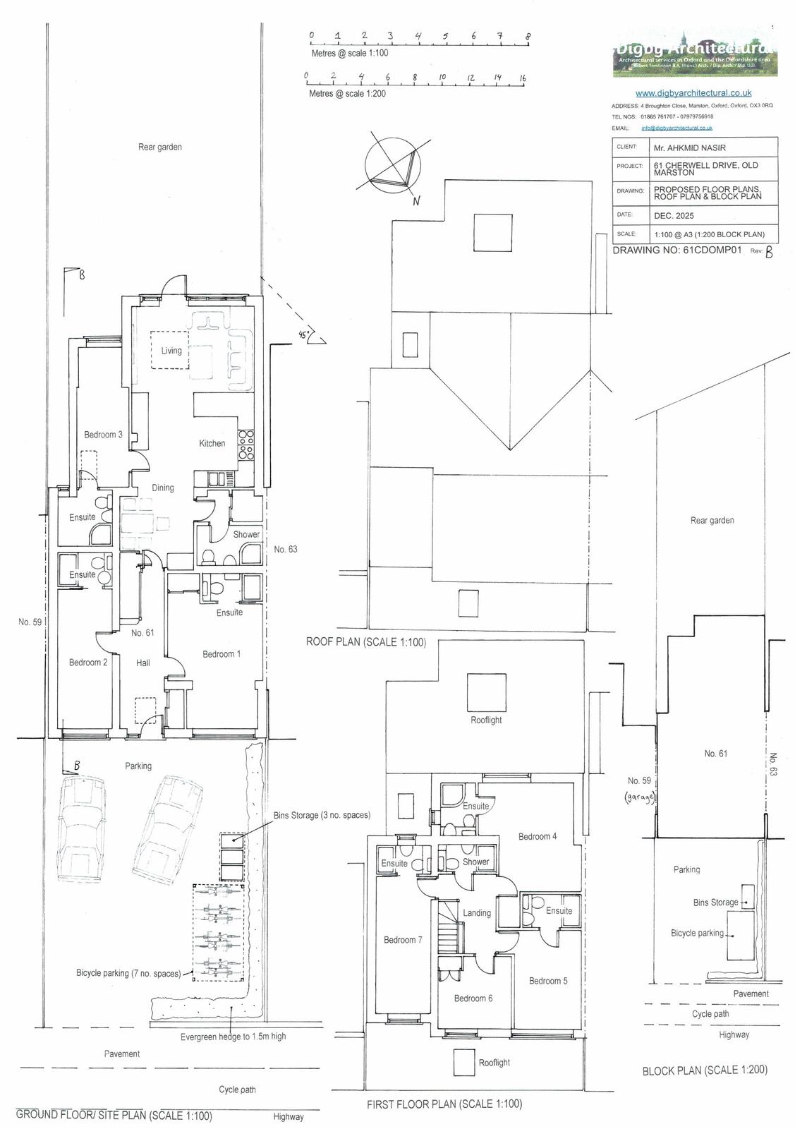
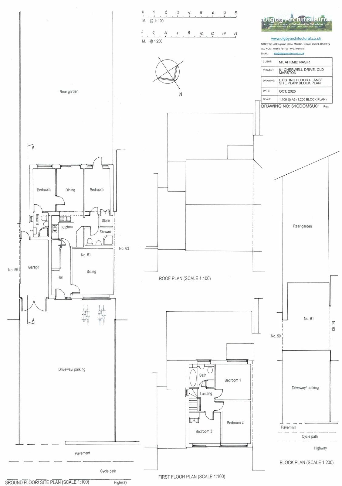
Change of use from House in Multiple Occupation (Use Class C4) to a large House in Multiple Occupation (Sui Generis). Demolition of existing garage, Erection of a two storey side extension, single storey front extension and a part single storey part first floor rear extension. Provision of bin and cycle storage.
Documents
Have your say
Your comment matters. Councils must consider every representation that raises material planning considerations.