26/00569/FUL
Oxford City Council
Status
Registered
House extension
Received
Last month
New homes
0
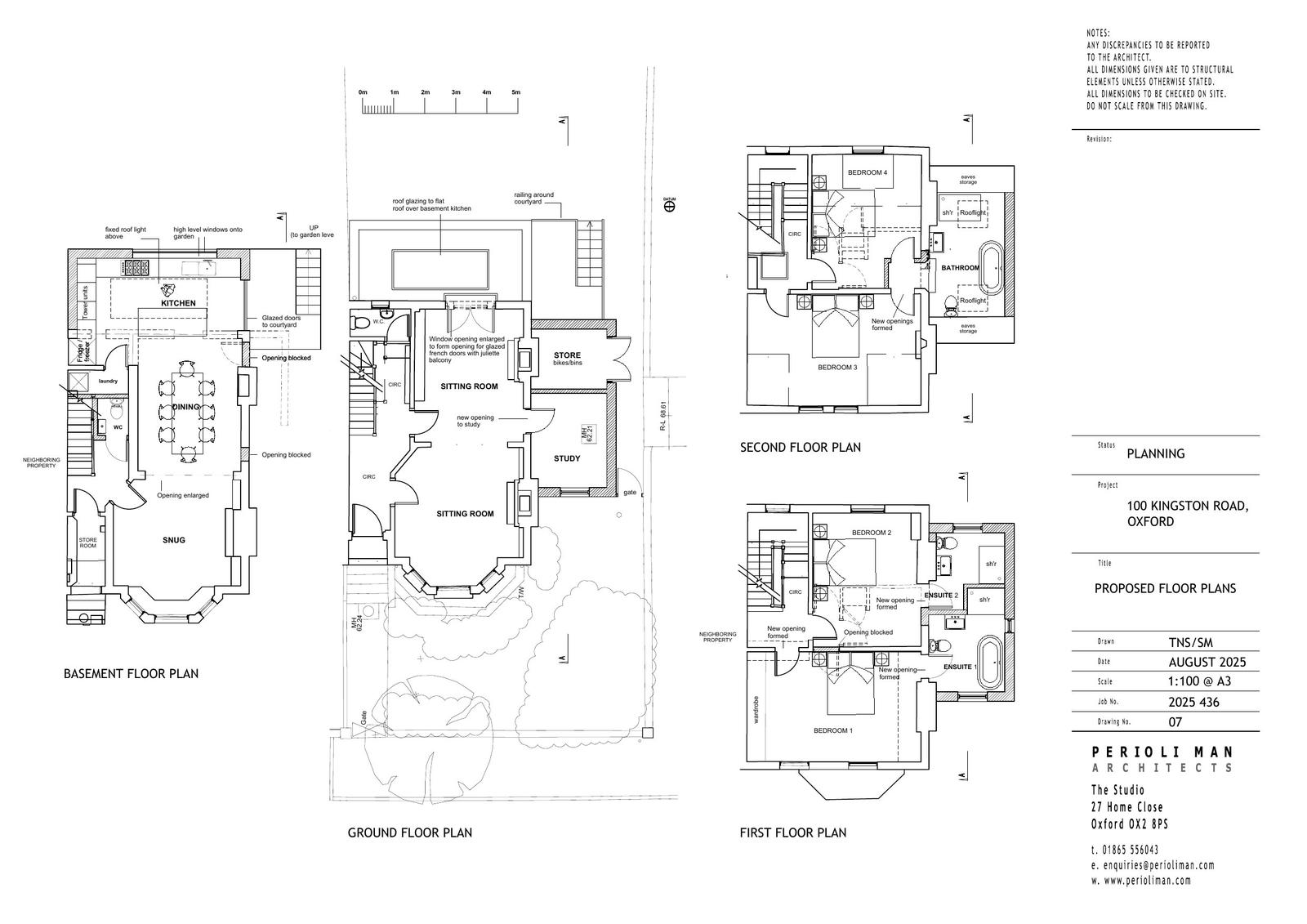
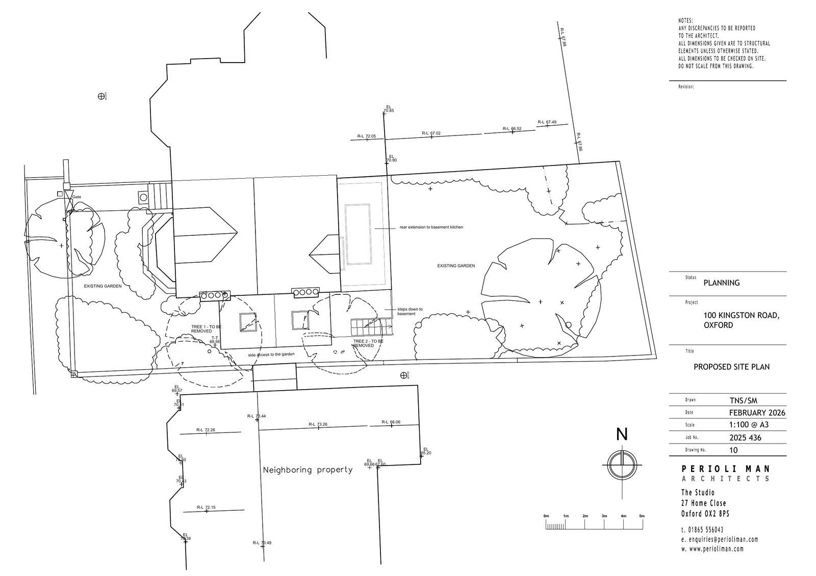
Full proposal
Erection of a two and a half storey side and a single storey rear extension to the basement level. Alterations to fenestration, formation of railing around basement courtyard.
Documents
Have your say
Your comment matters. Councils must consider every representation that raises material planning considerations.