← Oxford City Council

Status

Registered House extension
Received
Last month
New homes
0

Full proposal

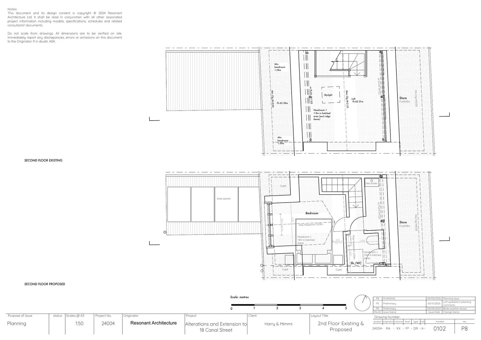
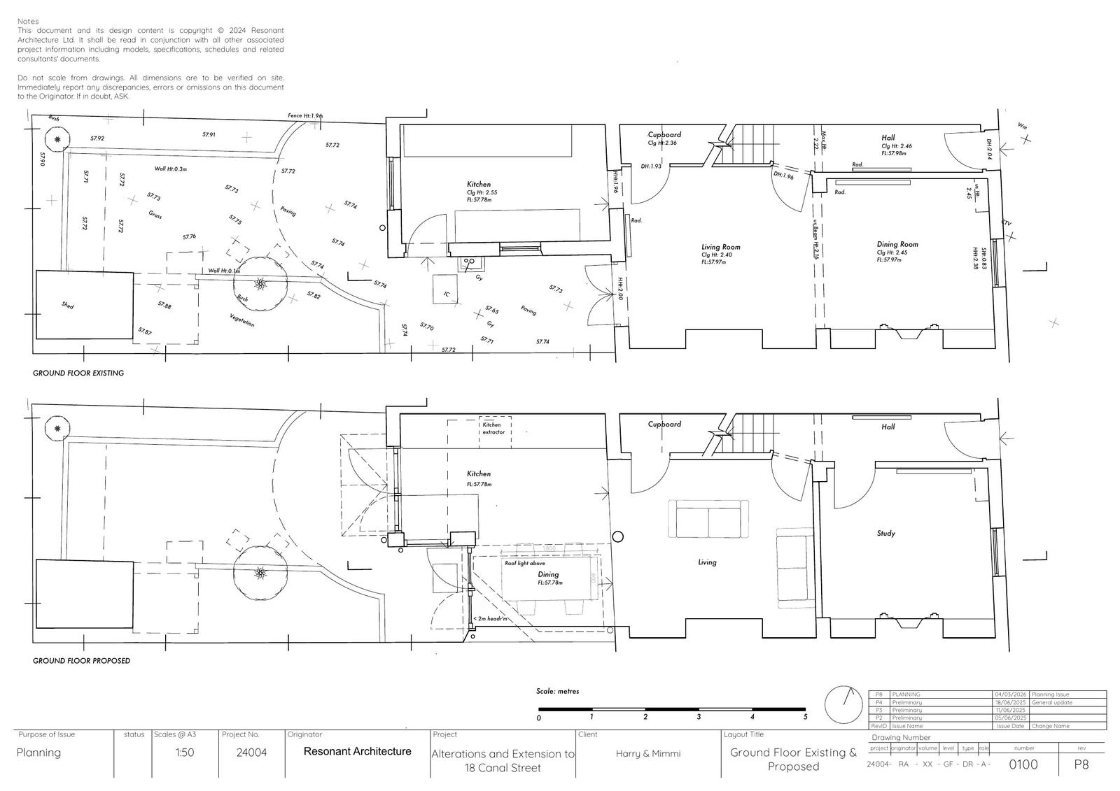
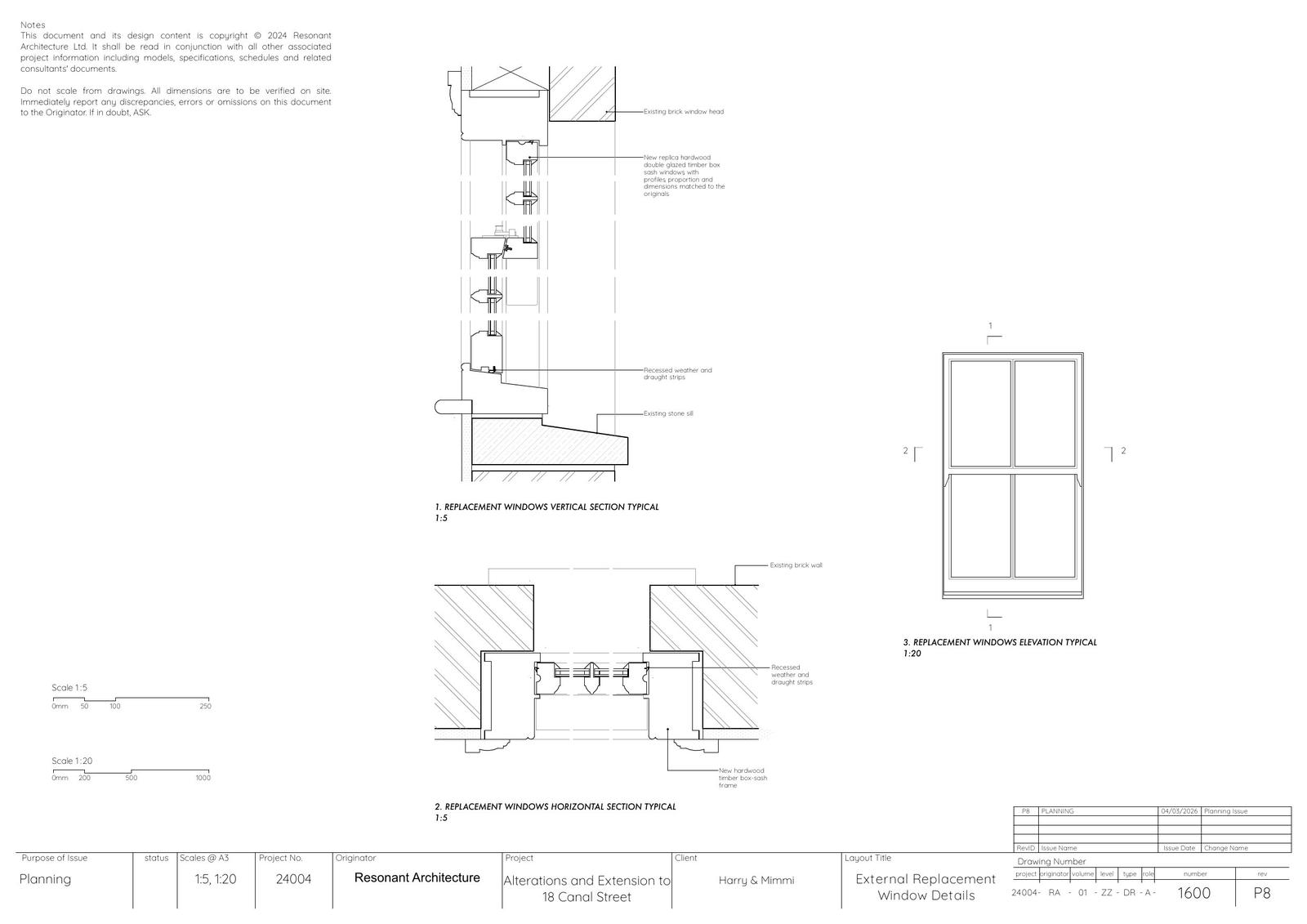
Erection of a single storey rear extension. Removal of 1no. rear window and installation of 1no. door with canopy. Formation of 1no. rear dormer. Installation of boiler flue and solar panels to roof. Alterations to fenestration.

Have your say

Your comment matters. Councils must consider every representation that raises material planning considerations.

Write a comment