← Pembrokeshire Coast National Park Authority
NP/25/0192/FUL
Pembrokeshire Coast National Park Authority
Status
Determined
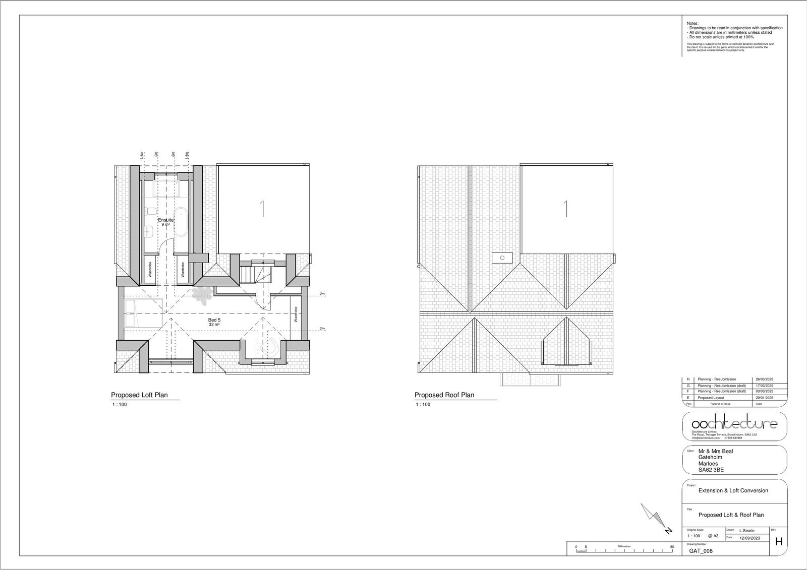
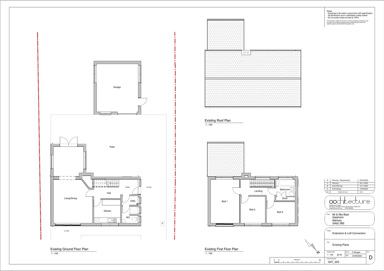
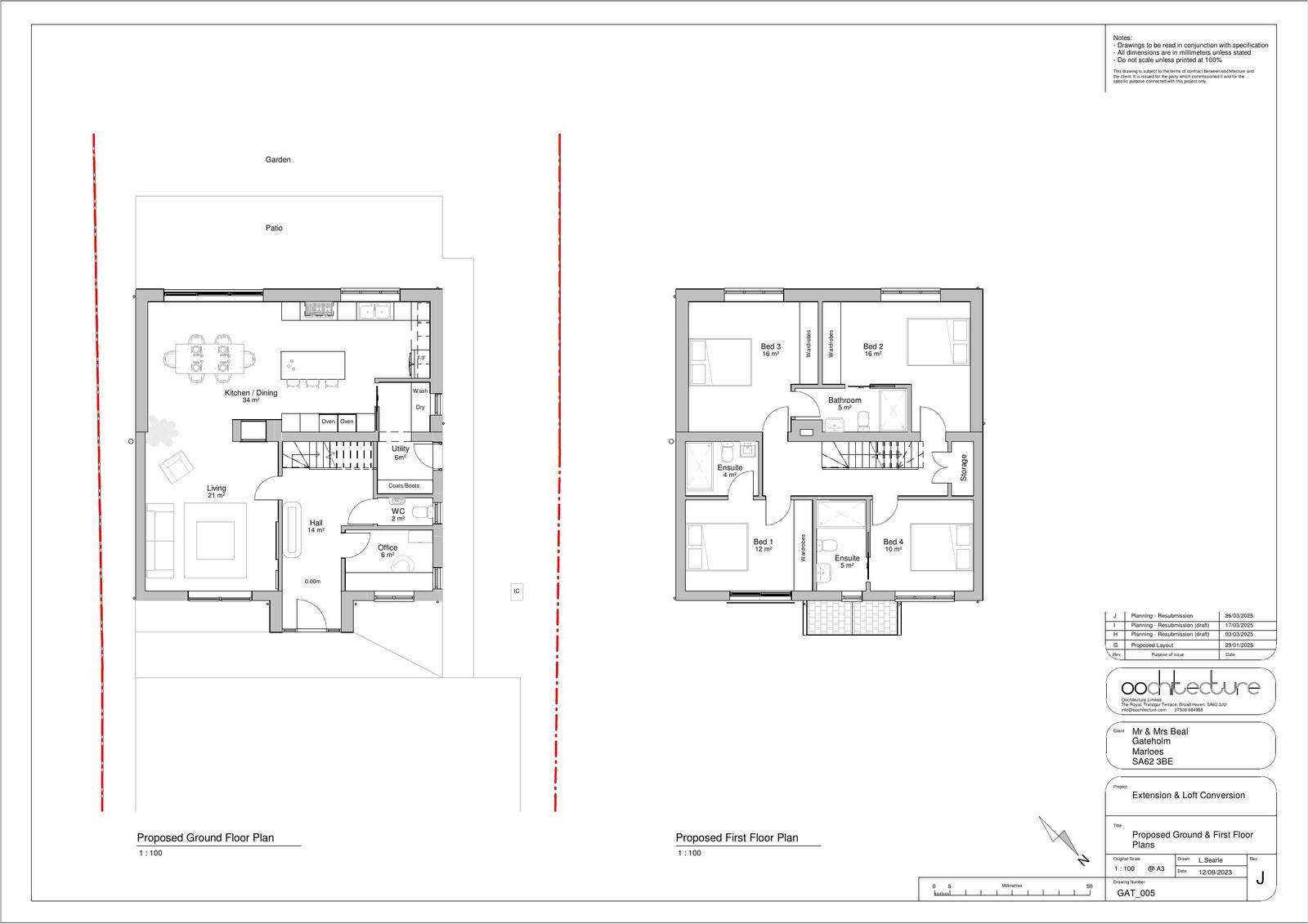
House extension
Received
26 Mar 2025
New homes
0
Full proposal
Two storey extension to rear and attic conversion to include raising of ridge height, new porch to front elevation. Demolition of the existing garage and new timber shed to front garden, being resubmission of application ref NP/23/0647/FUL
Documents
Have your say
Your comment matters. Councils must consider every representation that raises material planning considerations.