← Pembrokeshire Coast National Park Authority

Status

Determined House extension
Received
07 Apr 2025
New homes
0

Full proposal

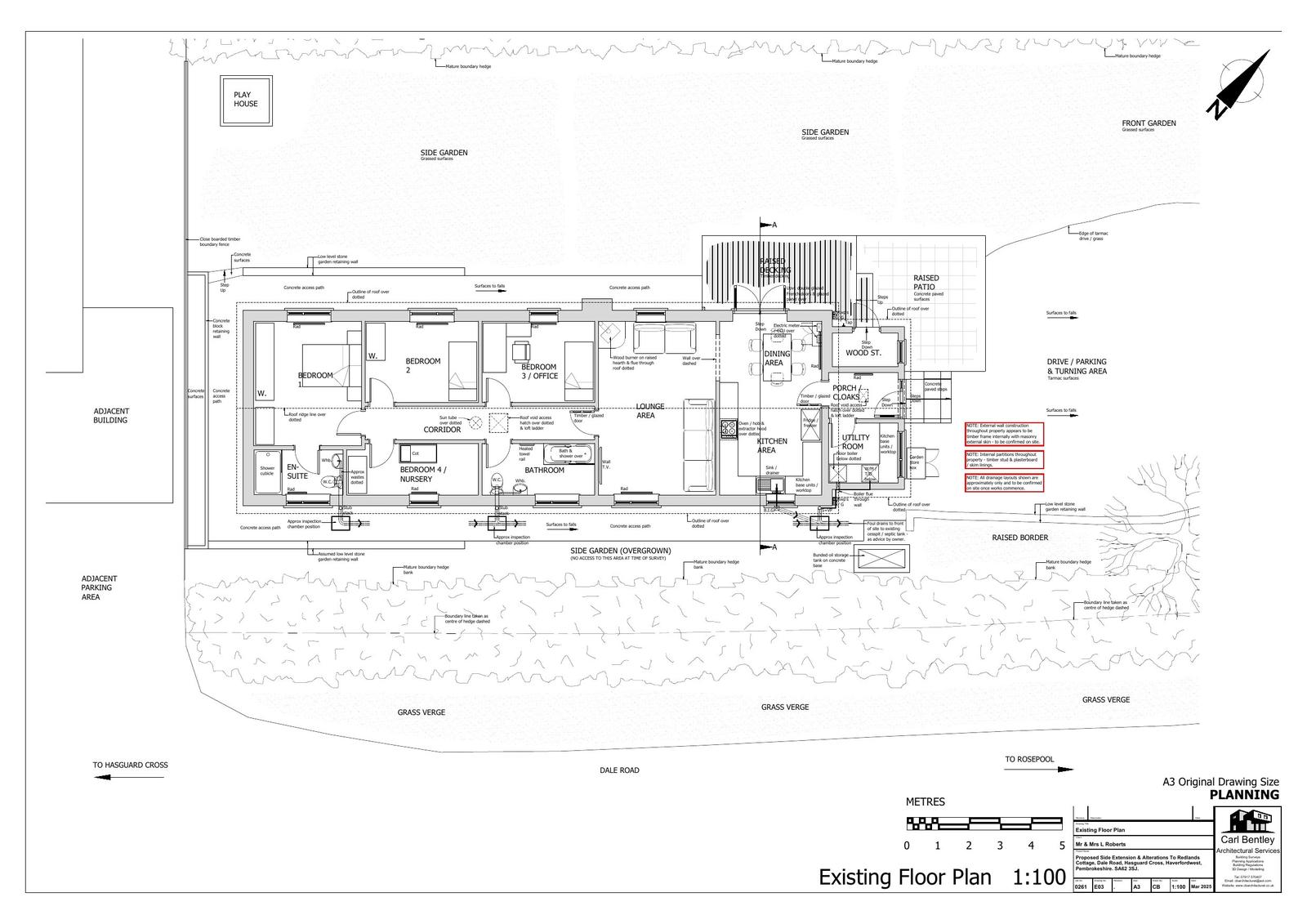
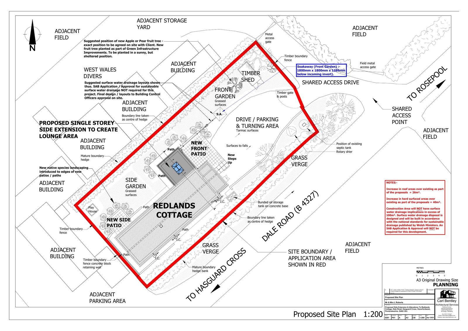
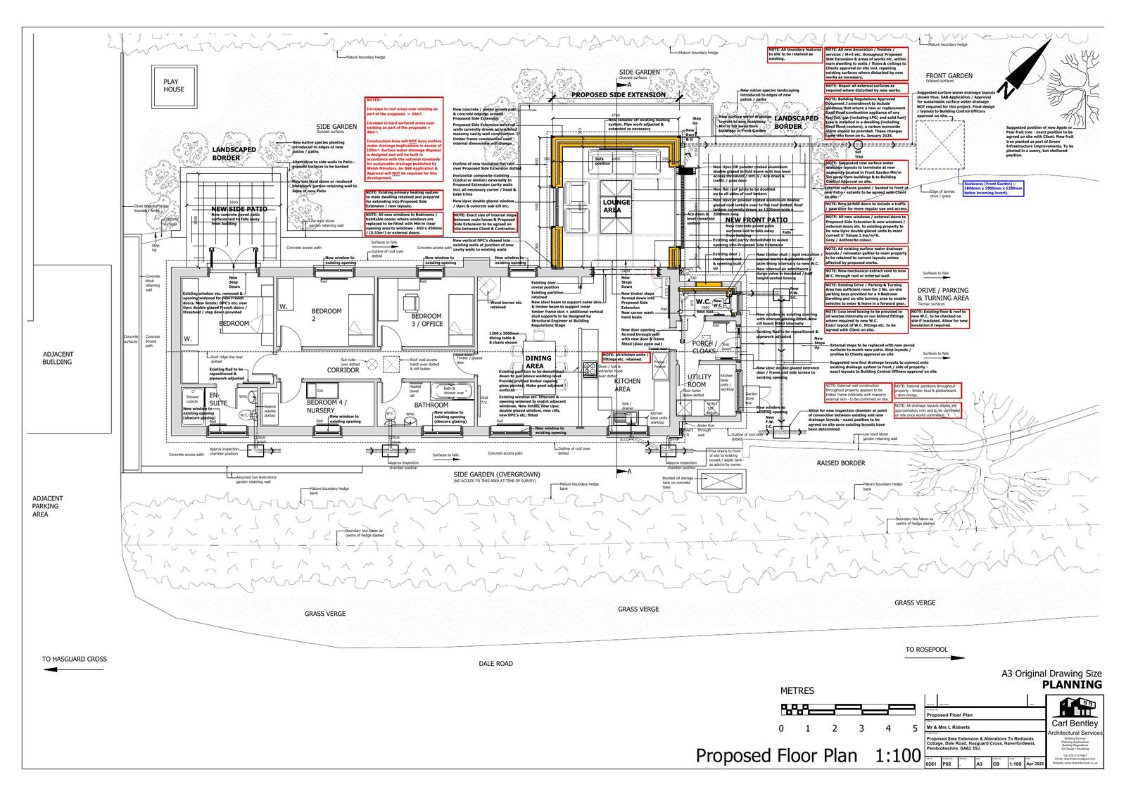
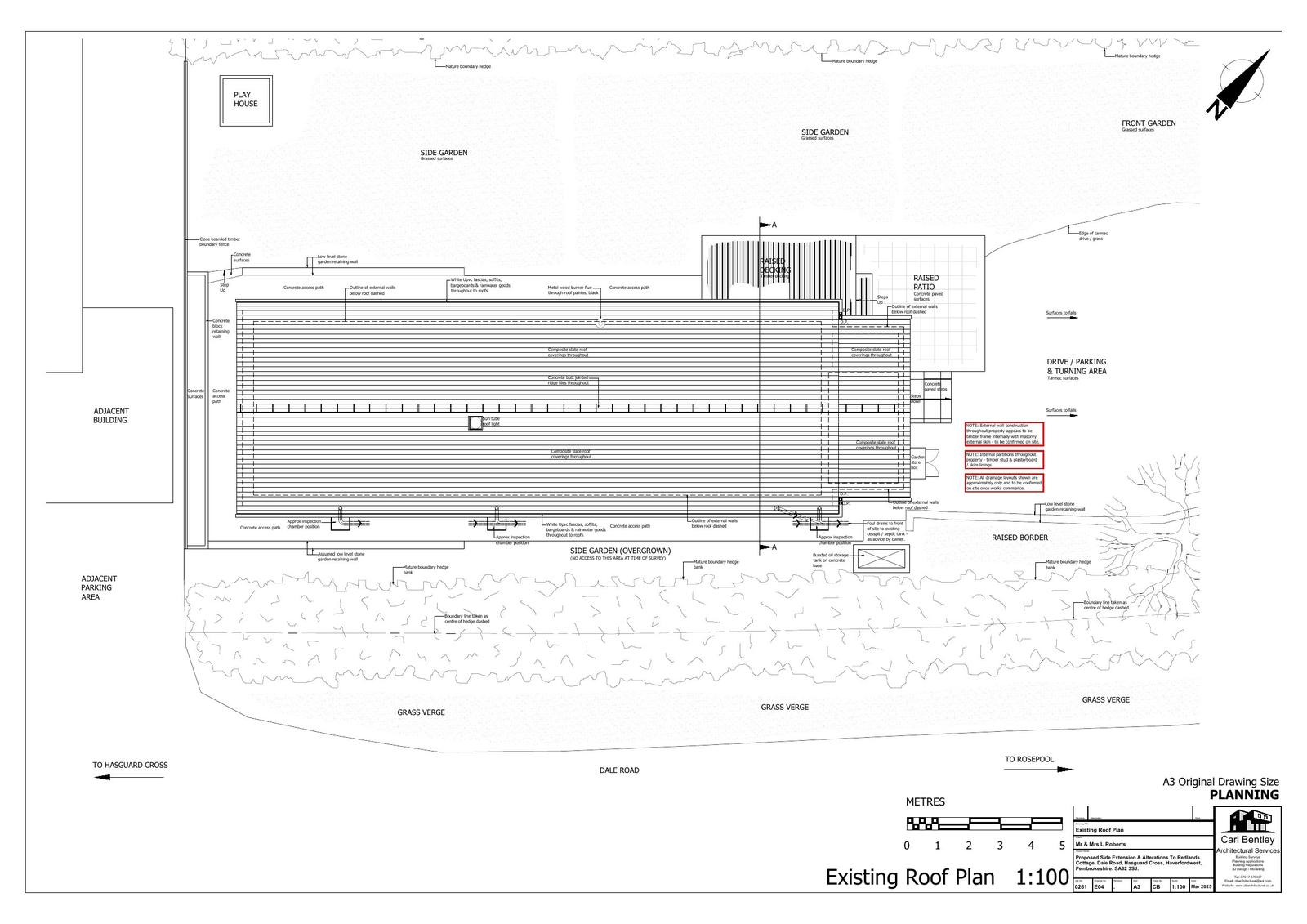
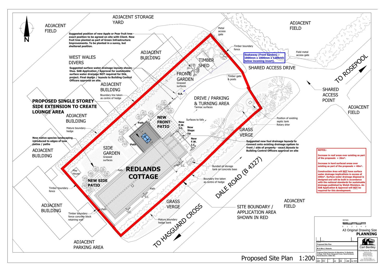
Proposed side extension & alterations to dwelling

Documents

Application forms
Archived · Original link
Decision notice
Archived · Original link
Location Plan
Archived · Original link
Submitted Drawings
Archived · Original link
Submitted Drawings
Archived · Original link
Submitted Drawings
Archived · Original link
Submitted Drawings
Archived · Original link
Officer Reports
Archived · Original link
Superceded Document
Archived · Original link
Superceded Document
Archived · Original link
Superceded Document
Archived · Original link
Superceded Document
Archived · Original link
Submitted documents
Archived · Original link
Submitted documents
Archived · Original link
Submitted documents
Archived · Original link

Have your say

Your comment matters. Councils must consider every representation that raises material planning considerations.

Write a comment