← Pembrokeshire Coast National Park Authority
NP/25/0258/FUL
Pembrokeshire Coast National Park Authority
Status
Valid - with Officers
Change of use
Received
01 May 2025
New homes
0
Full proposal
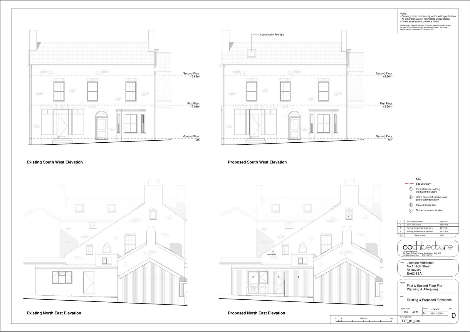
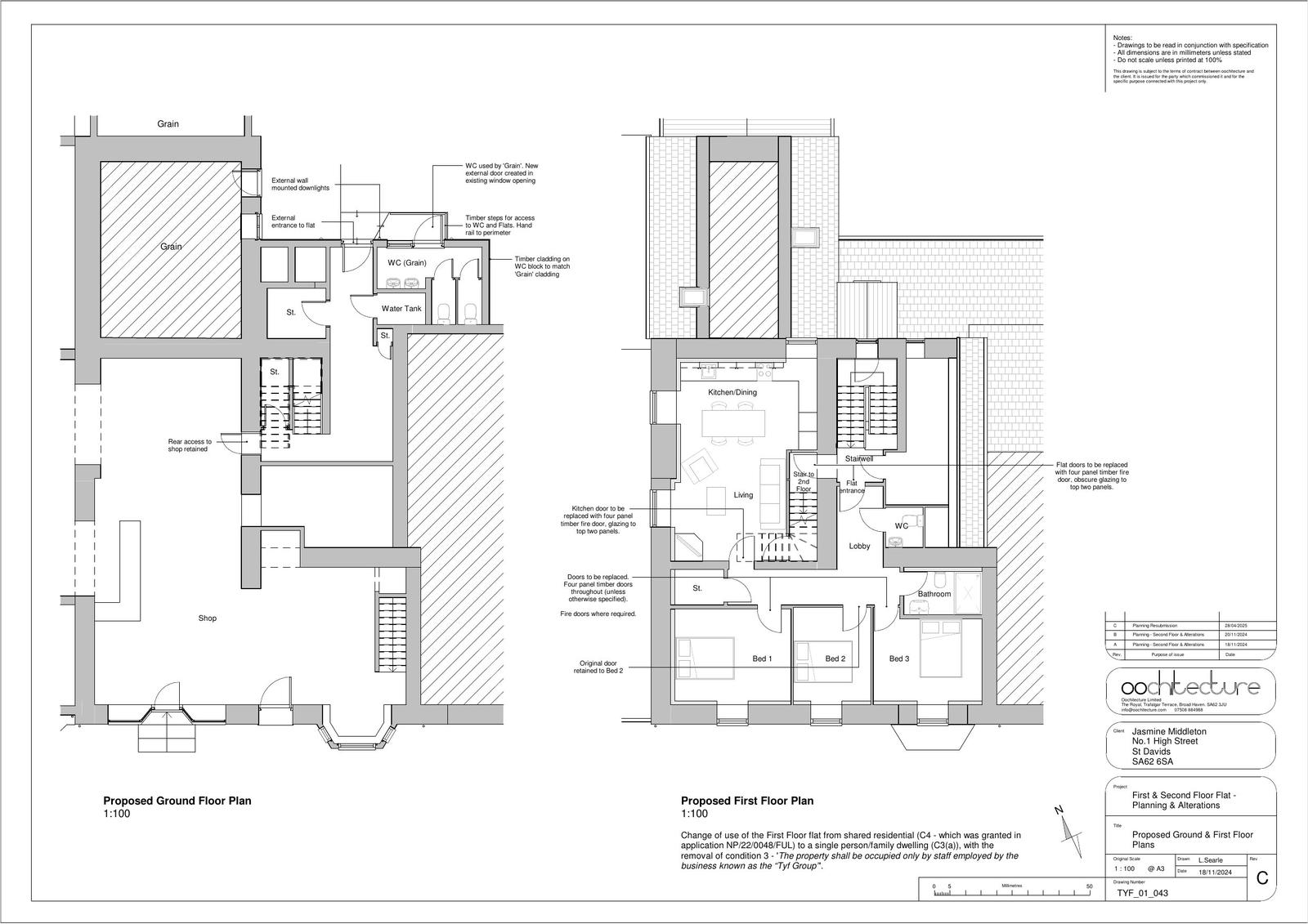
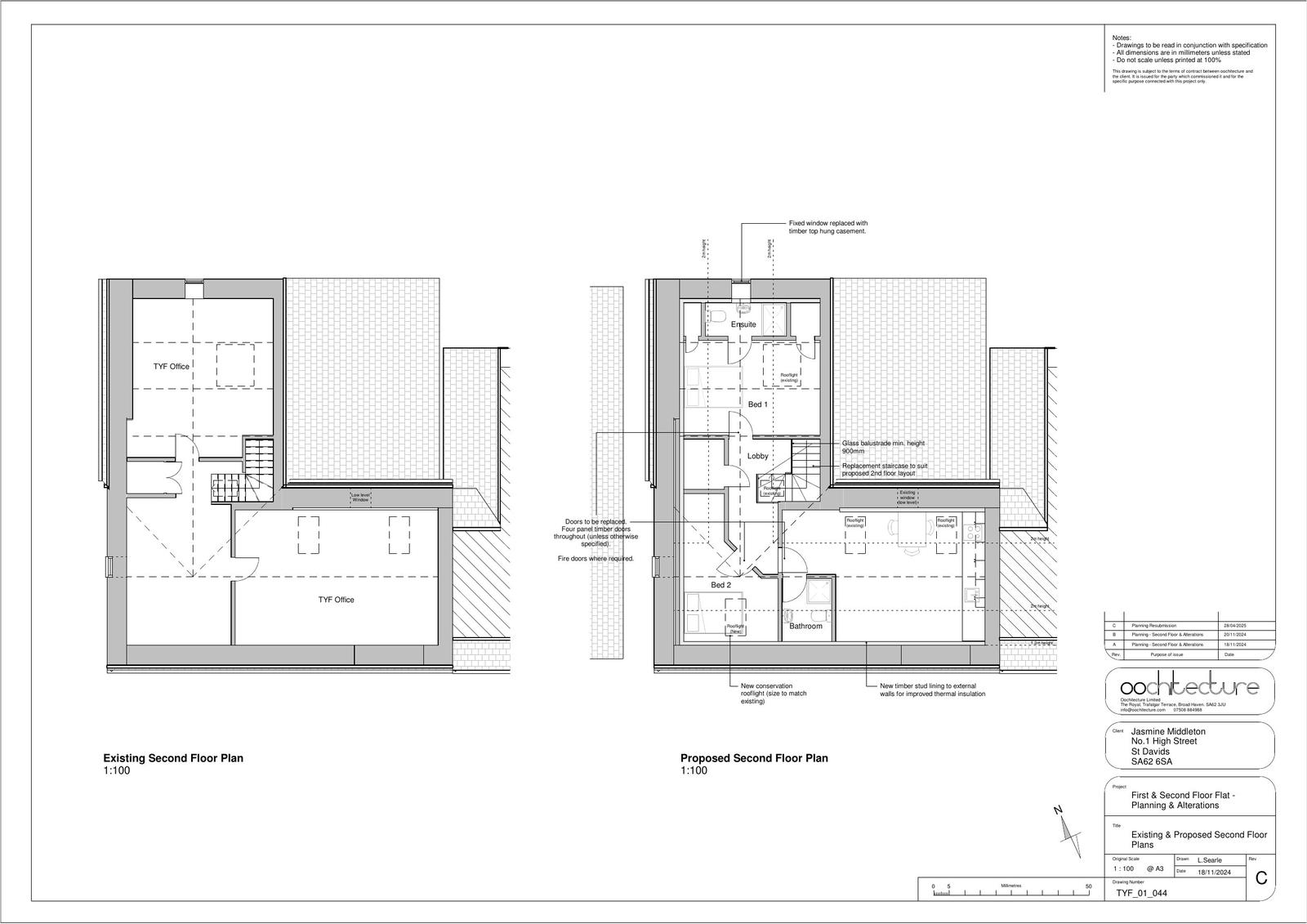
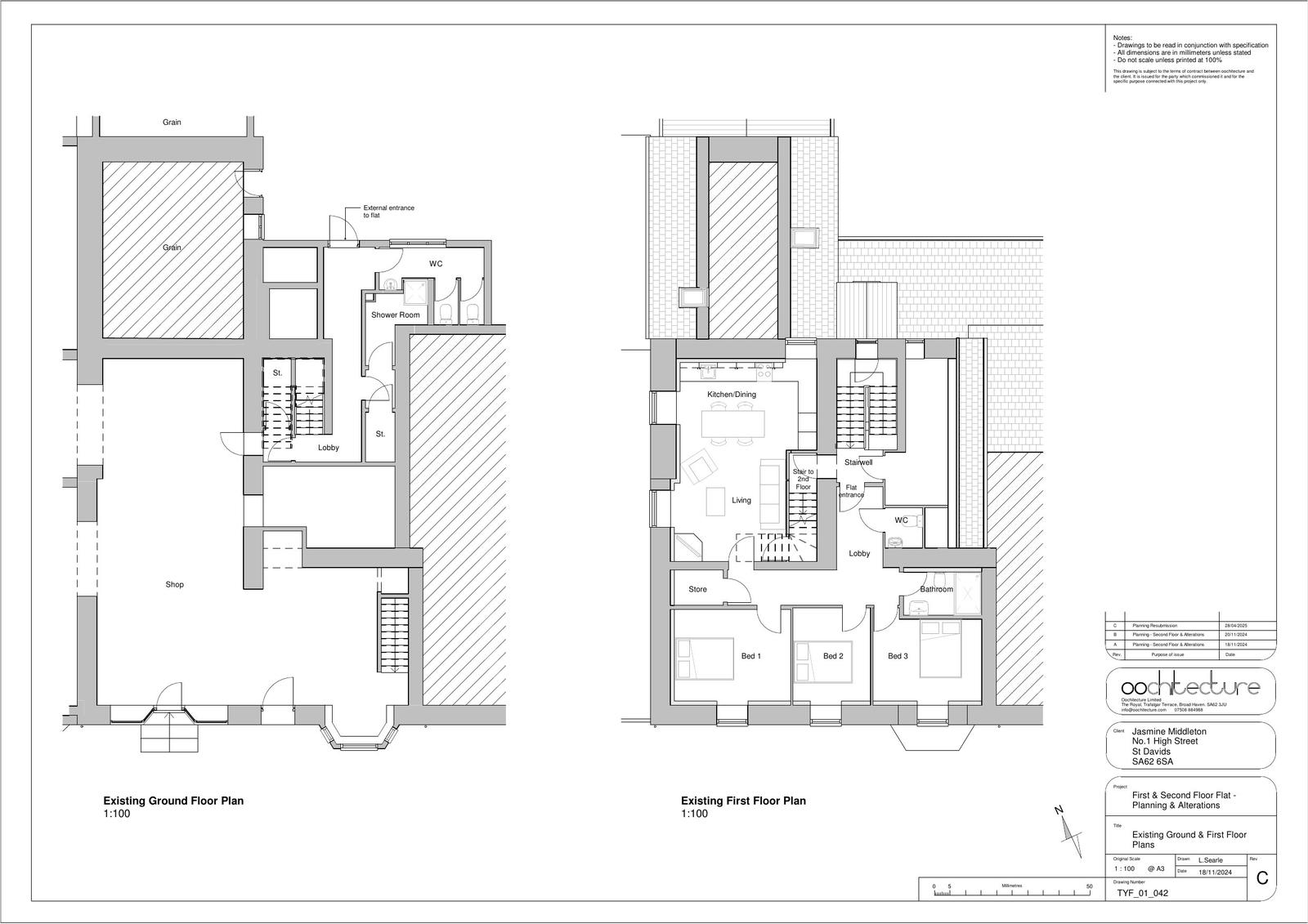
Change of use of the first floor flat (C4 to C3) and second floor flat (A1 to C3) to single family dwellings, with associated internal and external alterations.
Documents
Have your say
Your comment matters. Councils must consider every representation that raises material planning considerations.