← Pembrokeshire Coast National Park Authority

Status

Determined Other
Received
23 May 2025
New homes
0

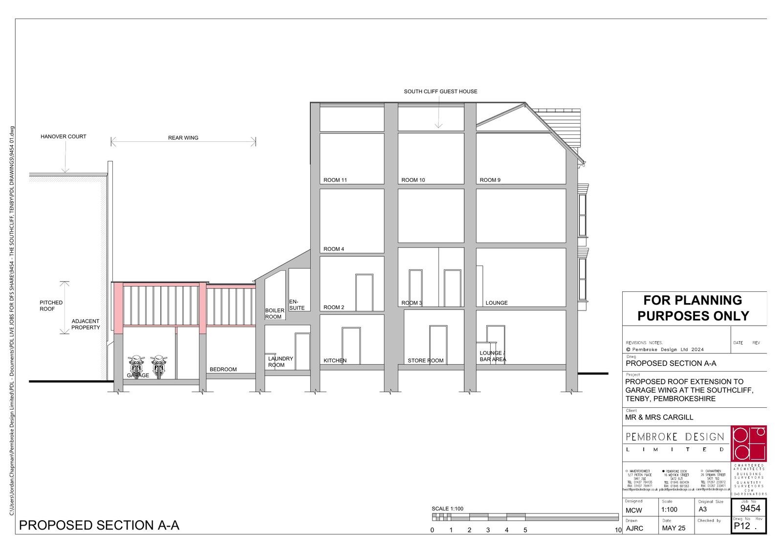
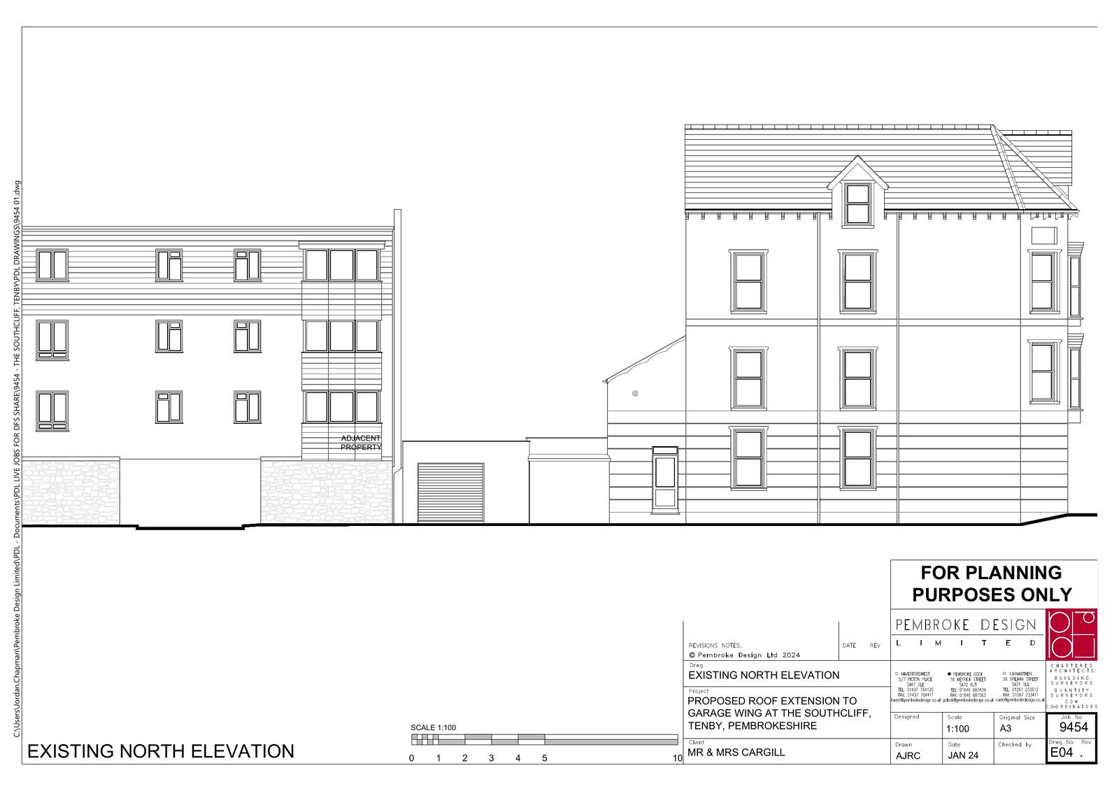
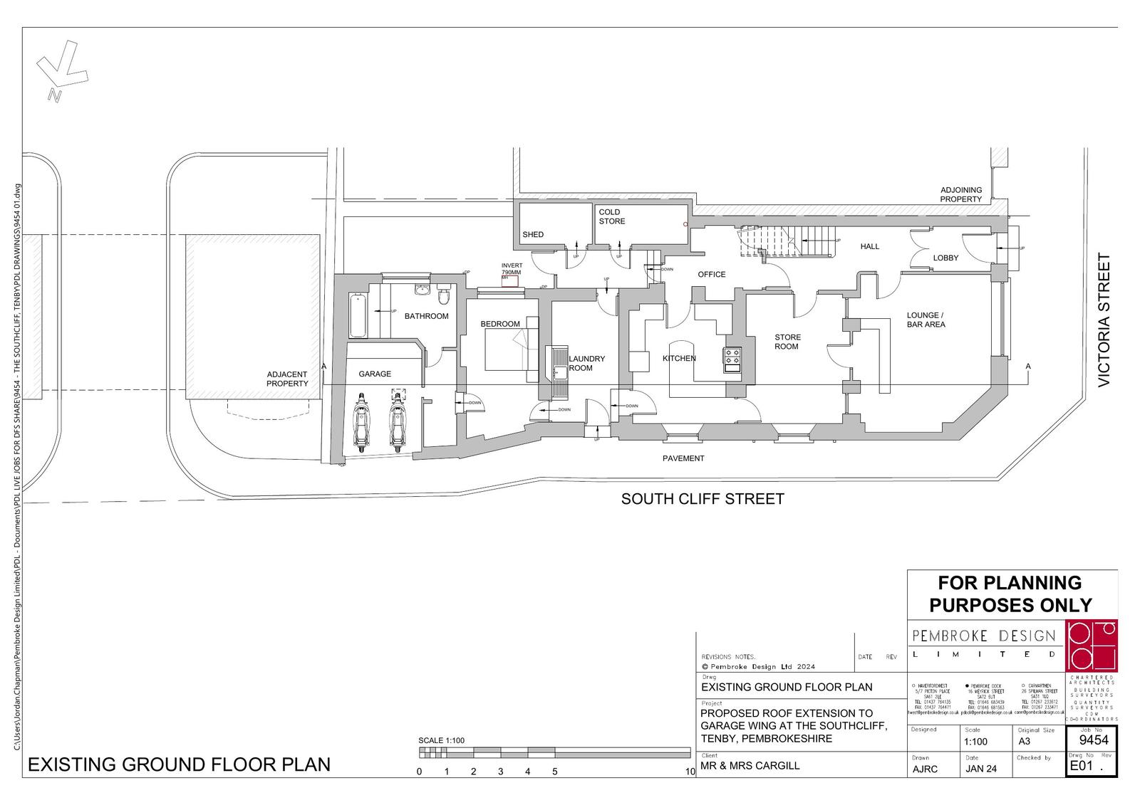
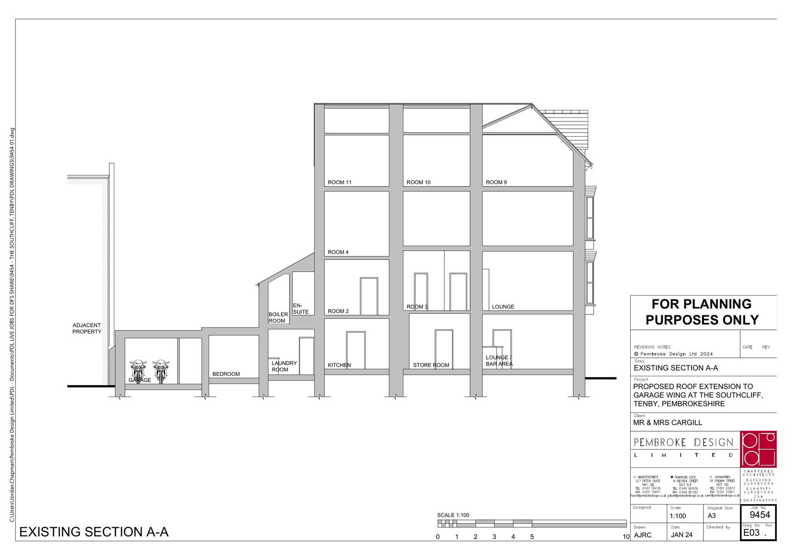
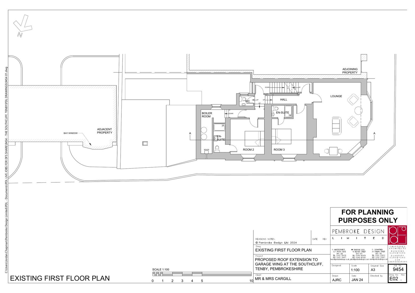
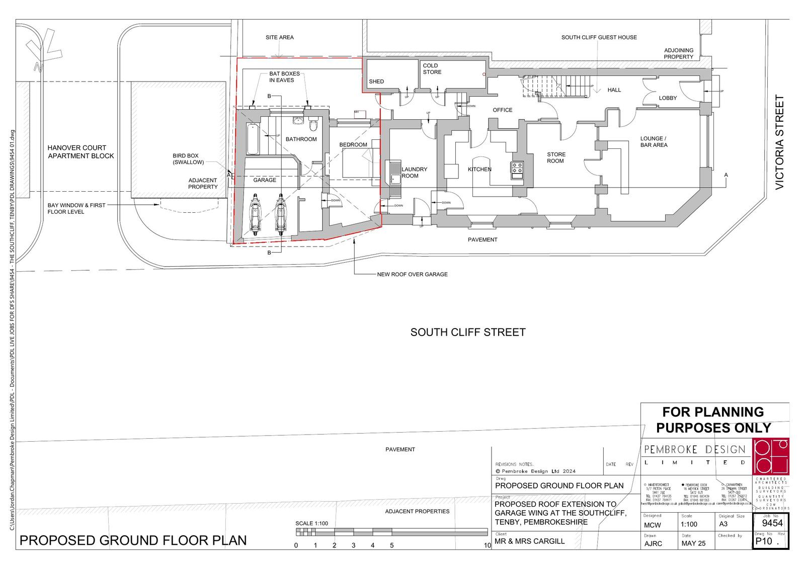
Full proposal

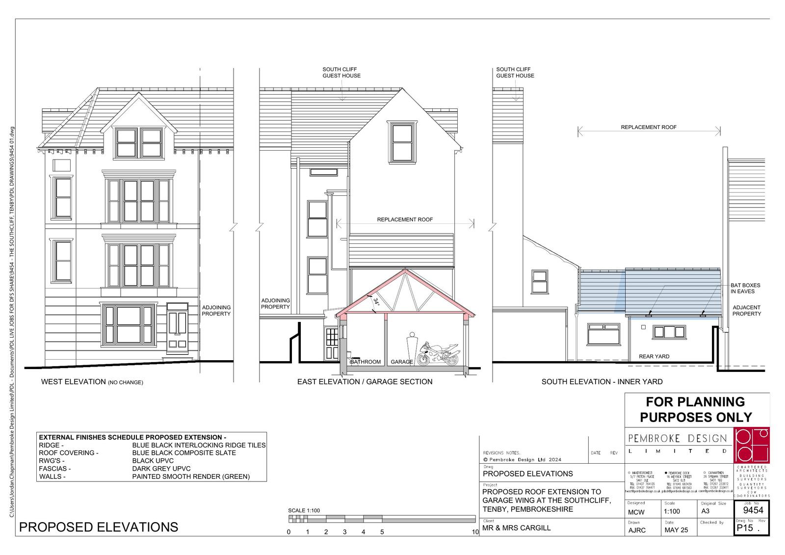
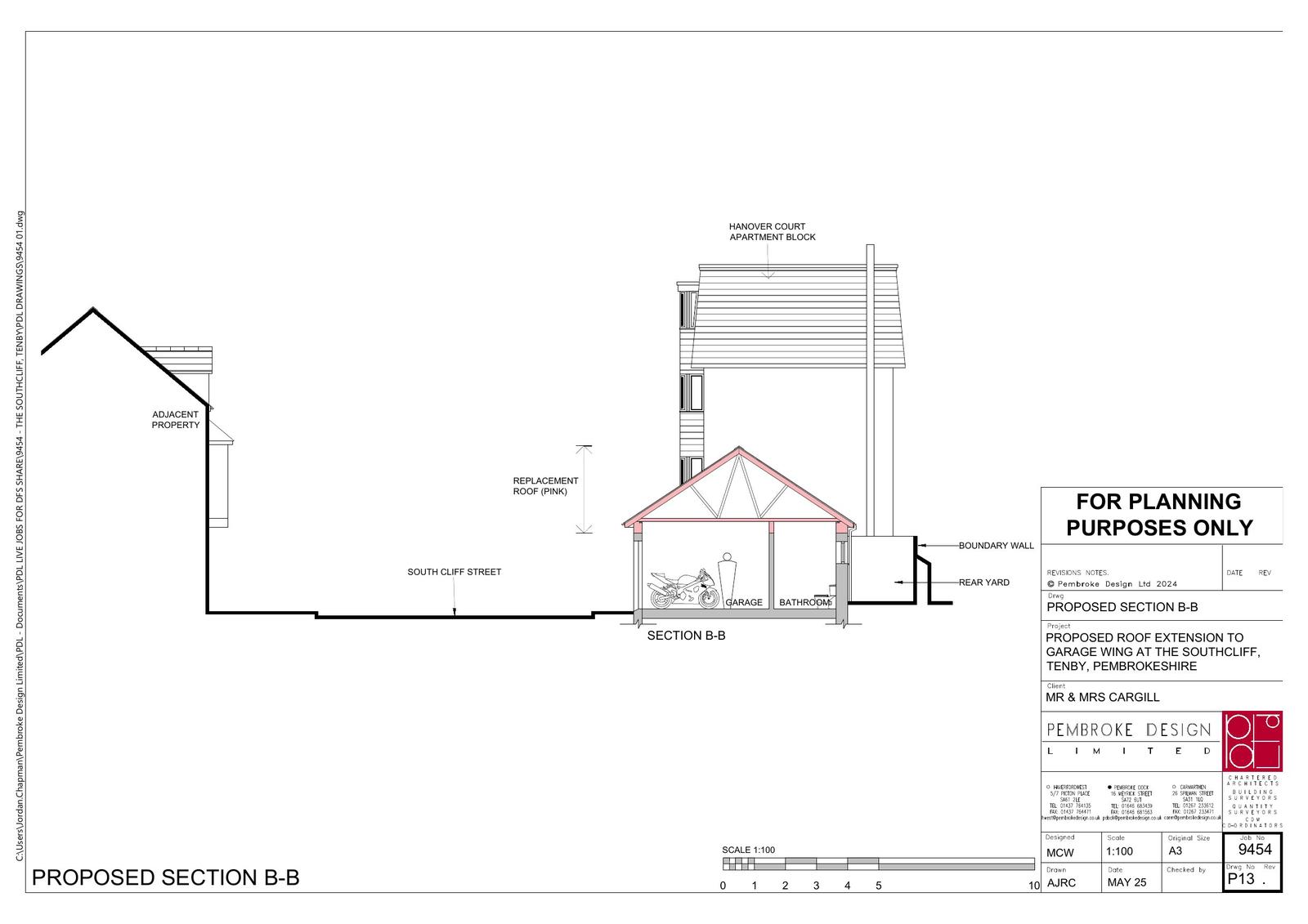
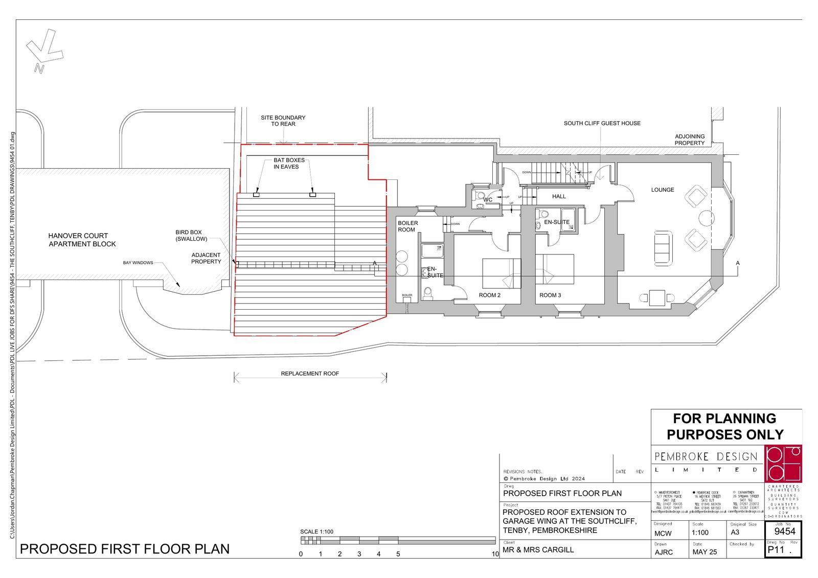
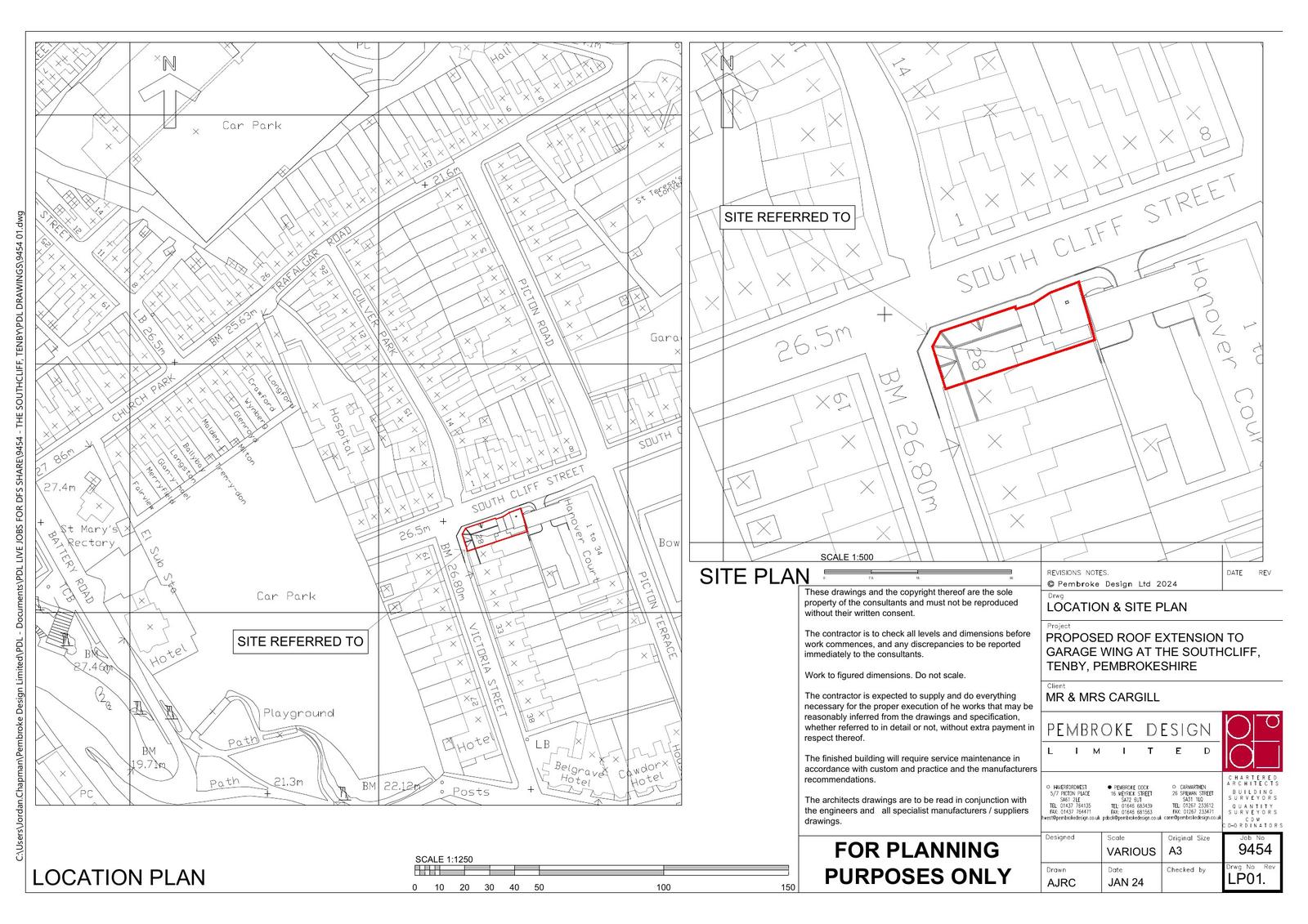
Replace flat roof of rear wing with pitched roof

Documents

Submitted Drawings
Archived · Original link
Application forms
Archived · Original link
Approved Documents
Archived · Original link
Approved Documents
Archived · Original link
Approved Documents
Archived · Original link
Approved Documents
Archived · Original link
Approved Documents
Archived · Original link
Approved Documents
Archived · Original link
Decision notice
Archived · Original link
Submitted Drawings
Archived · Original link
Submitted Drawings
Archived · Original link
Submitted Drawings
Archived · Original link
Submitted Drawings
Archived · Original link
Submitted Drawings
Archived · Original link
Officer Reports
Archived · Original link
Photographs
Archived · Original link

Have your say

Your comment matters. Councils must consider every representation that raises material planning considerations.

Write a comment