← Pembrokeshire Coast National Park Authority

Status

Determined Agricultural
Received
23 May 2025
New homes
1

Summary

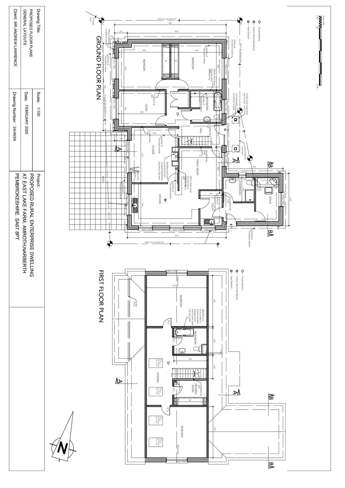
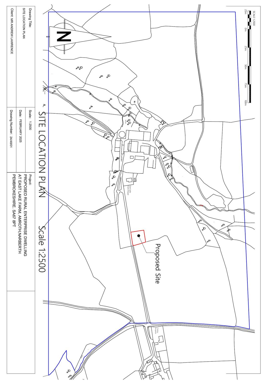
Erection of one rural enterprise dwelling.

Full proposal

Erection of a rural enterprise dwelling

Documents

Submitted Drawings
Archived · Original link
Application Form - Redacted
Application forms
Not yet archived · Original link
Approved Documents
Archived · Original link
Approved Documents
Archived · Original link
Approved Documents
Archived · Original link
APPROVED 08 Proposed Sections
Approved Documents
Not yet archived · Original link
APPROVED 09 Proposed Elevations
Approved Documents
Not yet archived · Original link
APPROVED Green Infrastructure Statement
Approved Documents
Not yet archived · Original link
Consultee response - Community Council 20/6/25
Consultee response
Not yet archived · Original link
Consultee Response - Dwr Cymru/Welsh Water 23/06/25
Consultee response
Not yet archived · Original link
Consultee response - Heneb 24/6/25
Consultee response
Not yet archived · Original link
Consultee response - Highways 27/6/25
Consultee response
Not yet archived · Original link
Consultee Response - NRW 27/08/2025
Consultee response
Not yet archived · Original link
Consultee Response - PCC Drainage Engineers (Civils) 11/06/2025
Consultee response
Not yet archived · Original link
Consultee Response - PCNPA Access Officer 23/06/2025
Consultee response
Not yet archived · Original link
Consultee Response - PCNPA Planning Ecologist 2/12/25
Consultee response
Not yet archived · Original link
Consultee Response - PCNPA Tree & Landscape Officer 2/12/25
Consultee response
Not yet archived · Original link
Consultee Response - Wales and West Utilities 09/06/2025
Consultee response
Not yet archived · Original link
Decision Notice
Decision notice
Not yet archived · Original link
Officer Report
Officer Reports
Not yet archived · Original link
Planning Statement
Submitted documents
Not yet archived · Original link
Rural Enterprise Dwelling Appraisal Redacted
Submitted documents
Not yet archived · Original link

Have your say

Your comment matters. Councils must consider every representation that raises material planning considerations.

Write a comment