← Pembrokeshire Coast National Park Authority

Status

Valid - with Officers Change of use
Received
02 Feb 2026
New homes
0

Full proposal

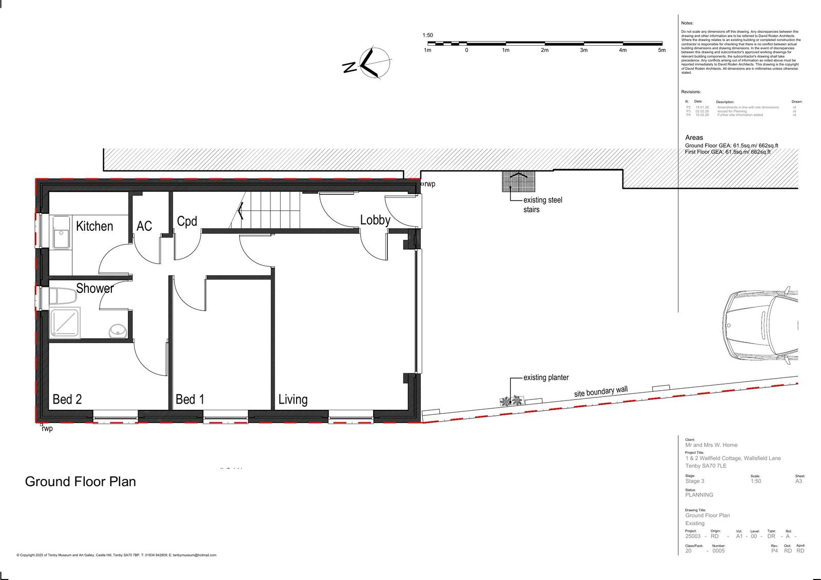
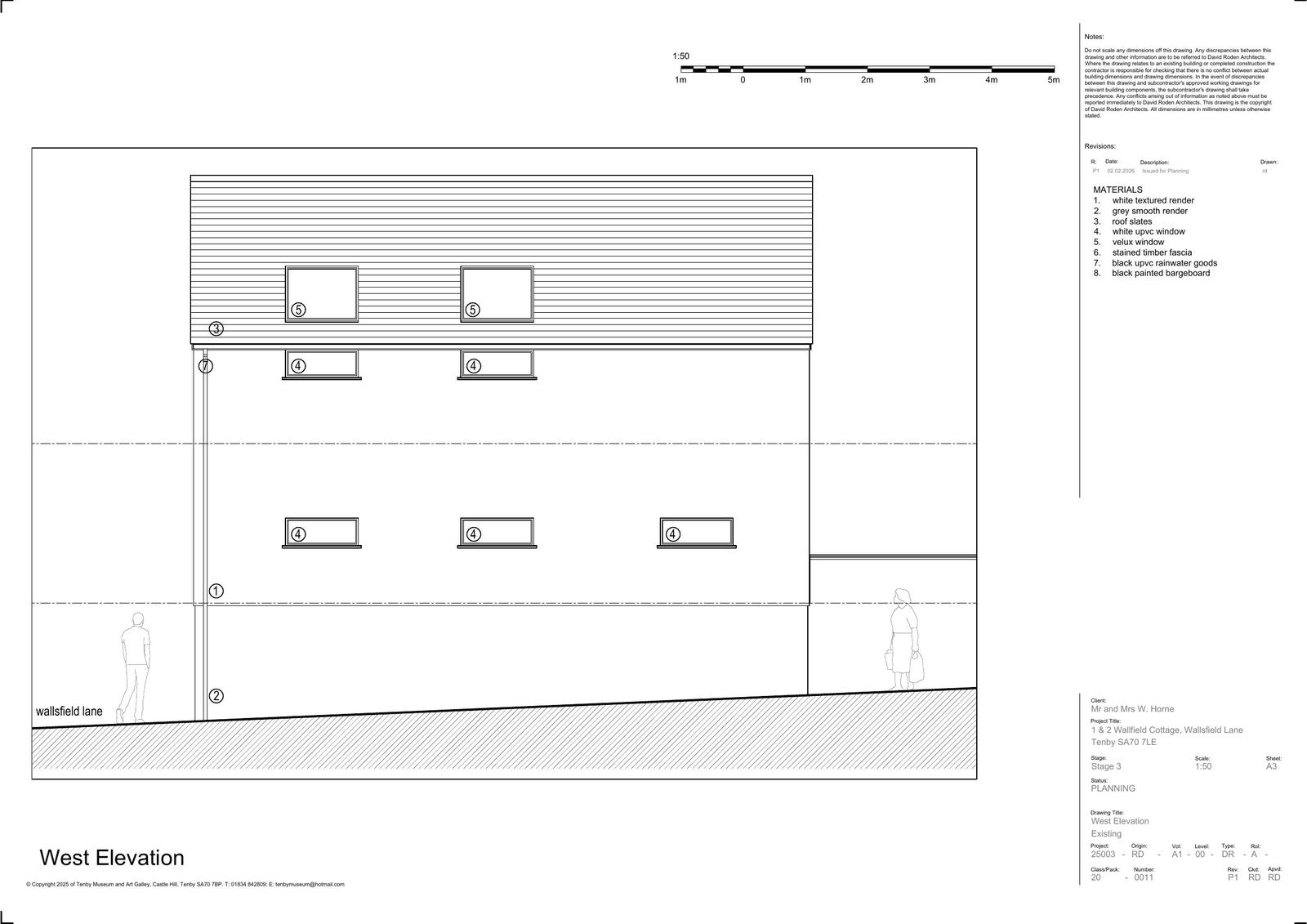
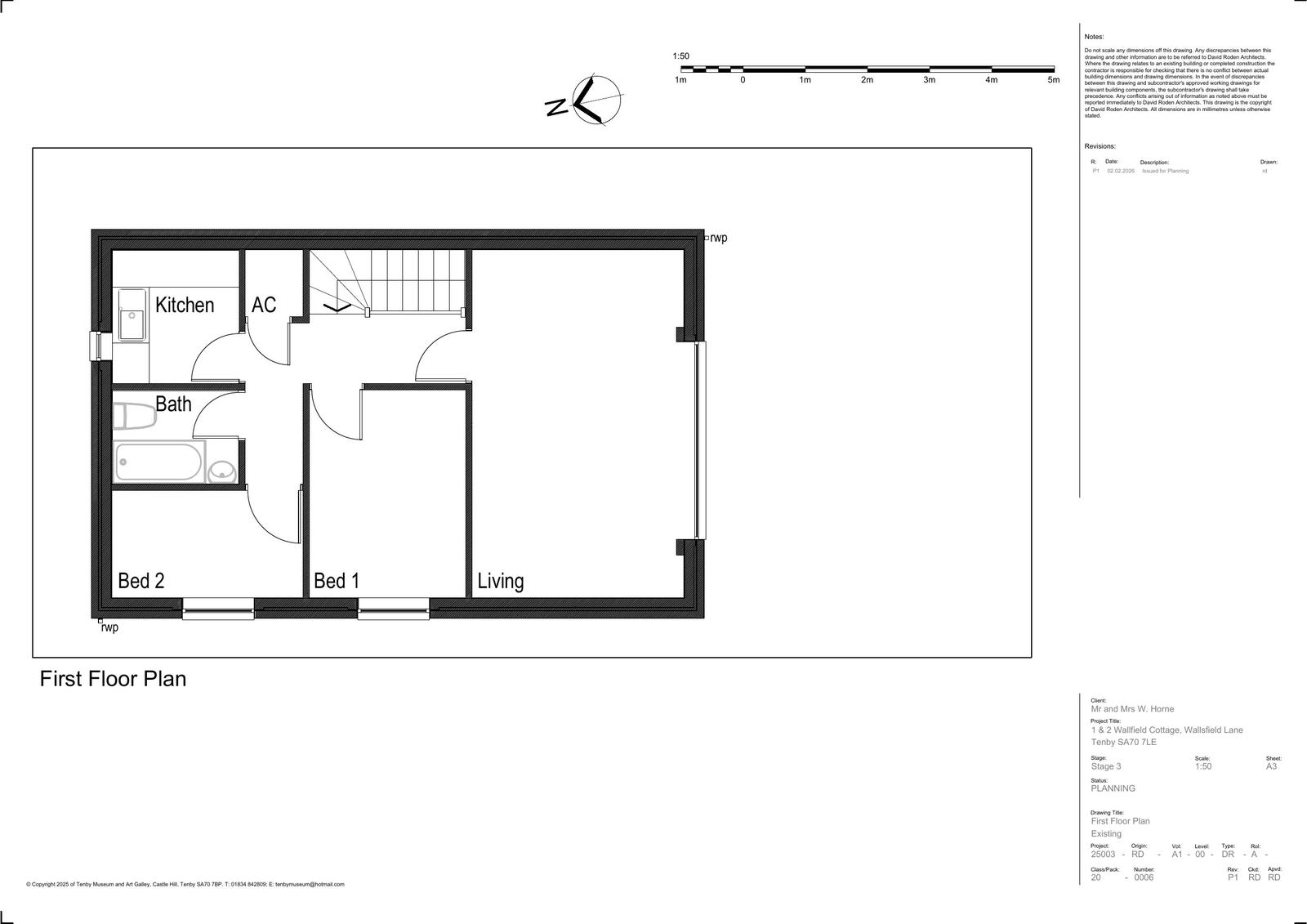
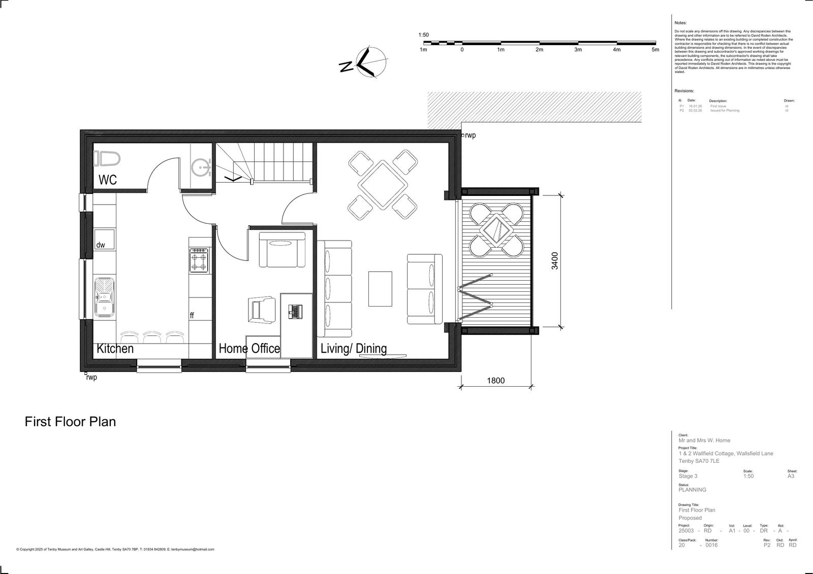
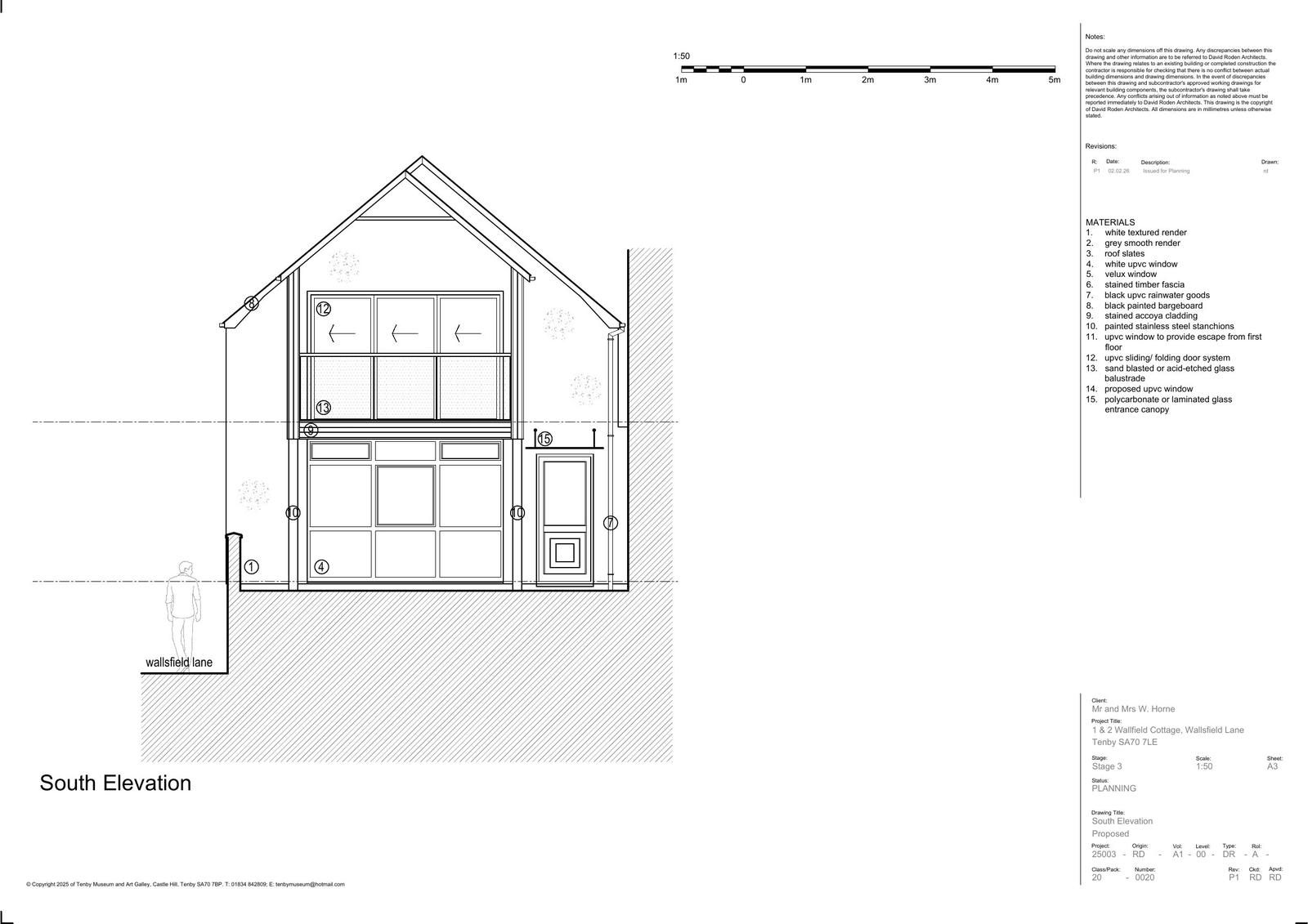
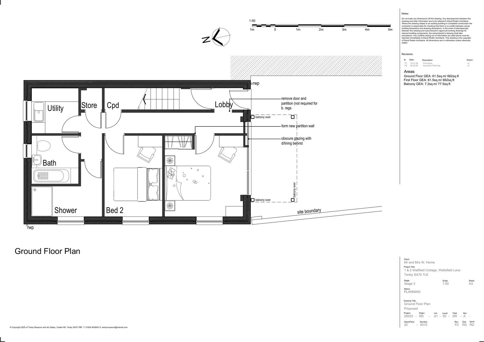
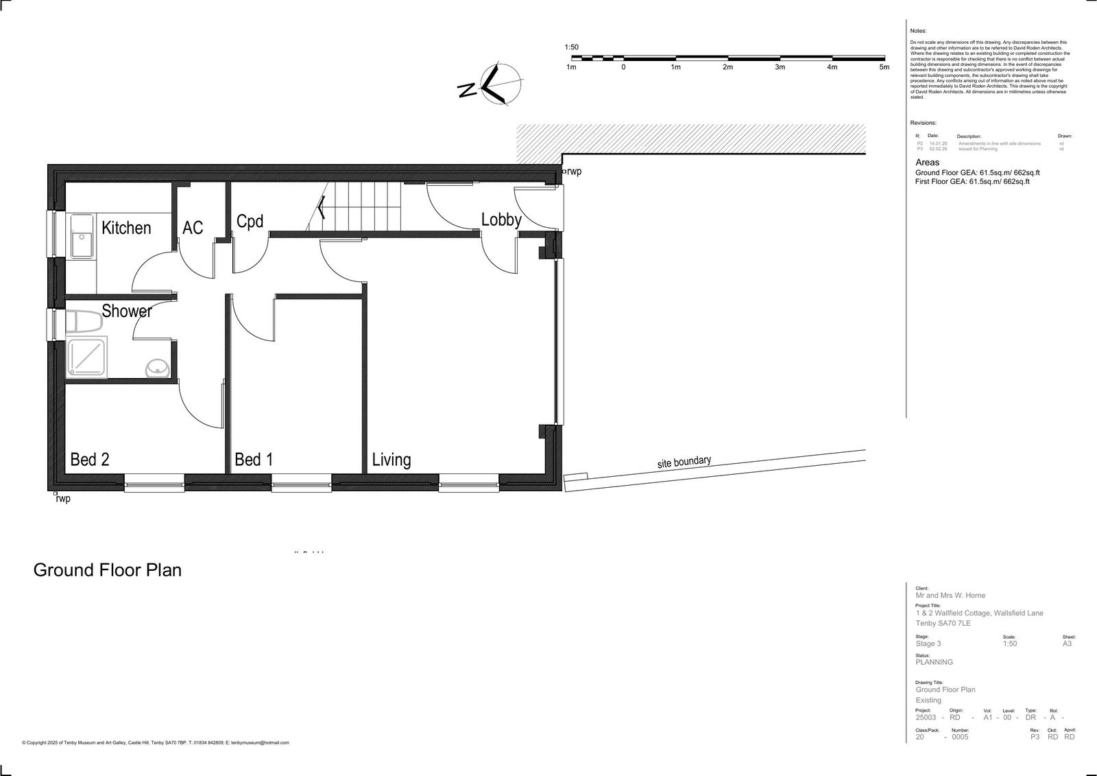
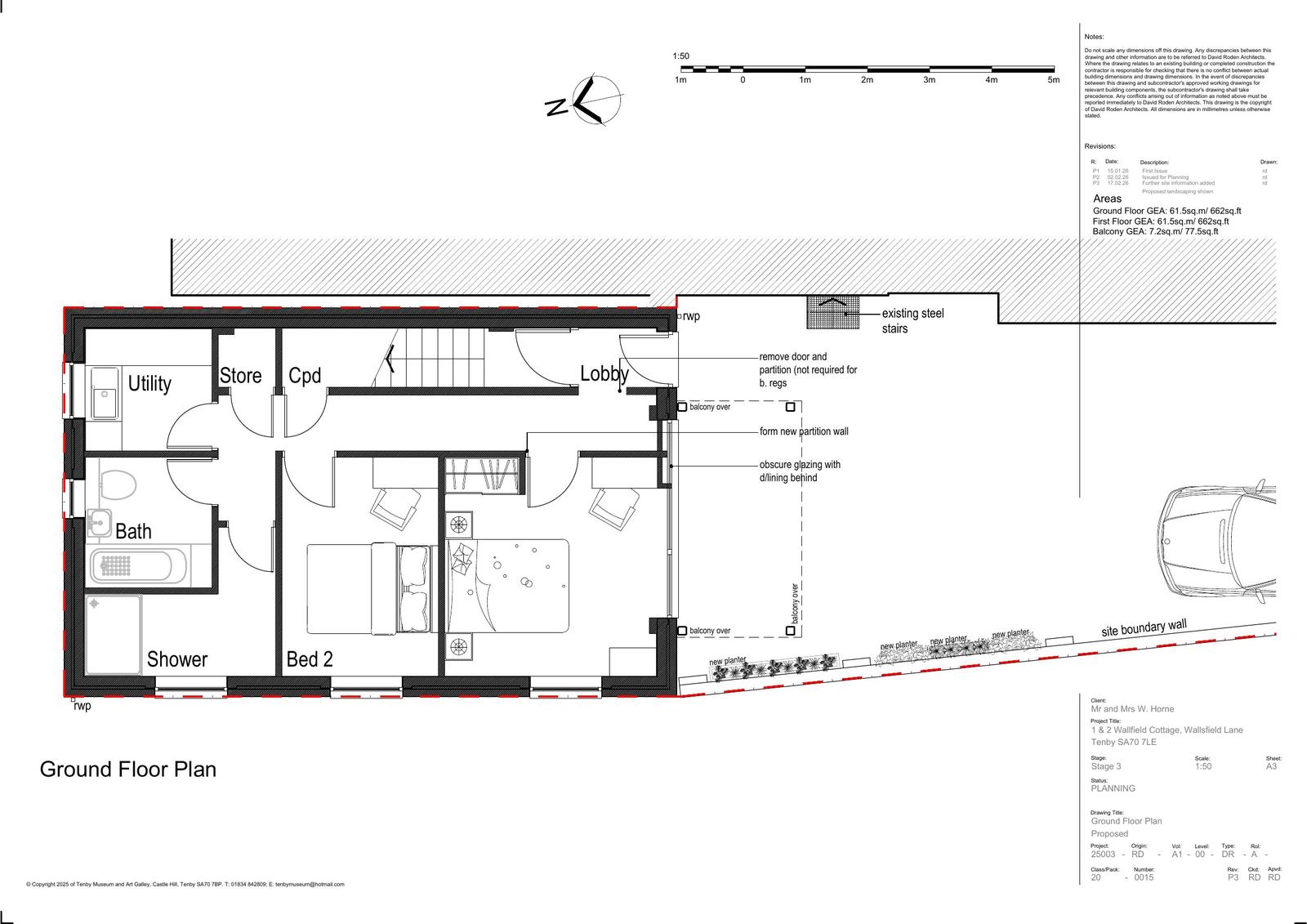
Conversion of ground and first floor flats into a single residence. Replacement of one existing window with large window affording alternate means of escape from first floor. New window to kitchen on north elevation. Addition of enclosed balcony at first floor to south elevation.

Documents

Location Plan
Archived · Original link
Submitted Drawings
Archived · Original link
Submitted Drawings
Archived · Original link
Submitted Drawings
Archived · Original link
Submitted Drawings
Archived · Original link
Submitted Drawings
Archived · Original link
Superceded Document
Archived · Original link
Submitted Drawings
Archived · Original link
Submitted Drawings
Archived · Original link
Submitted Drawings
Archived · Original link
Superceded Document
Archived · Original link
Superceded Document
Archived · Original link
Submitted documents
Archived · Original link
Application forms
Archived · Original link
Submitted documents
Archived · Original link
Revised/Updated Documents
Archived · Original link

Have your say

Your comment matters. Councils must consider every representation that raises material planning considerations.

Write a comment