← Pendle Borough Council

Status

Registered House extension
Received
07 Jan 2026
New homes
0

Full proposal

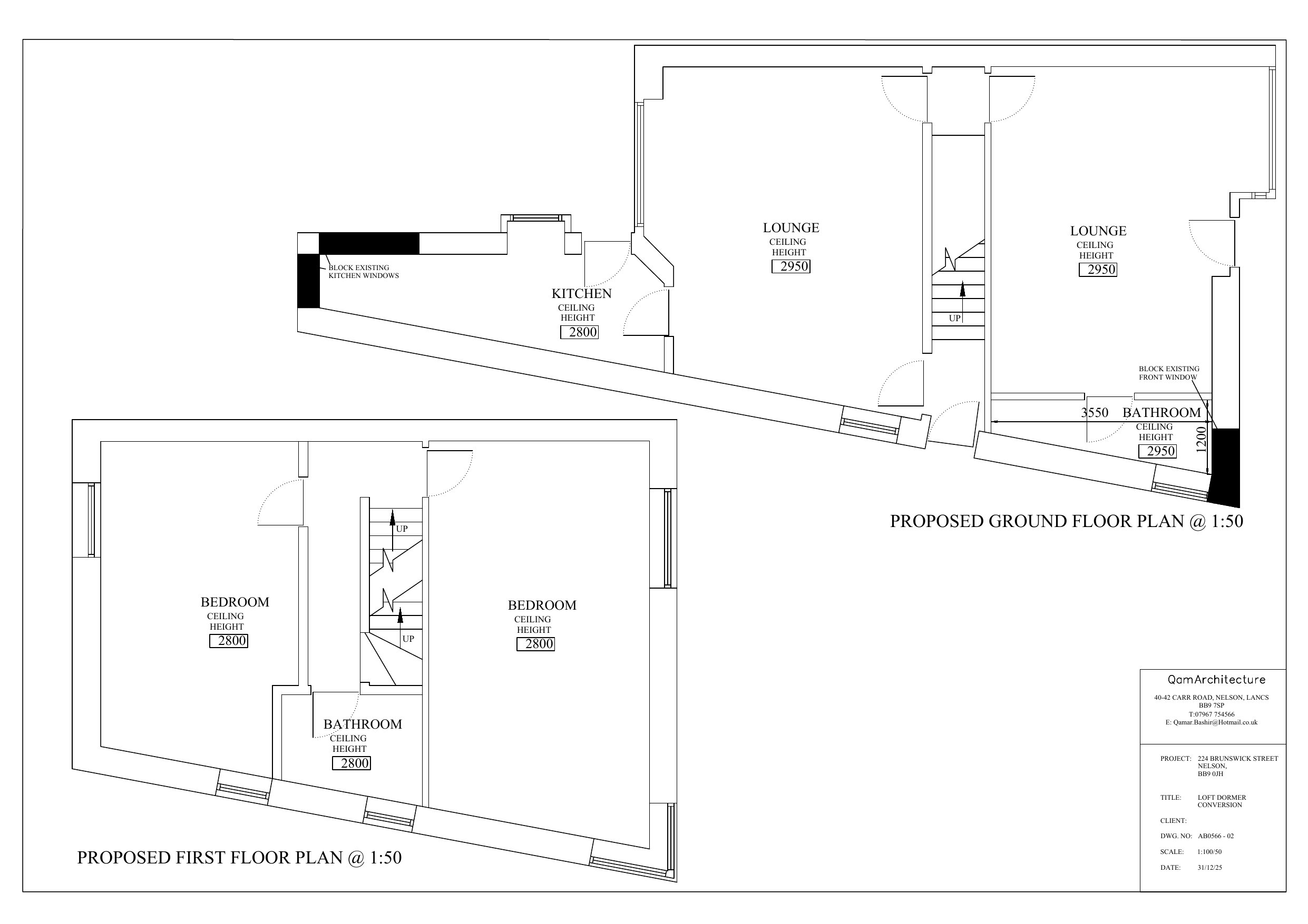
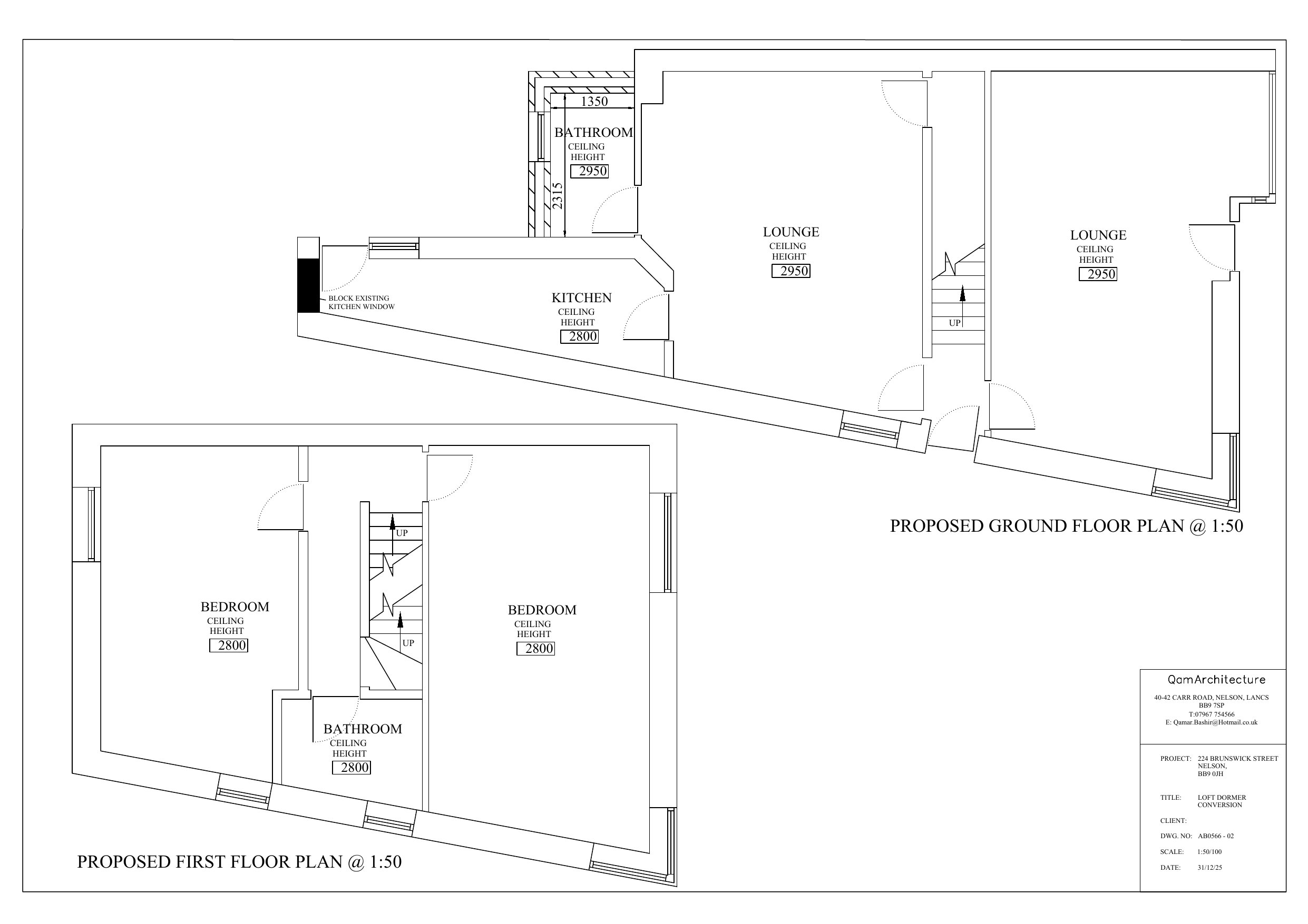
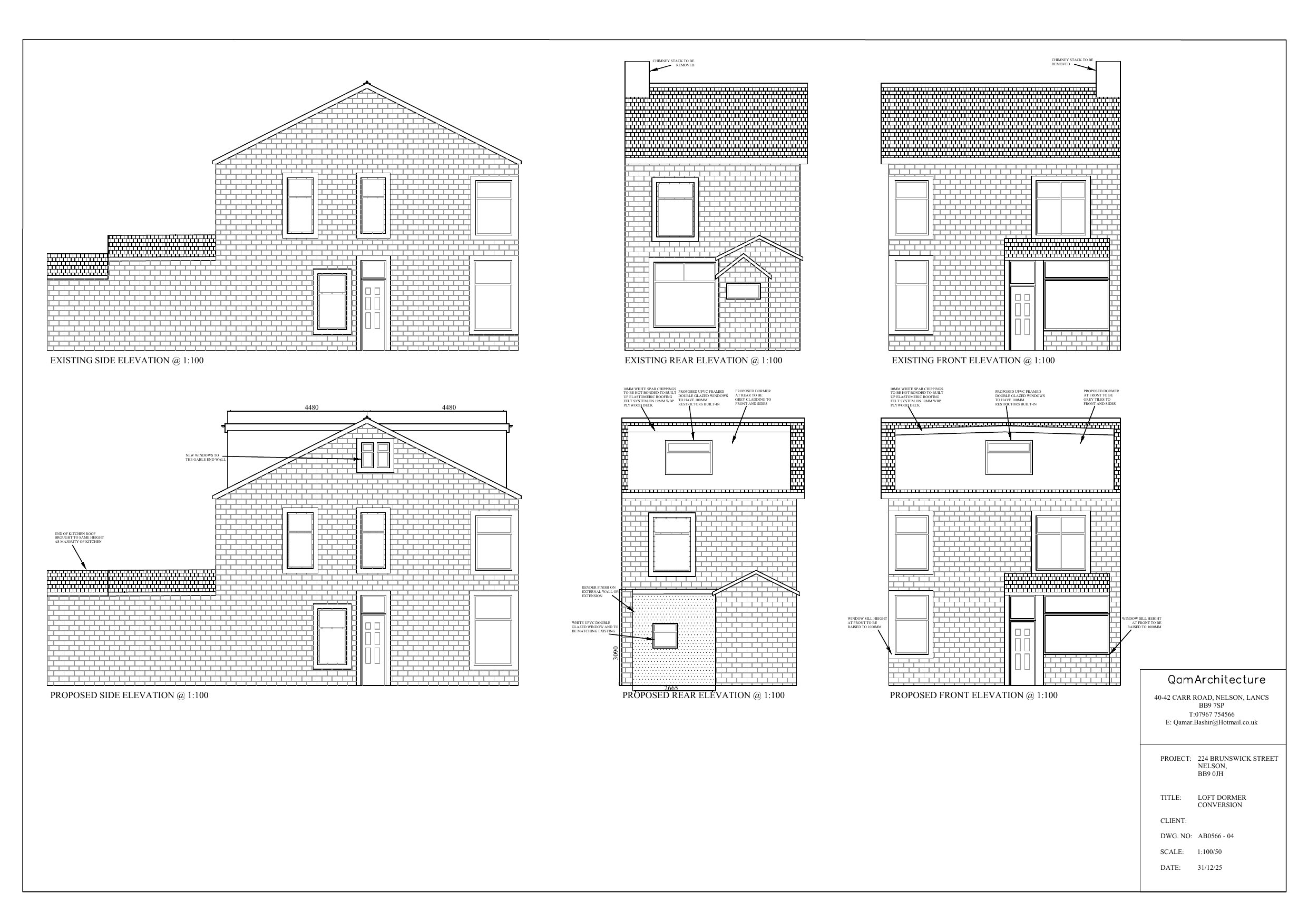
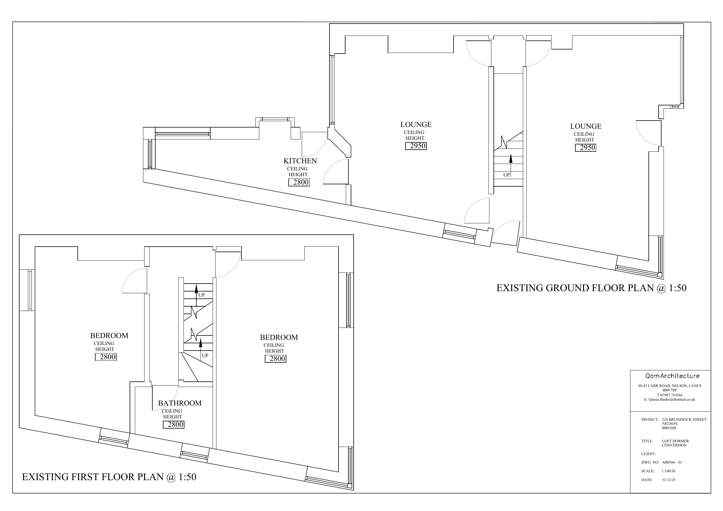
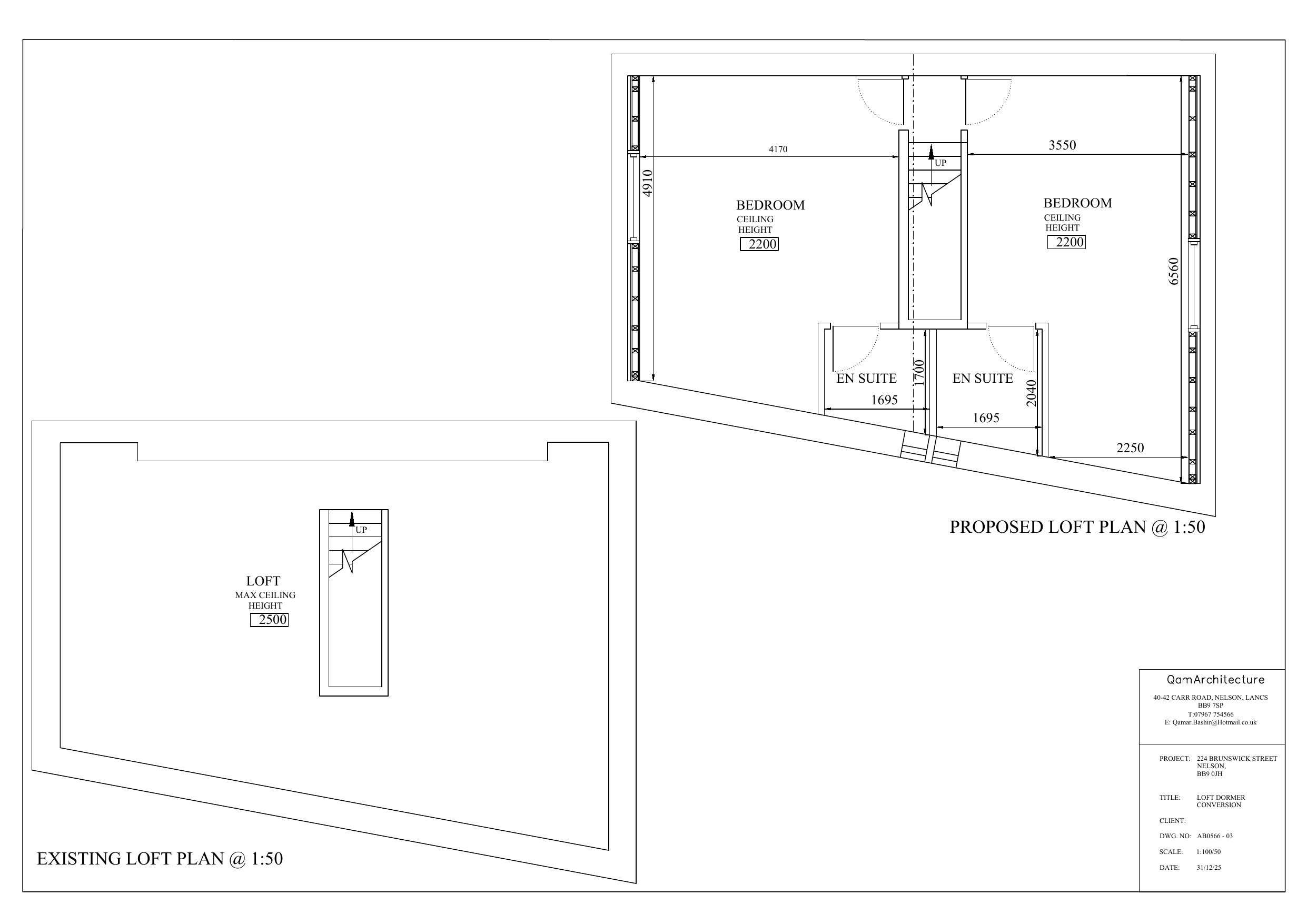
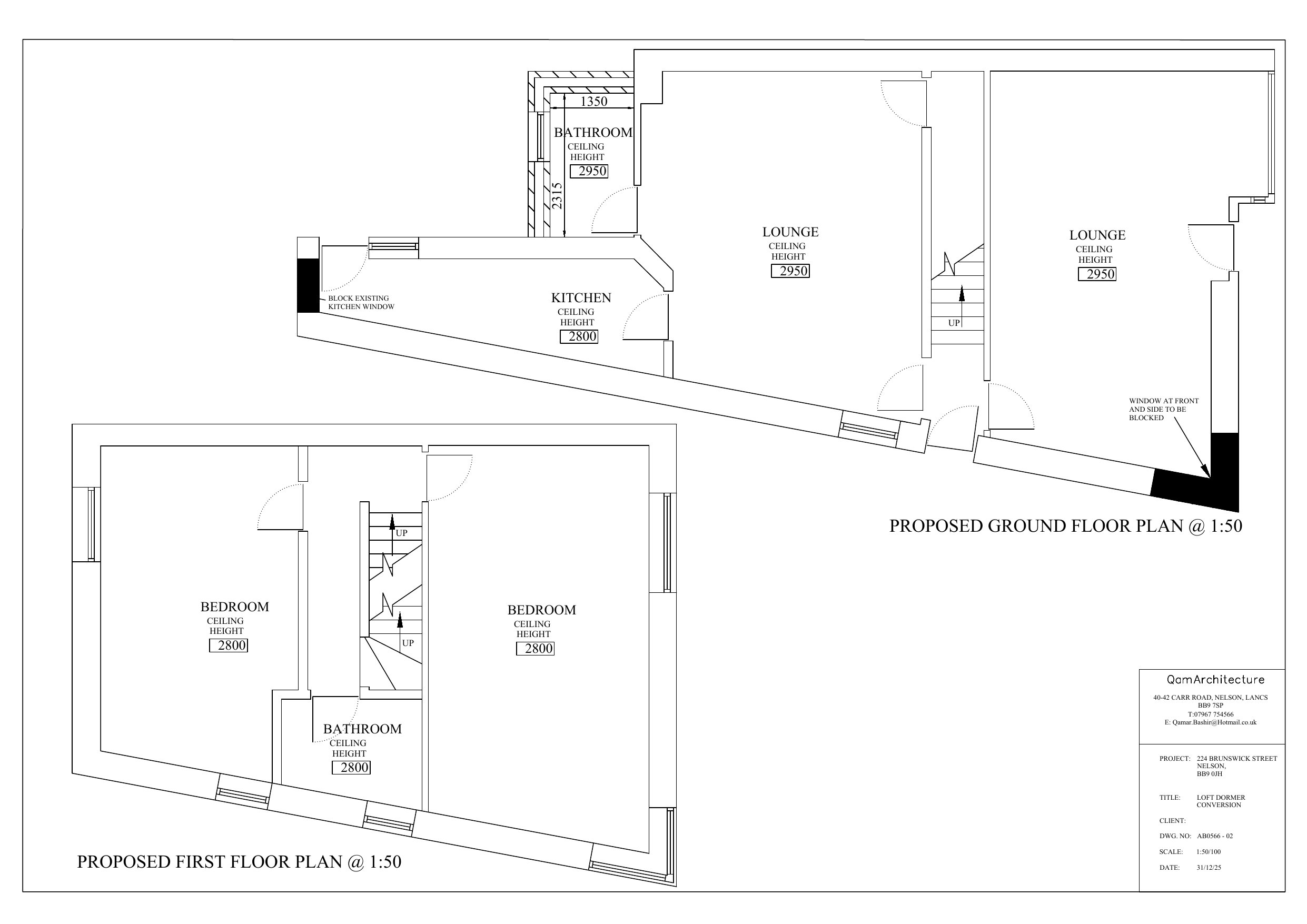
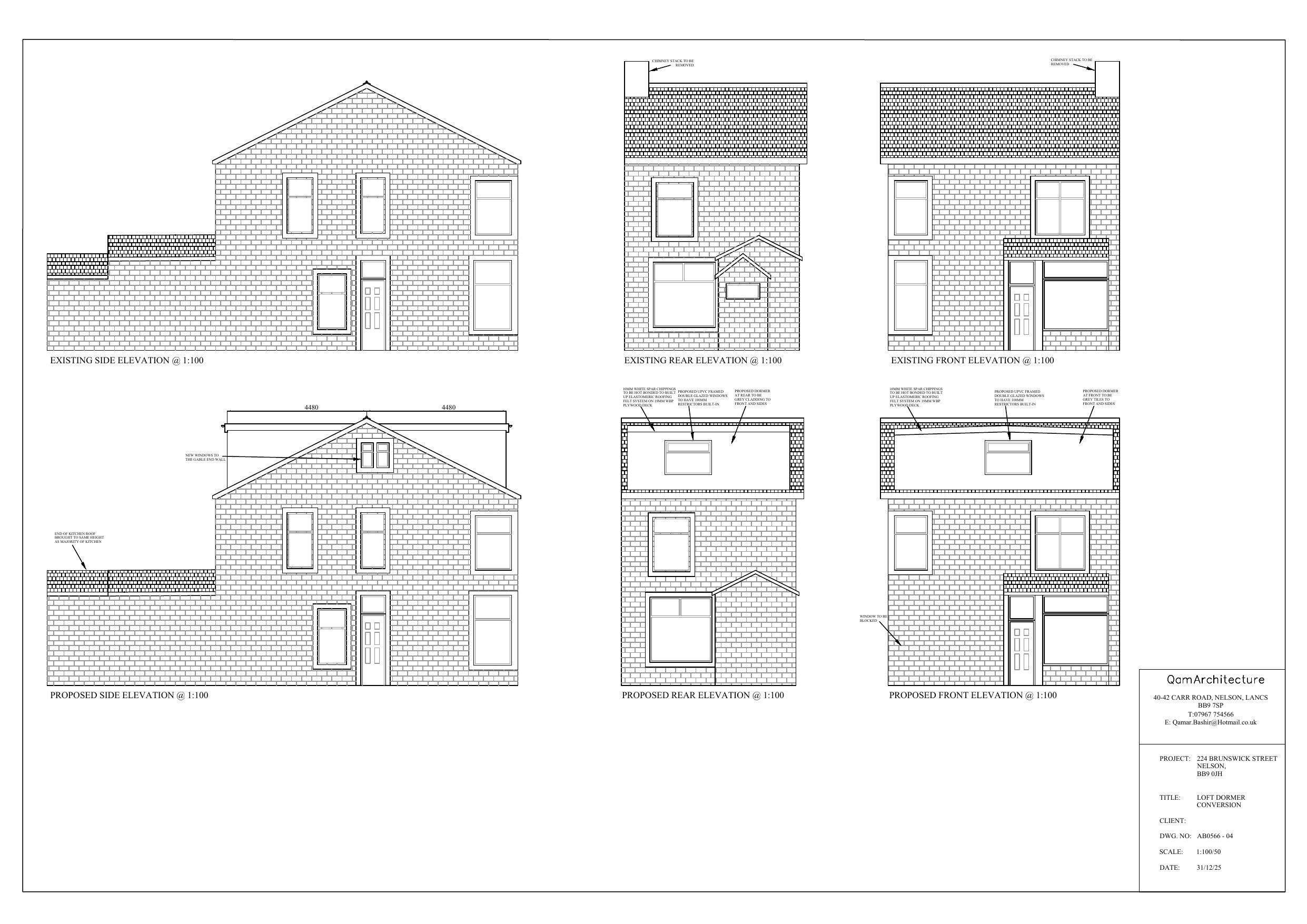
Full: Erection of dormers to the front and rear roof slopes, erection of single-storey rear extension, raising of kitchen roof height, and insertion of gable-end windows.

Have your say

Your comment matters. Councils must consider every representation that raises material planning considerations.

Write a comment