← Pendle Borough Council

Status

Registered House extension
Received
19 Jan 2026
New homes
0

Full proposal

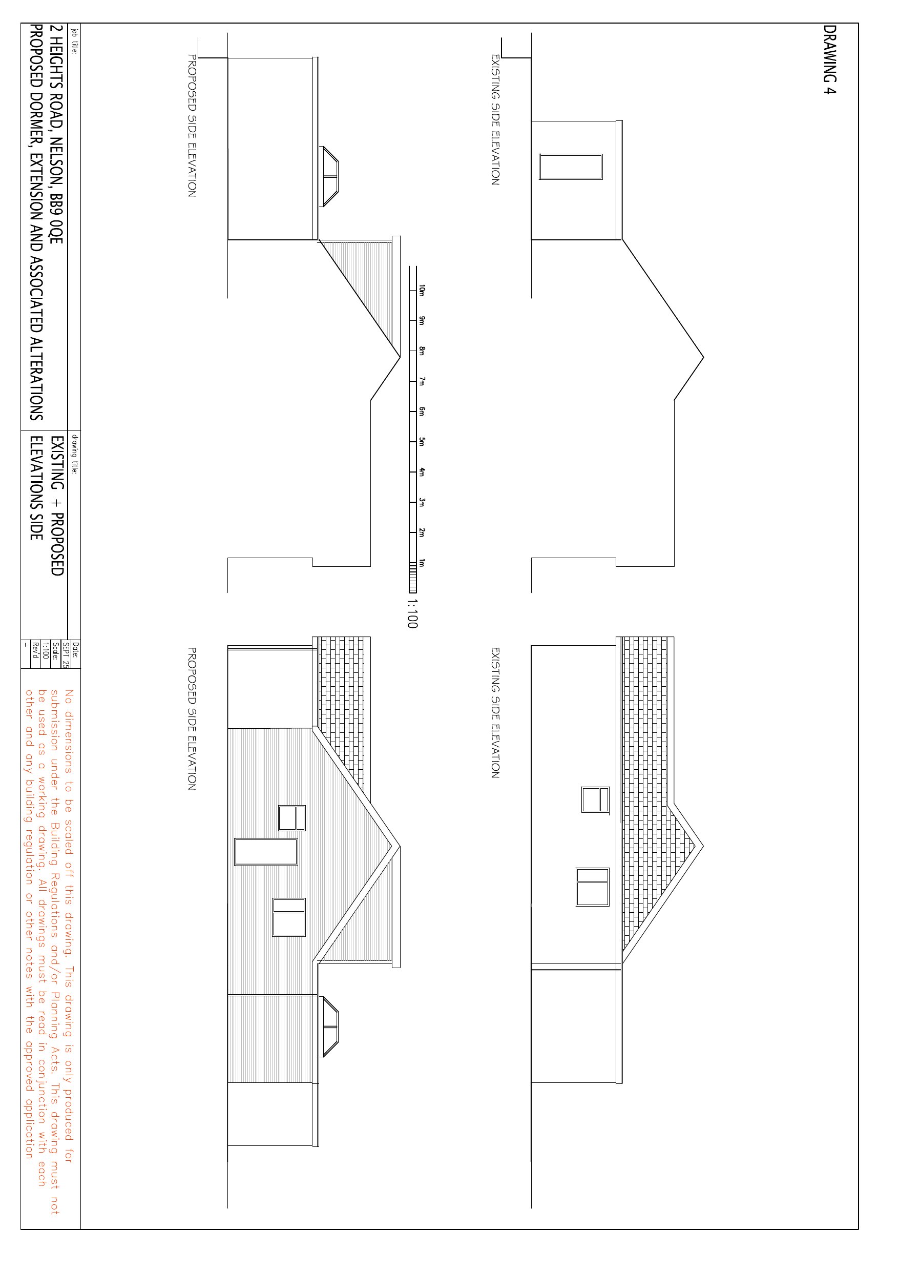
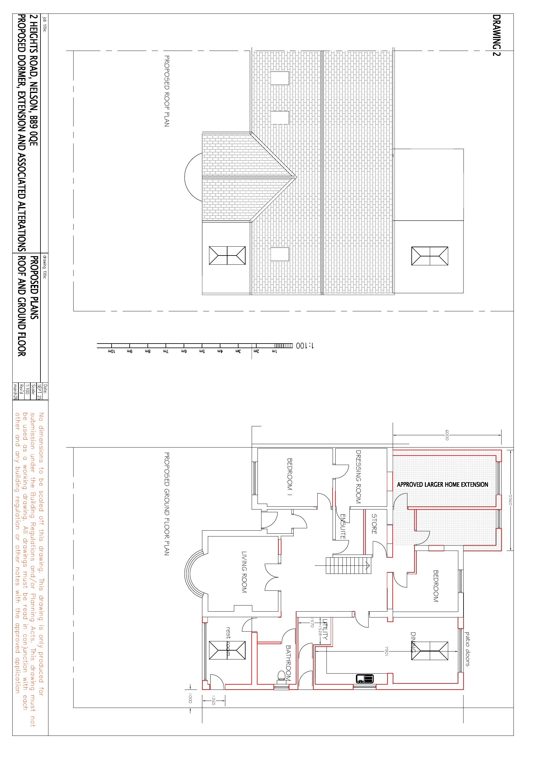
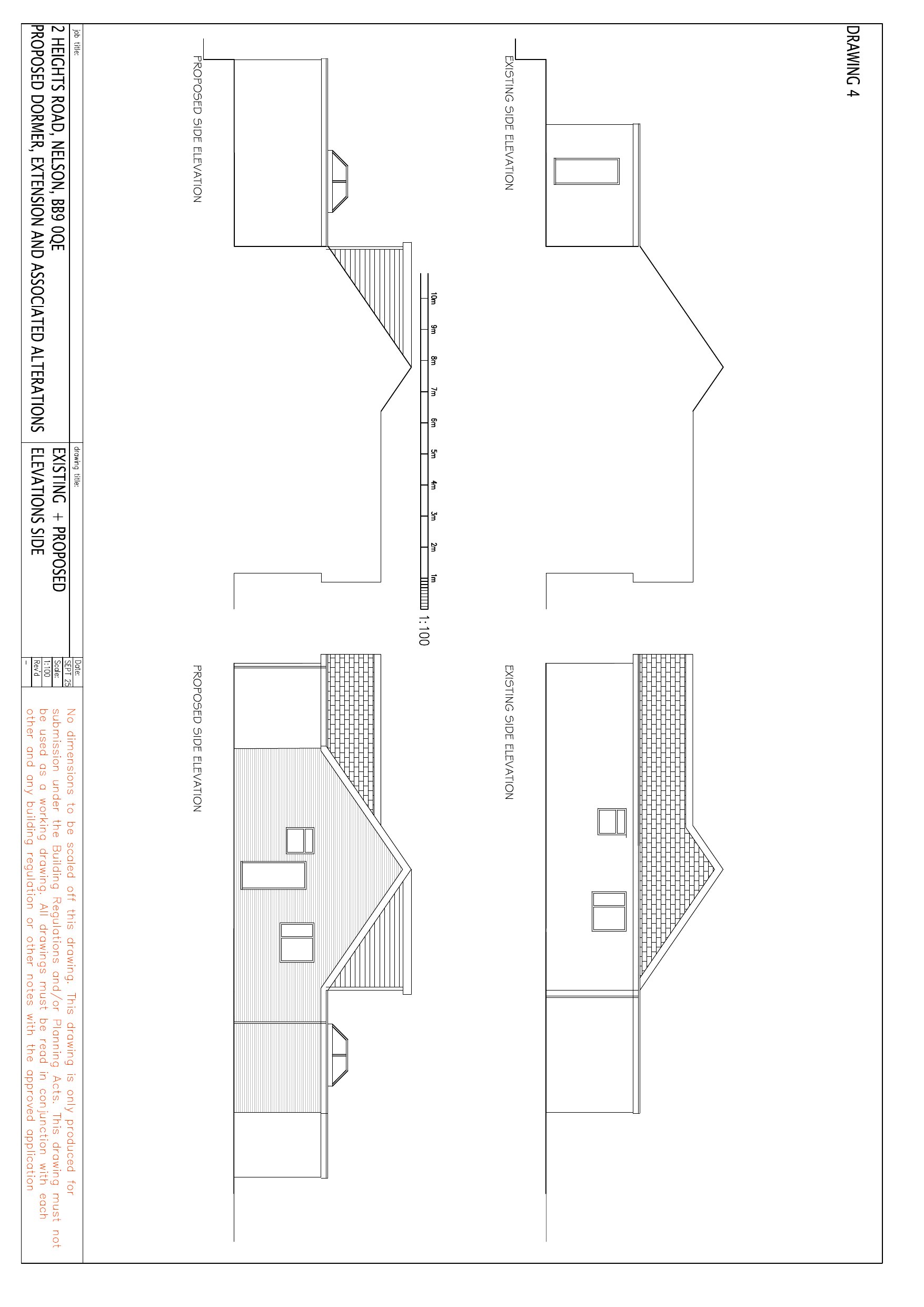
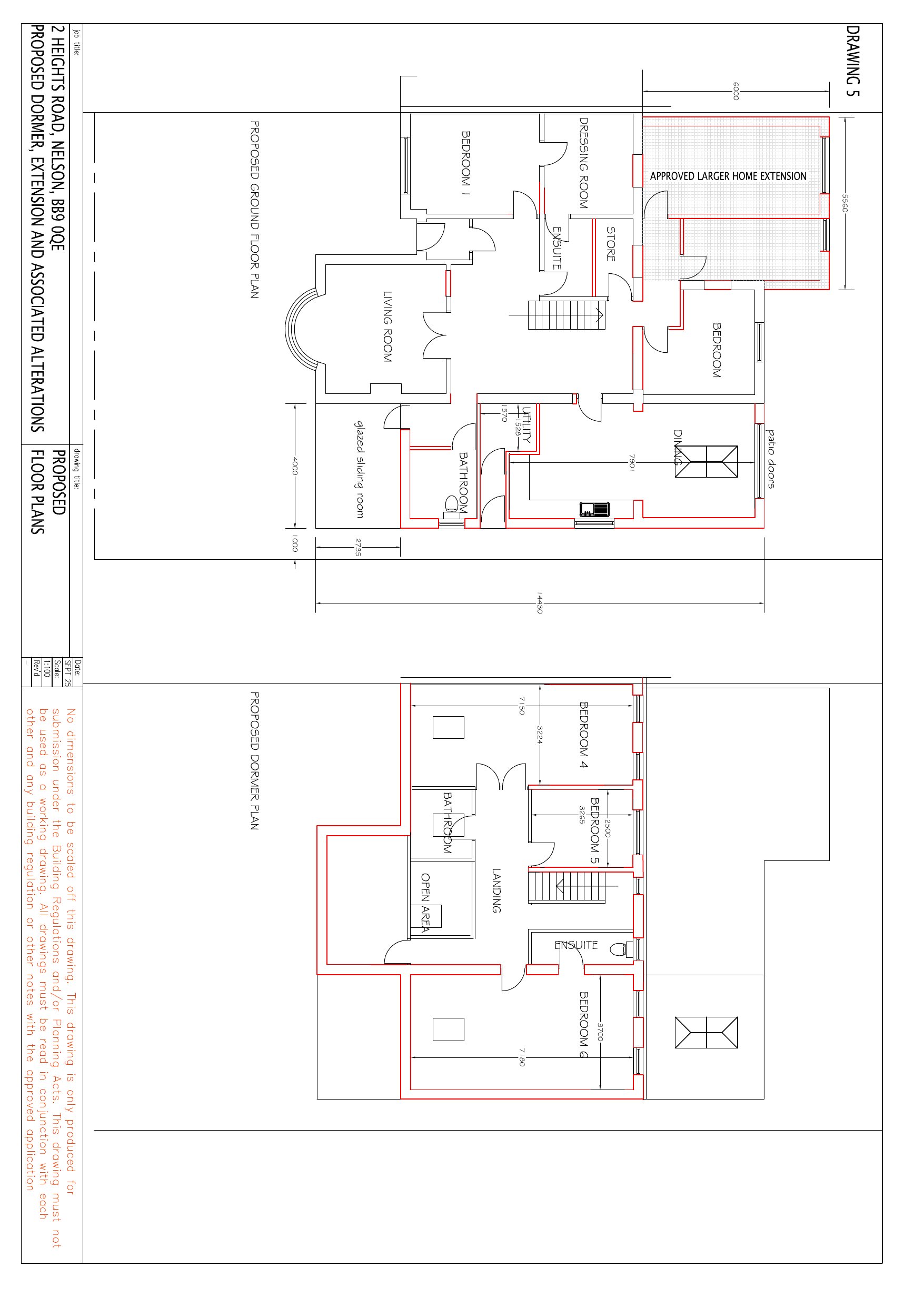
Full: Erection of single storey side extension with first floor roof extension above and erection of dormer windows to rear roof slopes.

Have your say

Your comment matters. Councils must consider every representation that raises material planning considerations.

Write a comment