← Perth and Kinross Council
Status
Awaiting decision
Change of use
Summary
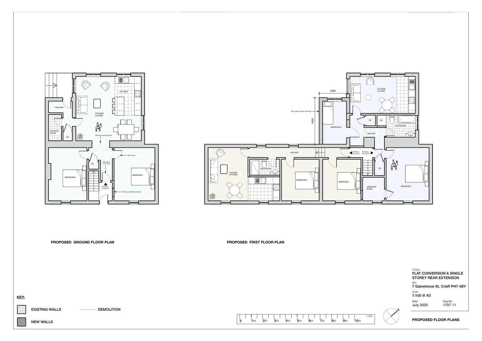
Extend and subdivide dwellinghouse to form three flats.
Full proposal
Extension and subdivision of dwellinghouse to form 3 flats
Documents
1:1250 LOCATION PLAN
Superseded Drawing/documents
Superseded Drawing/documents
APPLICATION FOR PLANNING PERMISSION
Application Form
DUPLICATE EXISTING AND PROPOSED ROOF PLANS
Superseded Drawing/documents
DUPLICATE EXISTING FLOOR PLANS
Superseded Drawing/documents
DUPLICATE PROPOSED FLOOR PLAN
Superseded Drawing/documents
EXISTING AND PROPOSED ROOF PLANS
Drawing
EXISTING FLOOR PLAN
Drawing
EXISTING FRONT ELEVATION
Revised Drawing
EXISTING NORTH AND WEST ELEVATION
Drawing
Superseded Drawing/documents
EXISTING SOUTH AND EAST ELEVATIONS
Drawing
EXISTING WINDOW DETAILS
Drawing
EXTERNAL CONSULTATION FROM SCOTTISH WATER
External Consultees
INTERNAL CONSULTEE RESPONSE (CONTRIBUTIONS)
Internal Consultees
LOCATION PLAN REVISED
Revised Drawing
NEIGHBOUR NOTIFICATION LIST
Neighbour Notification List
NEIGHBOUR NOTIFICATION MAPS
OS Extract
PROPOSED ELEVATIONS REVISED
Revised Drawing
PROPOSED FRONT ELEVATION
Revised Drawing
Superseded Drawing/documents
PROPOSED SOUTH ELEVATION
Superseded Drawing/documents
PROPOSED WEST AND NORTH ELEVATION
Drawing
PROPOSED WINDOW DETAILS
Superseded Drawing/documents
SCHEDULE OF WORKS
Superseded Drawing/documents
SITE NOTICE CA AND LB
Site Notice
TRANSPORT PLANNING
Internal Consultees
Have your say
Your comment matters. Councils must consider every representation that raises material planning considerations.