← Perth and Kinross Council

Status

Awaiting decision New housing
Received
31 Dec 2025
New homes
1

Full proposal

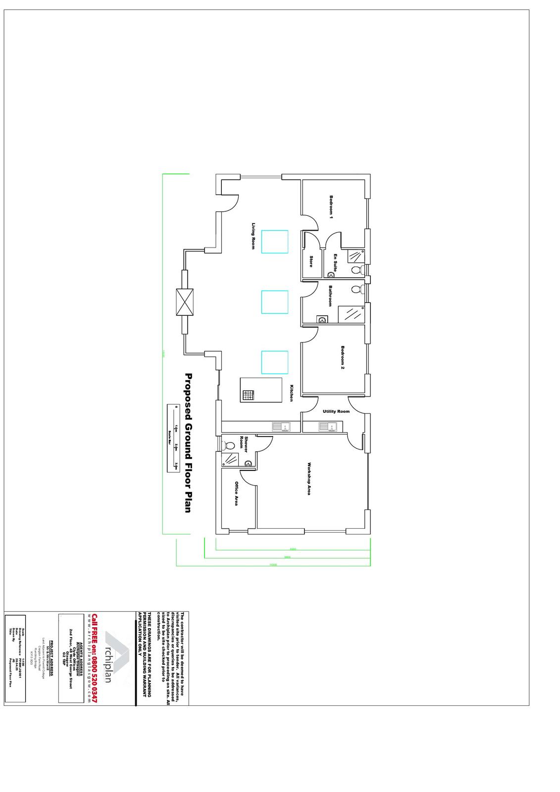
Erection of dwellinghouse

Documents

Drawing
Archived · Original link
Application Form
Archived · Original link
Drawing
Archived · Original link
Neighbour Notification List
Archived · Original link
Objection Comment
Archived · Original link
Drawing
Archived · Original link
Drawing
Archived · Original link
Drawing
Archived · Original link
Drawing
Archived · Original link
Drawing
Archived · Original link
Drawing
Archived · Original link

Have your say

Your comment matters. Councils must consider every representation that raises material planning considerations.

Write a comment