← Perth and Kinross Council

Status

Awaiting decision Change of use
Received
05 Jan 2026
New homes
0

Full proposal

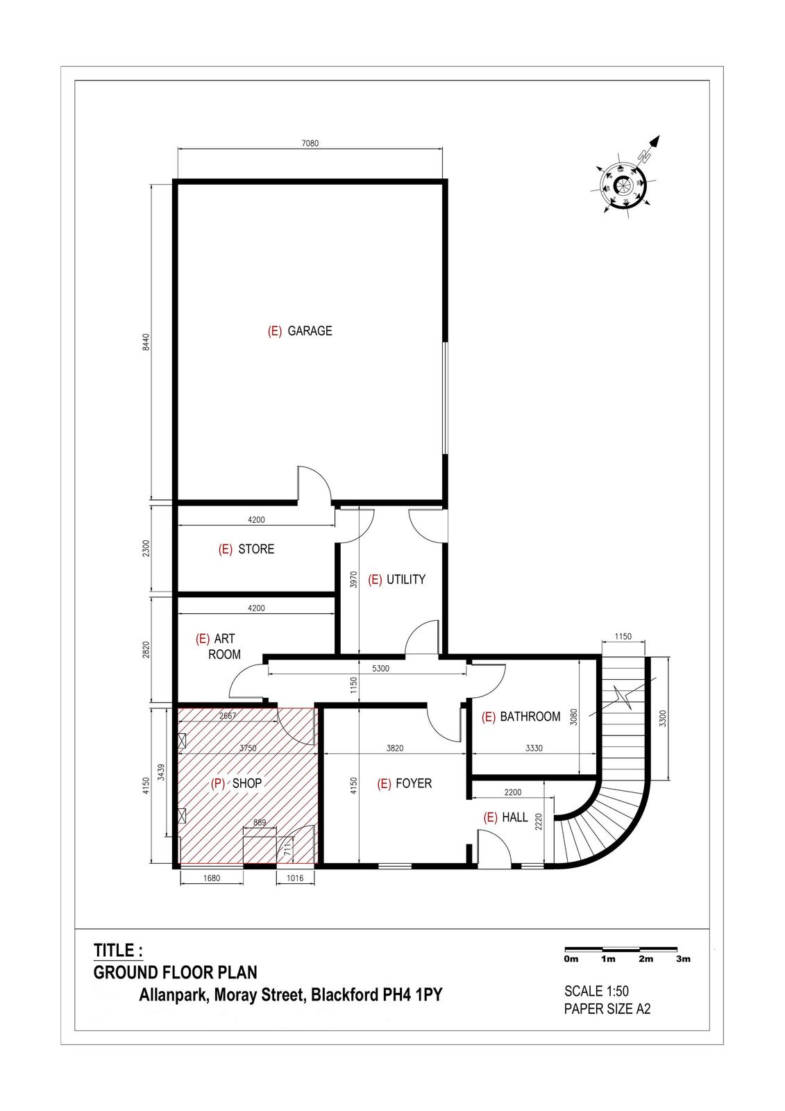
Part change of use from dwellinghouse to barbers

Documents

Application Form
Archived · Original link
External Consultees
Archived · Original link
Drawing
Archived · Original link
OS Extract
Archived · Original link
Neighbour Notification List
Archived · Original link
Drawing
Archived · Original link

Have your say

Your comment matters. Councils must consider every representation that raises material planning considerations.

Write a comment