← Perth and Kinross Council

Status

Awaiting decision Change of use
Received
12 Jan 2026
New homes
0

Full proposal

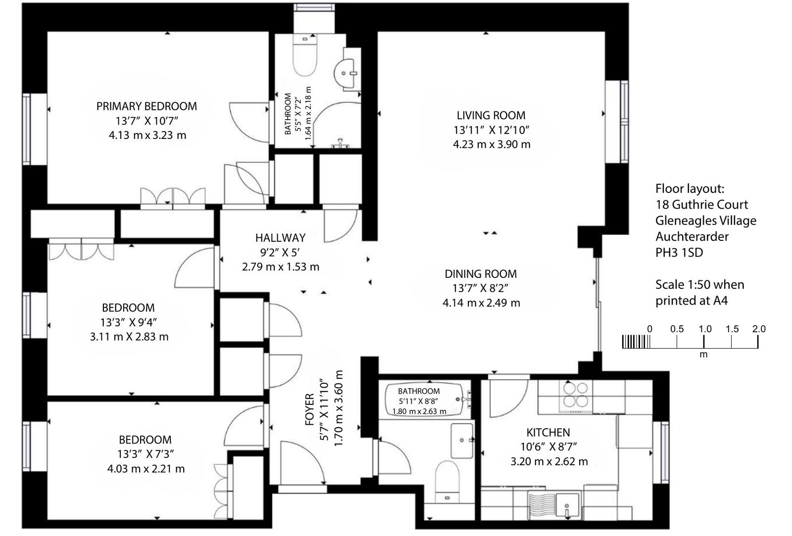
Change of use of flat to short-term let accommodation unit

Documents

Drawing
Archived · Original link
Application Form
Archived · Original link
Drawing
Archived · Original link
Neighbour Notification List
Archived · Original link
Drawing
Archived · Original link

Have your say

Your comment matters. Councils must consider every representation that raises material planning considerations.

Write a comment