← Perth and Kinross Council

Status

Awaiting decision House extension
Received
28 Jan 2026
New homes
0

Full proposal

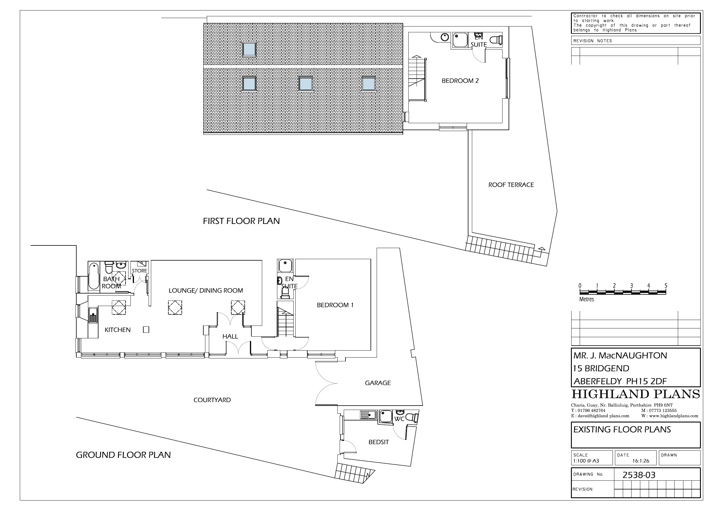
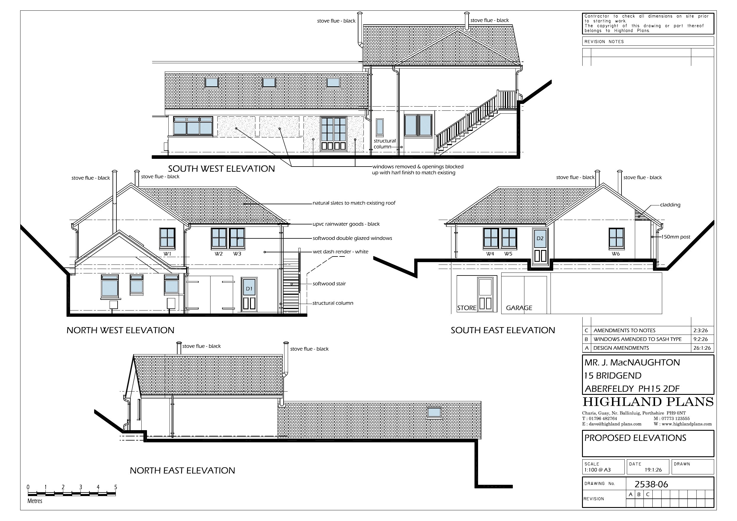
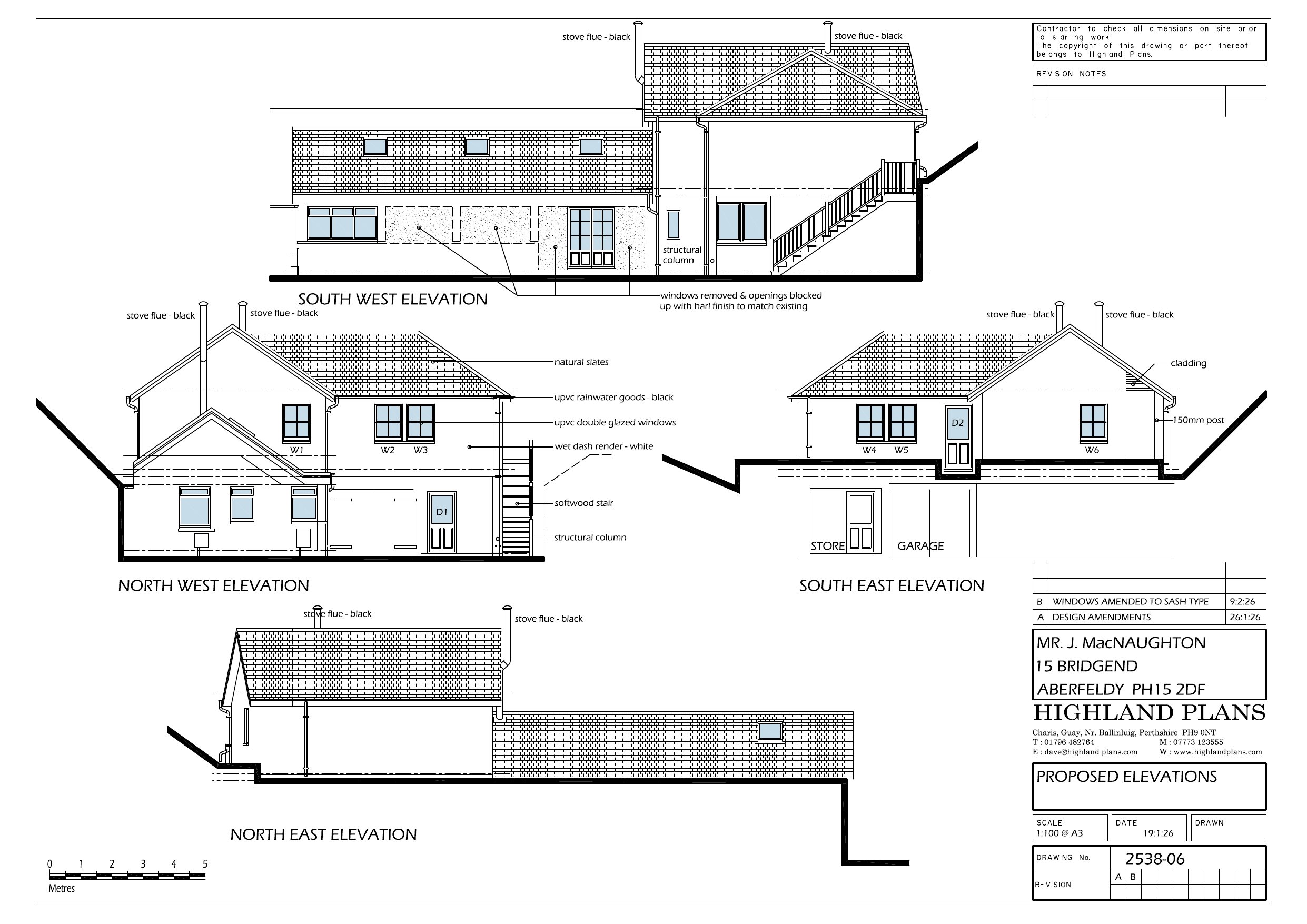
Alterations and extension to dwellinghouse, installation of flue and steps

Documents

Application Form
Archived · Original link
CONSULTEE RESPONSE - CONSERVATION
Internal Consultees
Not yet archived · Original link
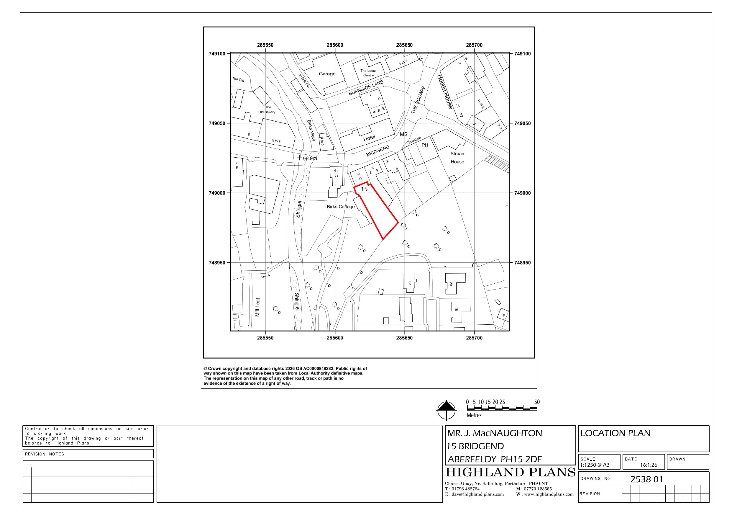
Drawing
Archived · Original link
Drawing
Archived · Original link
External Consultees
Archived · Original link
INTERNAL CONSULTATION FROM STRUCTURES AND FLOODING
Correspondence
Not yet archived · Original link
INTERNAL CONSULTEE RESPONSE - EH
Internal Consultees
Not yet archived · Original link
Drawing
Archived · Original link
Neighbour Notification List
Archived · Original link
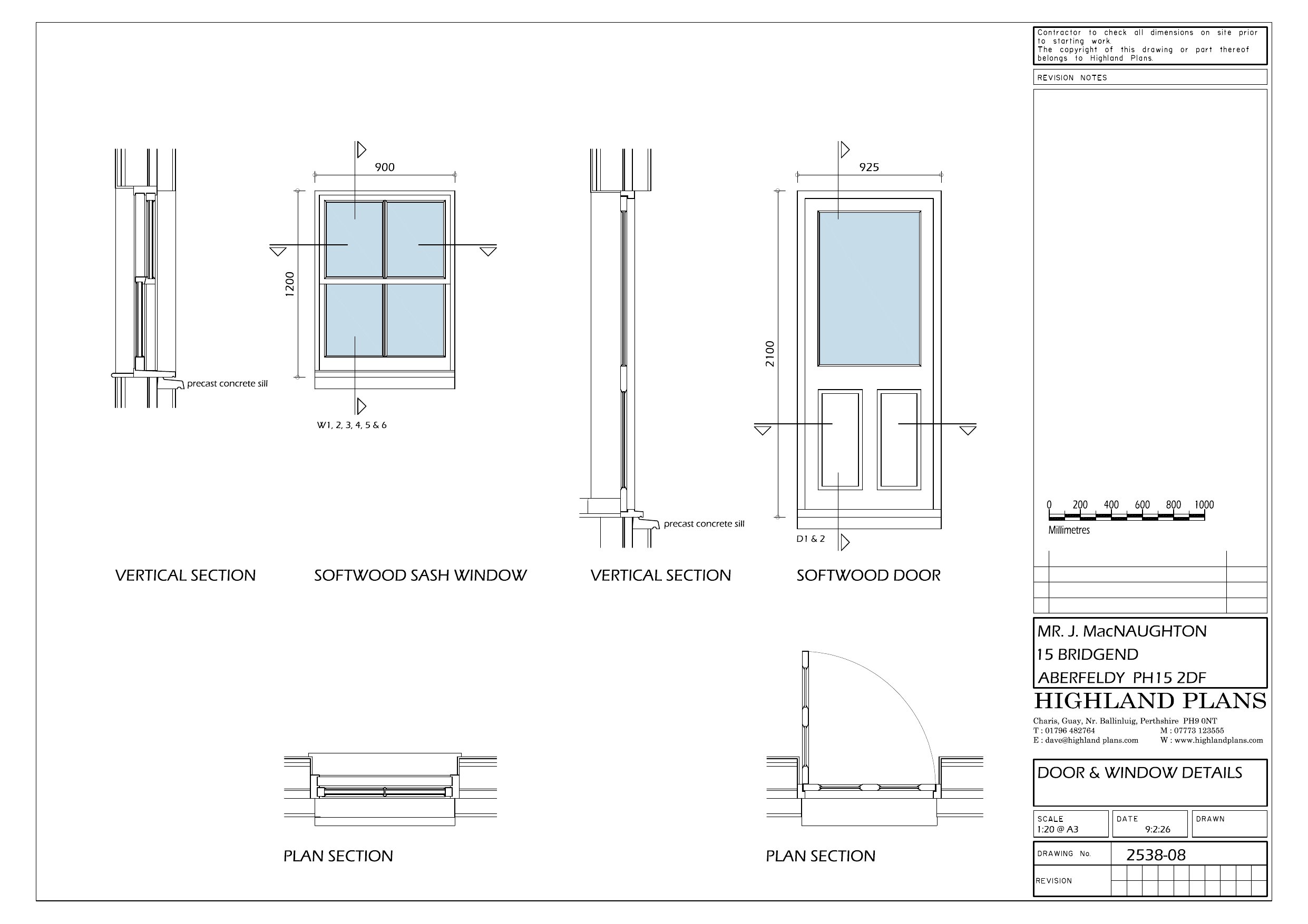
PROPOSED ELEVATIONS
Drawing
Not yet archived · Original link
Drawing
Archived · Original link
Site Notice
Archived · Original link
Superseded Drawing/documents
Archived · Original link

Have your say

Your comment matters. Councils must consider every representation that raises material planning considerations.

Write a comment