← Perth and Kinross Council

Status

Awaiting decision Change of use
Received
02 Feb 2026
New homes
0

Full proposal

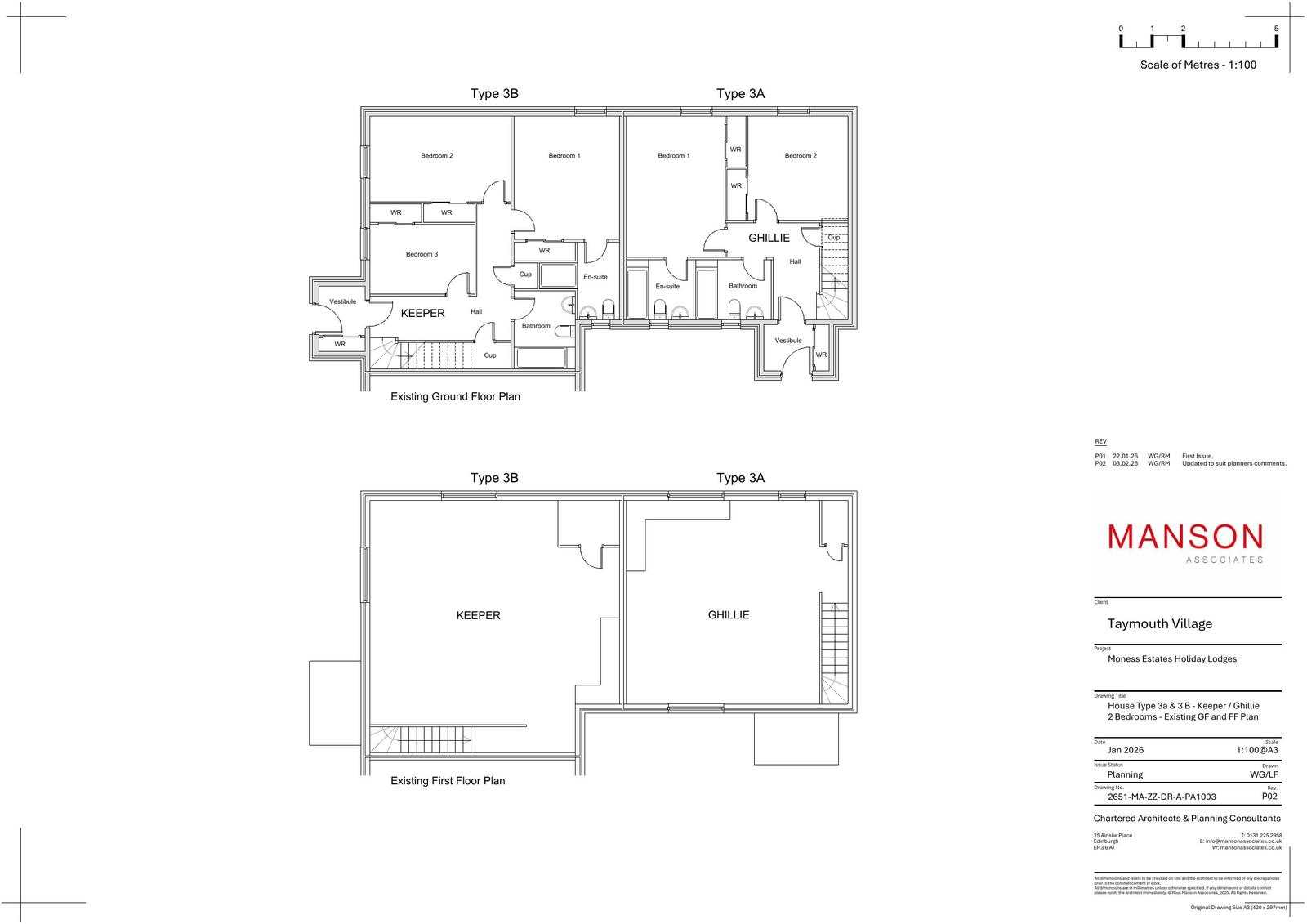
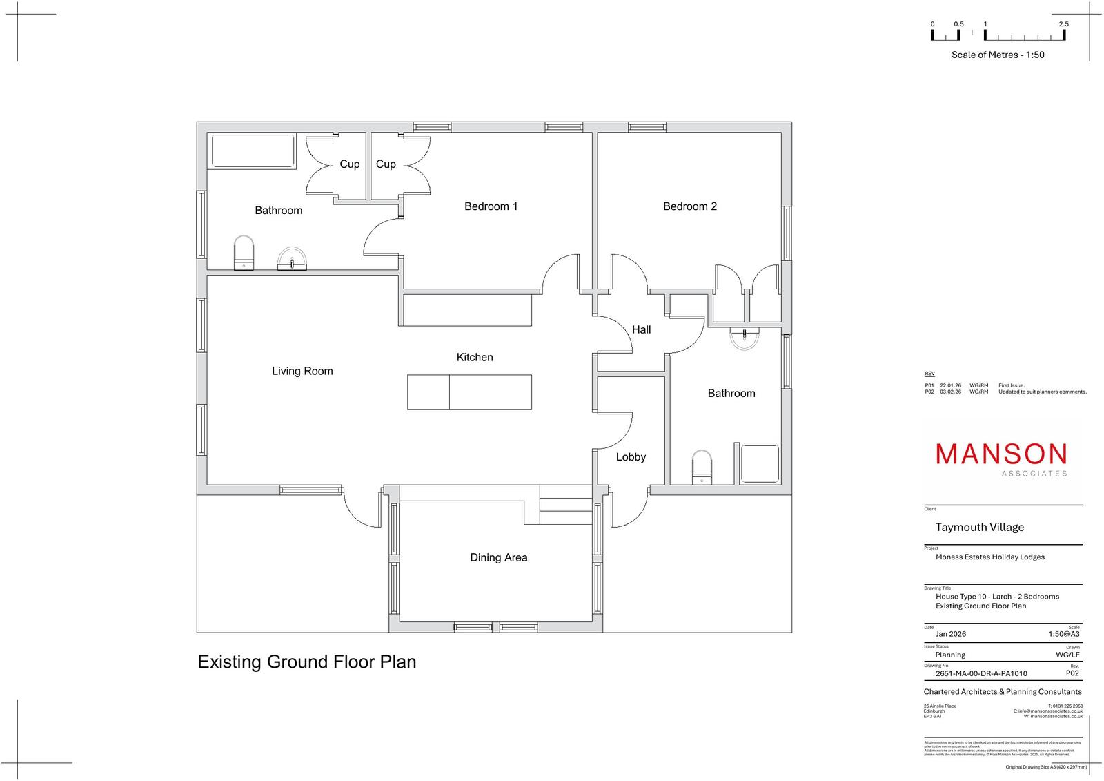
Change of use of holiday cottages to allow holiday use or residential use as staff accommodation for employees of Taymouth Castle Estate

Documents

Drawing
Archived · Original link
Application Form
Archived · Original link
Report
Archived · Original link
Report
Archived · Original link
Drawing
Archived · Original link
Neighbour Notification List
Archived · Original link
Objection Comment
Archived · Original link
Objection Comment
Archived · Original link
Objection Comment
Archived · Original link
Report
Archived · Original link
Report
Archived · Original link
Drawing
Archived · Original link

Have your say

Your comment matters. Councils must consider every representation that raises material planning considerations.

Write a comment