← Perth and Kinross Council

Status

Awaiting decision House extension
Received
02 Feb 2026
New homes
0

Full proposal

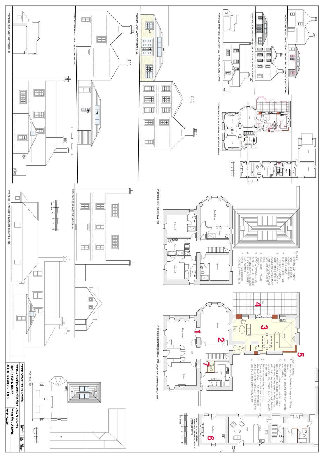
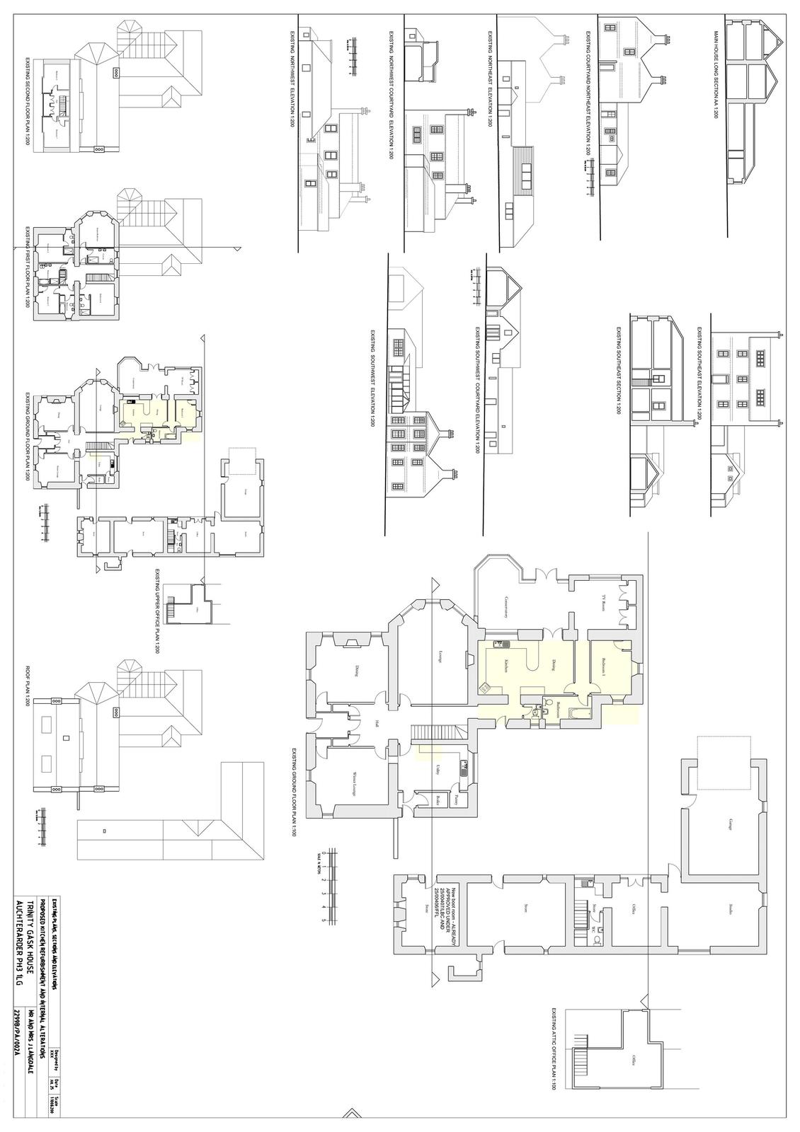
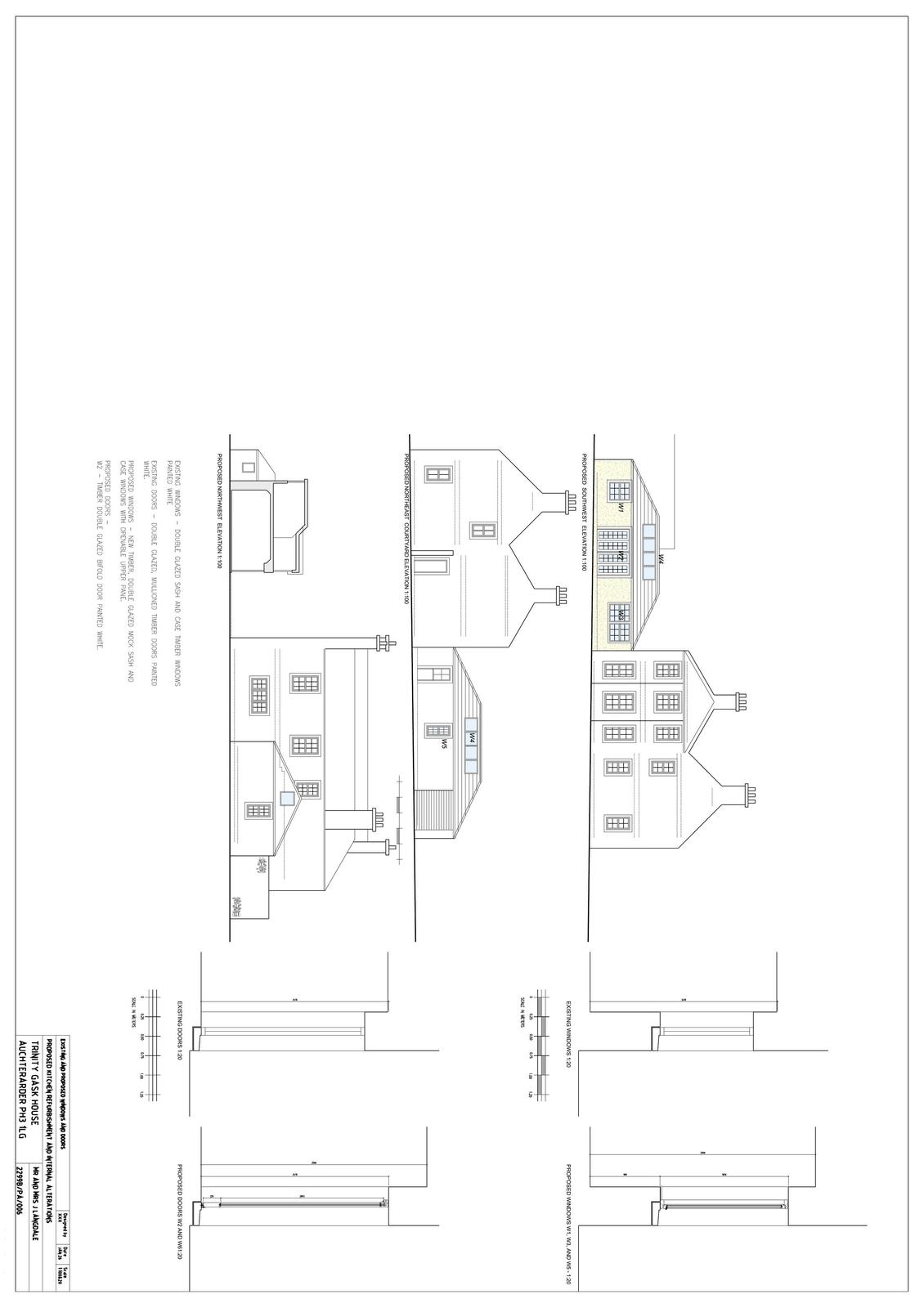
Alterations and extension to dwellinghouse

Documents

Application Form
Archived · Original link
Report
Archived · Original link
Drawing
Archived · Original link
INTERNAL CONSULTEE RESPONSE - BIODIVERSITY
Internal Consultees
Not yet archived · Original link
Neighbour Notification List
Archived · Original link
Drawing
Archived · Original link
Site Notice
Archived · Original link

Have your say

Your comment matters. Councils must consider every representation that raises material planning considerations.

Write a comment