← Perth and Kinross Council

Status

Awaiting decision House extension
Received
04 Feb 2026
New homes
0

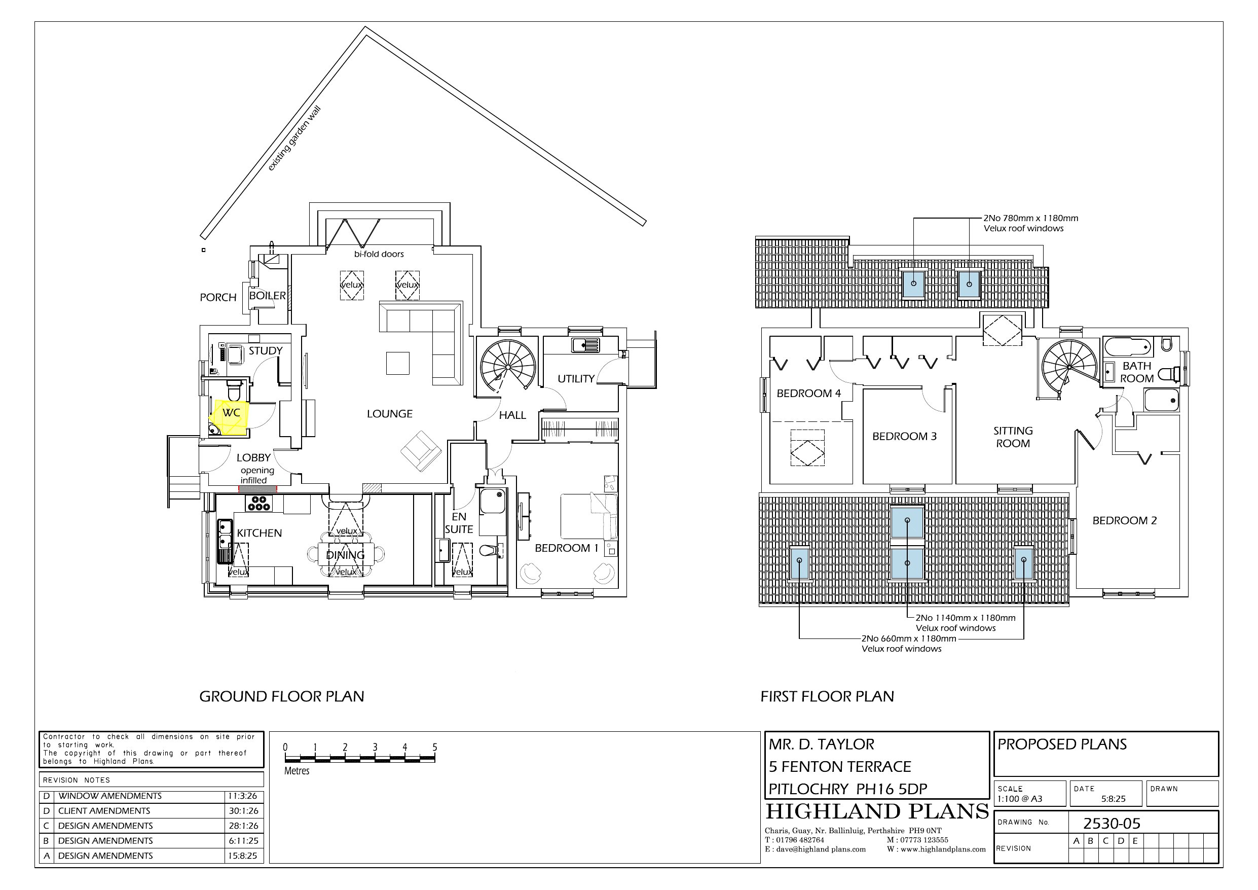
Full proposal

Extension to dwellinghouse and formation of steps

Documents

Application Form
Archived · Original link
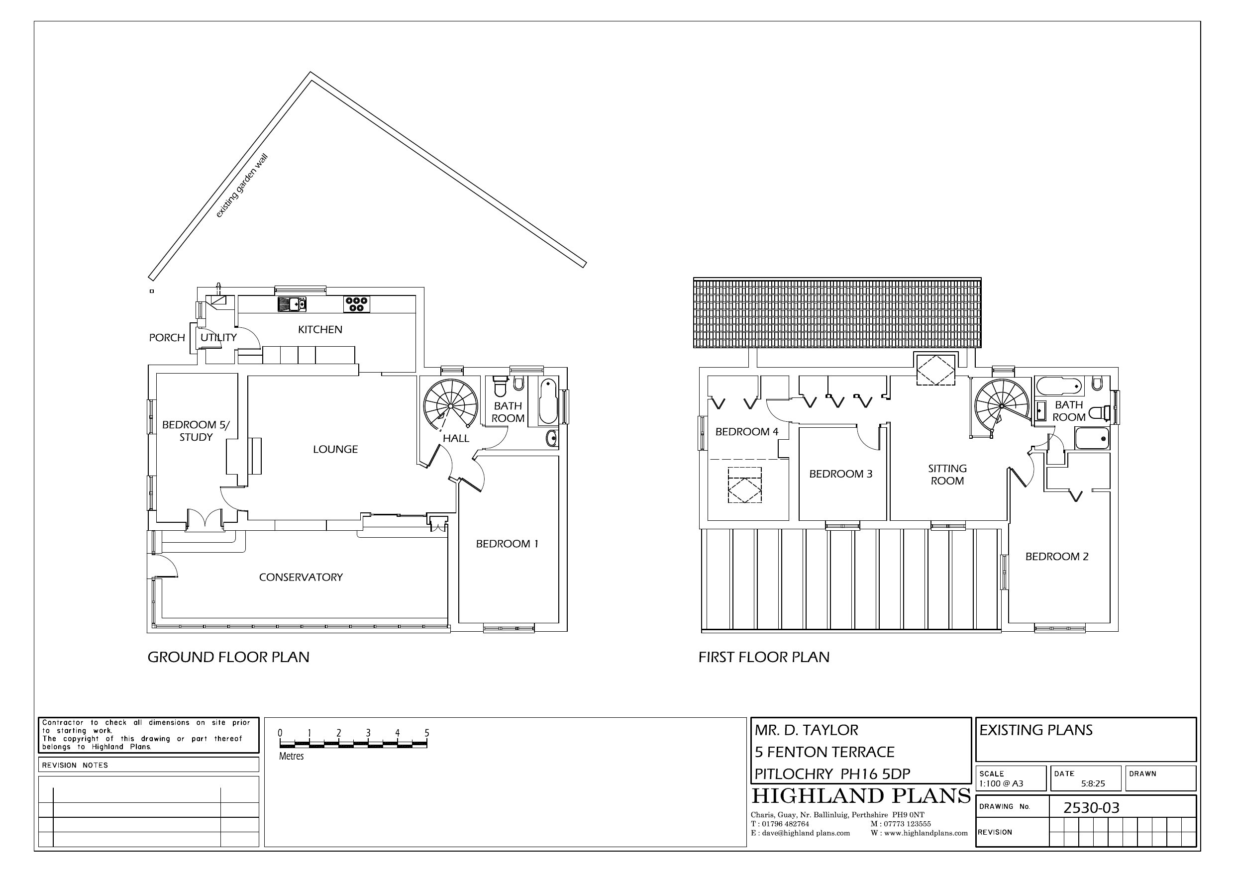
EXISTING AND PROPOSED ROOF PLANS
Drawing
Not yet archived · Original link
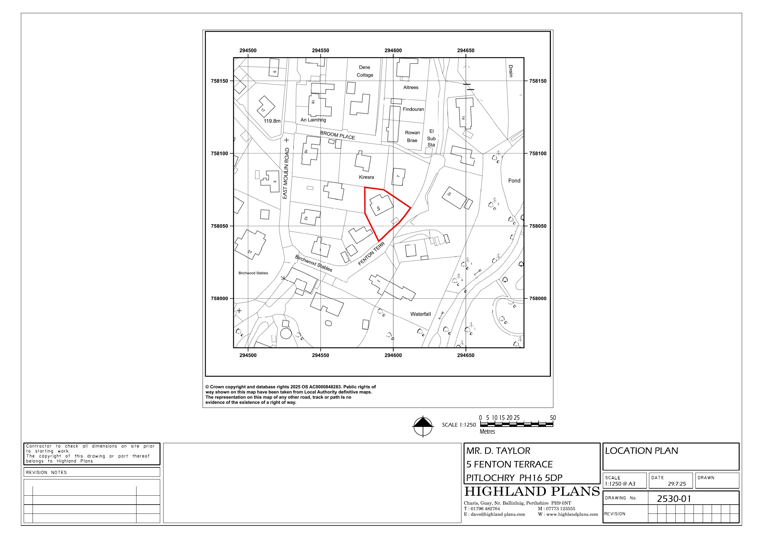
EXISTING AND PROPSOED BLOCK PLANS
Drawing
Not yet archived · Original link
Drawing
Archived · Original link
Drawing
Archived · Original link
External Consultees
Archived · Original link
Drawing
Archived · Original link
Neighbour Notification List
Archived · Original link
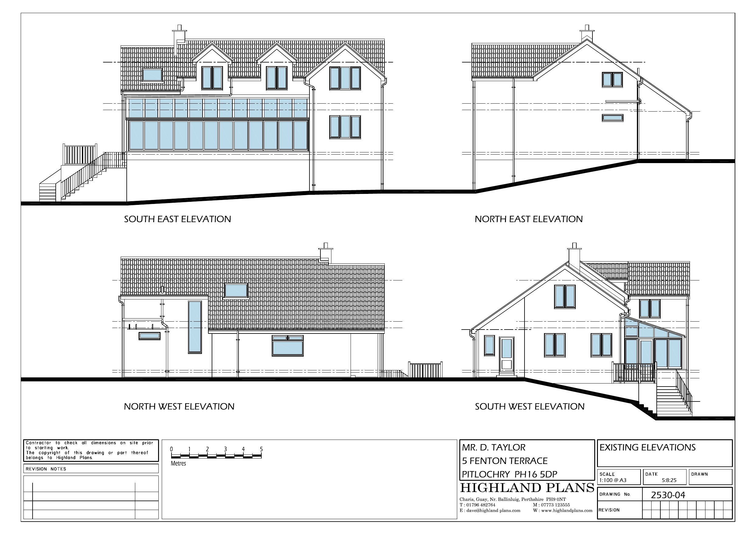
PROPOSED ELEVATIONS
Drawing
Not yet archived · Original link
Drawing
Archived · Original link
Superseded Drawing/documents
Archived · Original link
Superseded Drawing/documents
Archived · Original link
Superseded Drawing/documents
Archived · Original link

Have your say

Your comment matters. Councils must consider every representation that raises material planning considerations.

Write a comment